
Predaj bytu 2+1 • 50 m² bez realitkyMannheim Mannheim Baden-Württemberg 68165
Ponúkaný 2-izbový podkrovný byt sa nachádza v upravenom viacrodinnom dome, ktorý je vo veľmi dobrom stave údržby. V roku 2017 bol byt komplexne zrekonštruovaný. Medzi inými boli vymenené vodovodné potrubia v kuchyni a kúpeľni, elektrická inštalácia bola úplne modernizovaná a kúpeľňa aj kuchyňa boli obložené novými dlaždicami. Príslušné faktúry a fotodokumentácia sú k dispozícii.
Byt zaujme vďaka svojej vynikajúcej polohe, a preto bol vždy veľmi dobre prenajímateľný. Od februára 2022 je prenajatý súčasným nájomcom. Aktuálne nájomné bez poplatkov je vo výške 600 € mesačne, k tomu nadväzujú 110 € poplatkov za prevádzku. Spoločné náklady na správu domu predstavujú približne 229 €. Podľa aktuálneho prehľadu nájomného sa javí, že nájomné vo výške približne 700 € mesačne je realistické.
Budova bola priebežne udržiavaná a celkovo sa prezentuje vo veľmi upravenom stave. Správcovská spoločnosť pracuje spoľahlivo a starostlivo sa zaoberá všetkými potrebnými opatreniami.
Byt sa nachádza v žiadanej východnej štvrti, v bezprostrednom okolí Friedrichsplatzu s vodárňou. Poloha hovorí sama za seba: ponúka centrálnu mestskú časť s vynikajúcou infraštruktúrou a zároveň pokoj, lebo sa nachádza v dopravne upokojenom bočnom ulici. V tejto atraktívnej lokalite je stále veľmi vysoký dopyt po nájomcoch, čo navyše potvrdzuje jeho dlhodobú prenajímateľnosť.
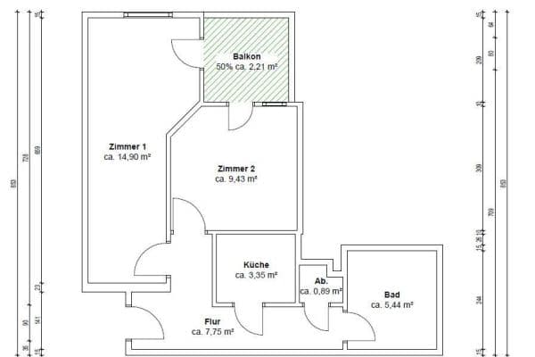
V rámci komplexnej rekonštrukcie v roku 2017 bol byt vybavený modernou vstavanou kuchynskou linkou pozostávajúcou z rúry, keramickej varnej dosky a chladničky. Byt sa nachádza na podkroví (7. poschodie), a preto je svetlý a tichý domov s nadstropným osvetlením. Výťah chodí od pivnice až do 6. poschodia, pričom najvyššie poschodie je ľahko dostupné pešo. K bytu patrí aj priestranná pivničná izba, ktorá poskytuje dostatok úložného priestoru.
Parametre nehnuteľnosti
| Vek | Nad 50 rokov |
|---|---|
| Dispozícia | 2+1 |
| PENB | D - Menej hospodárne |
| Cena za jednotku | 4 300 € / m2 |
| Stav | Dobrý |
|---|---|
| Číslo inzerátu | 1012689 |
| Úžitková plocha | 50 m² |
Čo táto nehnuteľnosť ponúka?
| Pivnica | |
| MHD 3 minúty pešo |
| Výťah |
V okolí nehnuteľnosti nájdete




Predaj bytuMina-Karcher-Platz Frankenthal Frankenthal (Pfalz) Rheinland-Pfalz 67227- 3+1
- 86 m²
227 000 € + 550 €
Stále hľadáte to pravé?
Nastavte si strážneho psa. Ponuky vybrané na mieru dostanete súhrnne 1× denne e-mailom. S Premium profilom máte po ruke rovno 5 strážcov a keď sa niečo objaví, informujú vás obratom.







