
Predaj bytu 3+1 • 75 m² bez realitkyBerlin Altglienicke Berlin 12524
Tu je preklad textu do slovenčiny:
V pokojnej, zelenej a upratanej lokalite v Berlíne-Altglienicke sa predstavuje tento voľný, svetlom naplnený 3-izbový byt s približne 75 m² obytnou plochou, situovaný v prvej nadzemnej podlaží mestského vilového domu, ako domov, ktorý svojím komfortom a mimoriadne príjemným bývacím pocitom presvedčuje. Byt, ktorý vďaka svojej premyslenej dispozícii, svetlosti a pokojnej lokalite ponúka vysokú kvalitu bývania. Štvordomový dom vytvára súkromnú, harmonickú atmosféru, aká je v Berlíne dnes zriedkavá.
Dom sa nachádza v pokojnej zóne s rýchlosťou 30 km/h a v pešej vzdialenosti sú k dispozícii obchody (Lidl, Aldi, Edeka, Netto). Autobusom alebo pešo sa dostanete na S-Bahn stanicu Grünbergallee alebo autobusom na stanicu metra Rudow.
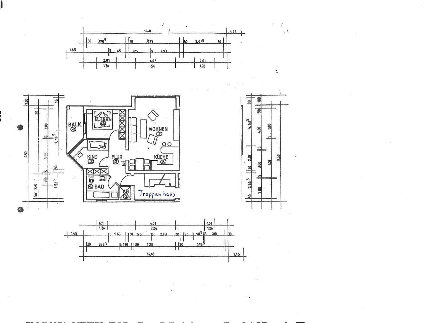
Pri vstupe do bytu sa otvára svetlý predsieň, v ktorej sa za dverami nachádza praktický úložný kút, ideálny pre domáce potreby, zásoby alebo odevy. Chodba má rozlohu približne 8 m². Prvé dvere oproti vchodovým dverám vedú do priestrannej kúpeľne s prirodzeným denným svetlom o rozlohe približne 7 m², ktorá pôsobí modernými obkladmi, komfortnou sprchou a dostatočným priestorom pre inštaláciu vaňi.
Druhé dvere otvárajú svetlú izbu, ktorá môže slúžiť ako detská izba alebo pracovňa o rozlohe približne 11 m², pričom rohové okno zaplavuje miestnosť prirodzeným svetlom a vytvára mimoriadne priateľskú atmosféru. Vonkajšie žalúzie zaisťujú v tejto izbe optimálnu ochranu pred slnkom a súkromie. Tretie dvere vedú do pokojnej spálne o rozlohe približne 12 m², ktorá zaujme priamym vstupom na veľký južný balkón. Balkón s rozlohou približne 6 m² je možné zatieniť elektrickým markízom.
Vpravo od chodby sa otvára priestranný obývacie, jedálenské a kuchynské miesto s širokou výhľadovou stenou o rozlohe 35 m², ktoré zaplavuje miestnosť svetlom od rána až do popoludní. K dispozícii je aj satelitný TV-prípoj. Na mieru vyrobená, moderná, vysoko kvalitná vstavaná kuchyňa je harmonicky integrovaná a vybavená všetkými dôležitými spotrebičmi. Zatienenie výhľadovej steny okien je možné pomocou elektrického slnečného rolety.
Okna bytu sú plastové s dvojsklom. Obývacia izba, chodba a spálňa majú jednotnú laminátovú podlahu, pričom kuchynský a kúpeľňový priestor sú obložené dlažbou. Balkón bytu je pokrytý WPC doskami. Niektoré steny a stropy bytu je potrebné bežne zrenovovať. Inak je byt bez týchto drobných oprav ihneď na nasťahovanie.
V suteréne sa nachádza samostatná pivničná miestnosť patriaca bytu, ktorá poskytuje dostatok úložného priestoru. Spoločná práčovňa, určená pre práčku a zároveň vhodný priestor na sušenie bielizne, ktorú môžu využívať všetci obyvatelia, sa nachádza v samostatnej spoločnej miestnosti v suteréne. Súčasťou ponuky je aj vlastné vonkajšie parkovisko priamo za domom. V roku 2020 bola rekonštruovaná plynová kotolňa, ktorá zaisťuje moderné a efektívne kúrenie.
Byt je predávaný súkromne, takže pre kupujúceho nevzniká žiadna provízia realitnej kancelárie.
PROSÍM, ŽIADNE DOPYTY REALITNÝCH AGENTÚR. PREDAJ JE VÝHRADNE Z SÚKROMNÝCH OSĽOV.
S výnimkou vstavaných kuchynských a kúpeľňových kusov nábytku, ktoré sa skutočne nachádzajú v byte, je zariadenie obývacej izby, spálne a izby s vykurovacím výkladným oknom na fotografiách zobrazené virtuálne. Generovanie pomocou umelej inteligencie je na fotografiách vždy príslušne označené.
Parametre nehnuteľnosti
| Vek | Nad 50 rokov |
|---|---|
| Stav | Dobrý |
| Poschodie | 1. poschodie z 2 |
| PENB | D - Menej hospodárne |
| Cena za jednotku | 3 986,67 € / m2 |
| Dostupné od | 9. 4. 2026 |
|---|---|
| Dispozícia | 3+1 |
| Číslo inzerátu | 1009556 |
| Úžitková plocha | 75 m² |
Čo táto nehnuteľnosť ponúka?
| Balkón | |
| Parkovanie |
| Pivnica | |
| MHD 1 minúta pešo |
V okolí nehnuteľnosti nájdete
Stále hľadáte to pravé?
Nastavte si strážneho psa. Ponuky vybrané na mieru dostanete súhrnne 1× denne e-mailom. S Premium profilom máte po ruke rovno 5 strážcov a keď sa niečo objaví, informujú vás obratom.



















