
Predaj domu 6+1 • 150 m² bez realitkyHändelstr. 1 Feldkirchen Feldkirchen Bayern 85622
Händelstr. 1 Feldkirchen Feldkirchen Bayern 85622MHD 1 minúta pešo • GarážVeľmi udržiavaný radový koncový dom v najlepšej Feldkirchner lokalite, priamo pri zelenom pásme a s ideálnym južným orientovaním.
Dom ponúka
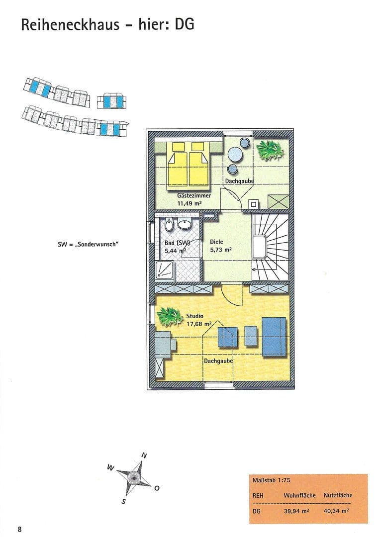
• 5 plnohodnotných spální
• 3 kúpeľne s denným svetlom
• Veľkú hobby miestnosť
• Južnú záhradu s vonkajším vstupom
• Samostatnú kuchyňu s jedálenským kútikom
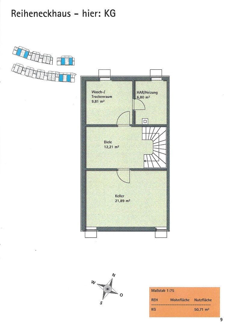
• Práčovňu/sušiareň a spiatočný priestor vo suteréne
• Jednotkovú garáž + 1 vonkajšie parkovacie miesto (úložný priestor) priamo pri dome, voliteľne je možné za 23 500 EUR získať ďalšie parkovacie miesto v podzemnej garáži cca 80 m od domu
• A modernú energetickú a domovú techniku (solárna termia, kondenzačný kotol 2020, klimatizácia, optické vlákno, balkónová elektráreň).
Ideálny pre rodiny, ktoré hľadajú veľa priestoru a zároveň pokojné a bezpečné prostredie.
Rodinne-priateľský Feldkirchen patrí medzi najžiadanejšie obytné a komerčné lokality vo východnom Mníchove.
Obec spája vynikajúcu dopravu s vysokou kvalitou života a bezprostrednou blízkosťou k dôležitým priemyselným a rekreačným lokalitám. Feldkirchen sa nachádza ešte v M-zóne.
Optimálna dopravná dostupnosť: Feldkirchen leží priamo pri diaľniciach A94 a A99, čo zabezpečuje rýchly prístup do celej mníchovskej oblasti aj do nadregionálnej diaľničnej siete – ideálne pre dojížďajúcich zamestnancov vo všetkých smeroch.
Linka S-Bahn S2 spája obec v krátkom intervale s mníchovským centrom (Ostbahnhof cca 10 minút, Marienplatz cca 15 minút).
Stanica metra Messestadt Ost (linka U2) je vzdialená približne 10 minút na bicykli alebo autobusom – ideálne pre dojížďajúcich a návštevníkov veľtrhov.
Letisko Mníchov je autom alebo verejnou dopravou dostupné približne za 30 minút.
Blízkosť k veľtrhám a Riem Arcaden: Messe München leží prakticky priamo pred dverami, čo Feldkirchen robí atraktívnou lokalitou pre medzinárodné spoločnosti a návštevníkov.
Riem Arcaden ponúkajú rozsiahlu ponuku obchodov, reštaurácií a služieb a sú dostupné za pár minút.
Rodinne-priateľská infraštruktúra: Feldkirchen má širokú ponuku jaslí, materských škôl, škôlok, dennej starostlivosti a škôl. Obec je známa svojim rodinne orientovaným prístupom, krátkymi vzdialenosťami a modernými zariadeniami starostlivosti.
Lekári sú k dispozícii v Feldkirchene aj v priľahlých obciach Riem, Haar a Heimstetten.
Ideálne pre oddych: Rekreačná oblasť Heimstettener See patrí medzi najobľúbenejšie miesta na oddych vo východnom Mníchove – ideálna na kúpanie, prechádzky a relaxáciu.
Rekreačnú ponuku dopĺňa blízky Riemer Park s jazerom, krajinný park Kirchheim/Heimstetten, športoviská, kluby a rozsiahle zelené plochy, prípadne aj vodný lyžiarsky park Aschheim.
Dom sa nachádza v zóne s obmedzenou premávkou, kde môžu deti bezpečne hrať vonku a objavovať blízke ihriská.
Bezbariérová úprava je možná – bez schodov k vstupu a záhrade.
Ďalšie výhody:
- Veľmi dobrá tepelná izolácia a zodpovedne nízke prevádzkové náklady
- Solárna termia na podporu ohrevu teplej vody (doinštalácia 2020)
- Moderný a energeticky efektívny plynový kondenzačný kotol (inštalovaný 2020)
- Strednodobá možnosť inštalácie tepelného čerpadla (radi sa pozrie u susedov)
- Klimatizácia na podkroví
- Balkónová elektráreň pre vlastnú výrobu elektriny
- Podkrovie neskôr upravené na úložný priestor (s medzipodlahou, sadrokartónovými priečkami a laminátovou podlahou – do výpočtu obytných plôch nezapočítané)
- Optické vlákno (až do 1 000 Mbit/s)
Podlahové krytiny:
Parkety v prízemí a nadzemí, laminát na podkroví, dlaždice v suteréne, kúpeľniach, kuchyni a v prízemnom chodbe.
Kvalita života a ekonomická sila:
So zmesou pokojnej obytnej zóny, dobrej miestnej ponuky a množstva podnikov ponúka Feldkirchen atraktívne prostredie pre rodiny, dojížďajúcich aj investorov. Kombinácia mestského prostredia, modernej infraštruktúry a prírodnej atmosféry robí z obce jednu z najžiadanejších lokalít v okolí.
Infraštruktúra:
Supermarket, reštaurácia, materská škola/jasle, autobusové zastávky, verejné ihrisko a futbalové ihrisko v okruhu 250 m, S-Bahn 650 m (M-zóna), metro 3,5 km, expresný autobus X202 500 m (Haar, Garching/metro, Unterschleißheim), kúpalisko s pivnou záhradou 1,2 km cez cyklistickú cestu, Riemer Park 3,5 km (krajinný park, kúpalisko), Riem Arcaden 4,5 km a veľmi dobrá dostupnosť k letisku autom aj MHD.
Lekáreň, zubný lekár 750 m, všeobecný lekár 1 km, ďalšie škôlky v obci, základná škola 600 m, škôlka 400 m, školský komplex Aschheim 1,9 km (stredná škola, gymnázium), základná/nižšia stredná škola a gymnázium Kirchheim 3,5 km.
Predaj prebieha bez provízie priamo od prvého majiteľa, ktorý má detailné znalosti o nehnuteľnosti.
Presný priebeh predajného procesu sa dohodne pri komunikácii so záujemcami.
Dostupné podľa dohody (najskôr od 1.5.2026).
Dopyty od maklérov nie sú vítané! Podľa § 7 UWG je nevyžiadané kontaktovanie maklérov bez výslovného súhlasu adresáta zakázané!
Parametre nehnuteľnosti
| Vek | Nad 50 rokov |
|---|---|
| Stav | Dobrý |
| Číslo inzerátu | 1006997 |
| Úžitková plocha | 150 m² |
| Celkové poschodia | 4 |
| Dostupné od | 1. 5. 2026 |
|---|---|
| Dispozícia | 6+1 |
| PENB | A - Mimoriadne úsporné |
| Plocha pozemku | 207 m² |
| Cena za jednotku | 7 300 € / m2 |
Čo táto nehnuteľnosť ponúka?
| Balkón | |
| Garáž | |
| Terasa |
| Pivnica | |
| MHD 1 minúta pešo |
V okolí nehnuteľnosti nájdete
Stále hľadáte to pravé?
Nastavte si strážneho psa. Ponuky vybrané na mieru dostanete súhrnne 1× denne e-mailom. S Premium profilom máte po ruke rovno 5 strážcov a keď sa niečo objaví, informujú vás obratom.







































