
Predaj domu 5+1 • 142 m² bez realitky, Severné Porýnie - Westfálsko
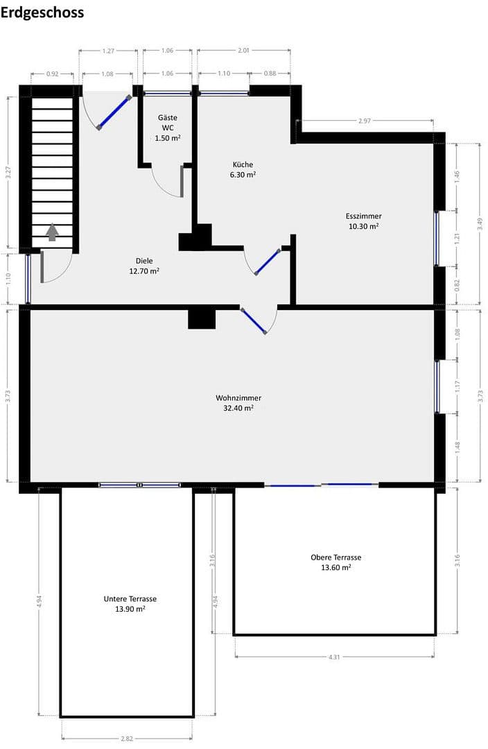
, Severné Porýnie - WestfálskoMHD 1 minúta pešo • Parkovanie • GarážTento 5-izbový rodinný dom na pokojnej, centrálnom mieste v Odenthal ponúka všetko pre rodinne priateľský každodenný život: veľký obývačkový priestor, jedáleň, 3 spálne, 1 kúpeľňu so sprchou aj vaňou a samostatné WC. Úplne zrekonštruovaný podkrovný priestor možno využiť ako dodatočný obytný priestor. Dlažbený suterén ponúka 65 m² priestoru.
Dom je prázdny, udržiavaný a nabáda na okamžité nasťahovanie – pokiaľ ide o tepelné zateplenie, tu je priestor na modernizáciu.
Veľká záhrada (s podzemným čerpadlom na zavlažovanie) a terasa na dvoch úrovniach vyzývajú na grilovanie a relaxáciu. Okrem centrálneho plynového kúrenia zabezpečuje vykurovateľný krb v obývačke príjemné večery. Drevo na kúrenie si pohodlne uskladníte v garáži a za ňou.
Súčasné vybavenie a rekonštrukcie:
• Centrálne plynové kúrenie (2002)
• Plastové okná s dvojsklom (1989/90)
• Nová strecha s izoláciou (2006)
• Upravený podkrovný priestor ako potenciálny obytný priestor
• Hlinírové vstupné dvere RC2 (2024)
Dvojgaráž ponúka parkovacie miesta pre 2 autá plus jedno miesto pred ňou – ideálne pre rodiny s viacerými vozidlami.
Priamo v srdci Odenthal, všetko pešo v okruhu 1 km: supermarkety, lekáreň, lekári, materská škola aj školy. Perfektné pre rodiny.
Dôležitá informácia: Ide o pôdu v pachtovom vlastníctve (arcibiskupstvo v Kolíne) s dohodou platnou do augusta 2060.
Expozícia s energetickým preukazom je k dispozícii na požiadanie – tešíme sa na Vašu správu pre dohodnutie prehliadky.
Parametre nehnuteľnosti
| Vek | Nad 50 rokov |
|---|---|
| Dispozícia | 5+1 |
| PENB | G - Mimoriadne nehospodárne |
| Plocha pozemku | 862 m² |
| Cena za jednotku | 2 958 € / m2 |
| Stav | Dobrý |
|---|---|
| Číslo inzerátu | 1006988 |
| Úžitková plocha | 142 m² |
| Celkové poschodia | 2 |
Čo táto nehnuteľnosť ponúka?
| Balkón | |
| Garáž | |
| MHD 1 minúta pešo |
| Pivnica | |
| Parkovanie | |
| Terasa |
V okolí nehnuteľnosti nájdete
Stále hľadáte to pravé?
Nastavte si strážneho psa. Ponuky vybrané na mieru dostanete súhrnne 1× denne e-mailom. S Premium profilom máte po ruke rovno 5 strážcov a keď sa niečo objaví, informujú vás obratom.



























