
Predaj bytu 2+1 • 49 m² bez realitkyArnethgasse 63 Wien 16. Bezirk Wien 1160
Arnethgasse 63 Wien 16. Bezirk Wien 1160MHD 2 minúty pešo • VýťahTento vysoko kvalitne vybavený byt sa nachádza na 3. poschodí (s výťahom) a momentálne je v závěrečnej fáze dokončenia. Približne od polovice apríla bude byt dostupný ako novo zrekonštruovaný. Prehliadky sú už teraz možné a požiadavky na úpravy môžu byť po konzultácii ešte zohľadnené.
Fotografie pochádzajú z už dokončeného bytu s rovnakým vybavením.
V rámci celkovej rekonštrukcie budú obnovené všetky vedenia (elektrické a inštalačné), inštalované nové vnútorné dvere a zrekonštruovaná štýlová kúpeľňa s oddelenou toaletou – obe vybavené modernými 30 × 60 cm porcelánovými dlaždicami.
Obývacie priestory sú zariadené elegantnou parketovou podlahou v štýle vidieckych dosiek, ktorá vytvára teplú a príjemnú atmosféru. Nové trojsklené okná a moderné LED stropné osvetlenie v predsieni, kuchyni a kúpeľni doladia premyslené interiérové riešenie.
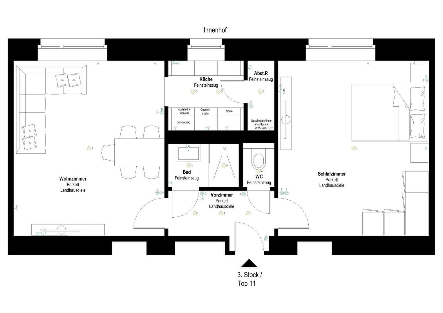
Dispozícia izieb je jasne štruktúrovaná: izby sú centrálnym spôsobom prístupné z vchodovej haly. Odtiaľ sa dostanete priamo do spálne a obývacej izby, ako aj do kúpeľne a toalety. Ku kuchyni je pripojená úložná miestnosť s možnosťou pripojenia práčky, ktorá poskytuje dodatočný úložný priestor.
Praktickosť tiež stojí za zmienku: k bytu patrí priestranné pivničné úložisko pre ďalšie veci.
Kuchyňa je vybavená všetkými potrebnými prípojkami, takže si môžete individuálne zrealizovať svoj vlastný kuchynský sen. Na požiadanie môže byť k dispozícii aj návrh kuchyne.
Nehnuteľnosť na adrese Arnethgasse 63 vyniká excelentnou dostupnosťou verejnej dopravy: V pešej vzdialenosti nájdete niekoľko liniek verejnej dopravy, ktoré zaisťujú priamy prístup do centra mesta a do ďalších mestských častí.
Dopravné spojenia:
Cca 150 m od bytu sa nachádza stanica električky „Redtenbachergasse“, ktorá vás priamo dopraví do centra mesta (Schottentor).
Linkami 46A a 46B sa rýchlo dostanete do blízkeho rekreačného areálu Wilheminenberg.
Stanica metra a rýchlokolejnej stanice Ottakring je vzdialená len niekoľko minút chôdze (približne 500 m). Len za sedem minút jazdy sa dostanete do Bahnhofcity WienWest aj na nákupnú ulicu Mariahilferstraße. Za iba 14 minút, bez prestupov, sa dostanete do centra mesta (stanica Stephansplatz).
Nákupné možnosti v okolí:
Len niekoľko minút chôdze od bytu sa nachádzajú ulice Ottakringer a Thaliastraße, najobľúbenejšie nákupné ulice v 16. obvode. Nájdete tu pestrú ponuku nákupných možností. Supermarkety ako Denns BioMarkt, Spar, Billa a Penny sú vzdialené menej než desať minút. Drogerie, športové obchody, reštaurácie, kaviarne a ovocno-zeleninový trh sú tiež dostupné pešo.
Rekreačná oblasť Ottakringer Wald:
V bezprostrednom okolí bytu sa nachádza množstvo zelených útočísk, napríklad les Ottakringer Wald so dobre vybudovanou sieťou chodníkov a prístupom na mestskú turistickú trasu č. 4. Tento rekreačný areál ponúka množstvo lesných ihrísk, grilovacích miest a zaujímavostí, ako je napríklad zámok Wilhelminenberg alebo Jubilejná veža.
HARO parketová podlaha z dubového dreva vo vzhľade vidieckych dosiek
Moderný porcelánový obklad v kúpeľni, na toalete, v kuchyni a v úložnej miestnosti
Stropné osvetlenie s LED bodovými svetlami v predsieni, kúpeľni a kuchyni
Nové trojsklené okná
Sanitárna keramika značiek LAUFEN Pro / Villeroy Boch
Sprchový systém od Grohe s termostatom, dažďovou sprchou a ručnou sprchou
Sklenená sprchová stena s nano povlakom a bezpečnostným sklom (ESG)
Vypínače, zásuvky a sieťové zásuvky od Berker
MNPV GmbH
Nehnuteľnosti – nákup a predaj,
prenájom a poradenstvo v oblasti nehnuteľností
FN 649248b
Obchodný register: Obchodný súd vo Viedni
E-mailový kontakt: office (at) mnpv.at
Parametre nehnuteľnosti
| Vek | Nad 50 rokov |
|---|---|
| Dispozícia | 2+1 |
| Číslo inzerátu | 1005078 |
| Cena za jednotku | 5 204 € / m2 |
| Stav | Po rekonštrukcii |
|---|---|
| Poschodie | 3. poschodie z 5 |
| Úžitková plocha | 49 m² |
Čo táto nehnuteľnosť ponúka?
| Pivnica | |
| MHD 2 minúty pešo |
| Výťah |
V okolí nehnuteľnosti nájdete
Stále hľadáte to pravé?
Nastavte si strážneho psa. Ponuky vybrané na mieru dostanete súhrnne 1× denne e-mailom. S Premium profilom máte po ruke rovno 5 strážcov a keď sa niečo objaví, informujú vás obratom.
















