
Predaj bytu 2+1 • 95 m² bez realitkyWielandstr. 31 Berlin Charlottenburg Berlin 10629
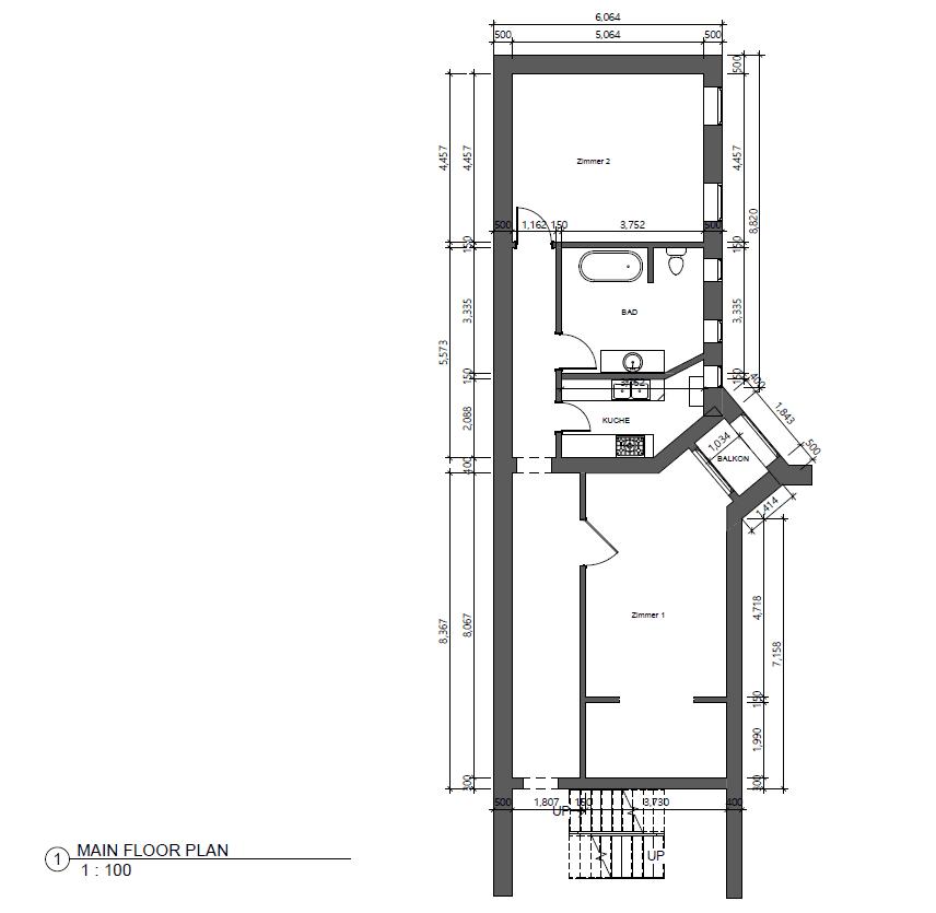
Tento štýlový bývalý byt s impozantnou výškou stropov približne 3,50 m sa nachádza v tichom bočnom krídle chráneného viacfamilijného domu z roku 1900 a je prístupný cez udržiavané schodisko. Klasický šarm starovekého bytu sa prejavuje v láskavo zachovaných stuko dekoráciách, vo výborne udržiavanom drevenom podlahe a v priestranných proporciách miestností. Byt taktiež presvedčí svojou mimoriadne tichou a zelenou polohou – skutočnou oázou v srdci Charlottenburgu.
Dobre navrhnutý pôdorys ponúka rôzne možnosti využitia. Malý balkón pozýva na príjemné vonkajšie jedlá pre dvoch. Okrem početných vstavaných skríň poskytuje dodatočný úložný priestor aj suchá pivnica. Byt bude voľný na nasťahovanie do polovice marca 2026. Predaj prebieha súkromne, pričom pre kupujúceho nevzniká žiadna provízia.
Vďaka vynikajúcej polohe, priestrannému pôdorysu a veľmi udržiavanému celkovému stavu je táto nehnuteľnosť vhodná ako pre obývateľov, tak pre kapitálových investorov. Z dôvodu ochrany pamiatok nie je potrebné predkladať energetický preukaz.
Dopyty zo strany maklérov nie sú vítané.
Nehnuteľnosť sa nachádza v jednej z najprestížnejších lokalít City-West / Charlottenburg. Naproti Walter-Benjamin-Platz sa nachádza tichá oáza, iba niekoľko metrov od Kurfürstendammu. Tu nájdete vynikajúcu infraštruktúru s množstvom nákupných možností, kvalitných reštaurácií, kaviarní a kultúrnych ponúk. Napojenie na verejnú dopravu je výborné a umožňuje rýchle dosiahnutie všetkých cieľov v meste.
Parametre nehnuteľnosti
| Vek | Nad 50 rokov |
|---|---|
| Stav | Dobrý |
| Poschodie | 1. poschodie z 4 |
| Úžitková plocha | 95 m² |
| Dostupné od | 14. 3. 2026 |
|---|---|
| Dispozícia | 2+1 |
| Číslo inzerátu | 1001012 |
| Cena za jednotku | 6 832 € / m2 |
Čo táto nehnuteľnosť ponúka?
| Balkón | |
| MHD 3 minúty pešo |
| Pivnica |
V okolí nehnuteľnosti nájdete
Stále hľadáte to pravé?
Nastavte si strážneho psa. Ponuky vybrané na mieru dostanete súhrnne 1× denne e-mailom. S Premium profilom máte po ruke rovno 5 strážcov a keď sa niečo objaví, informujú vás obratom.















