
Prenájom bytu 3+kk • 100 m² bez realitkyU Kříže, Praha - Jinonice
PO REKONSTRUKCI:
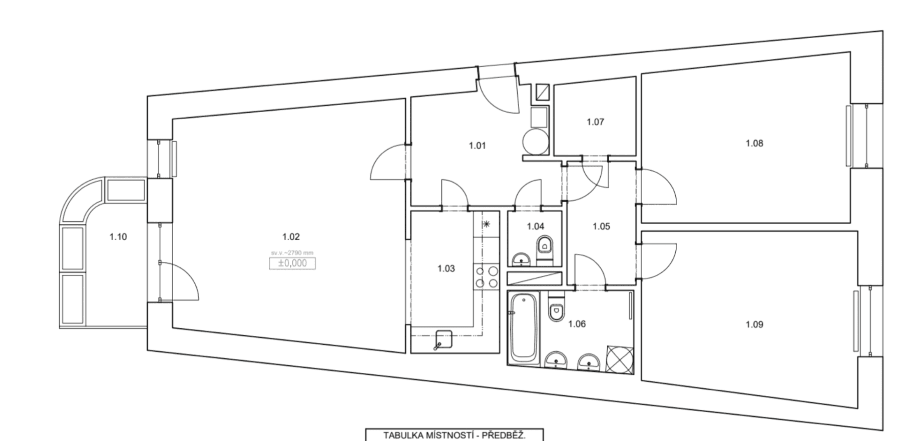
Světlý, designový byt o rozloze 100m² /3+kk s garáží.
Oddělená obytná a spací část bytu, 2x WC.
Velmi klidná oblast, 2min od metra Jinonice.
2.podlaží, s balkónem a výhledem na Prahu.
Moderní budova s výtahem a bezbariérovým přístupem.
K nastěhování ihned.
I offer a beautiful 3-room apartment for rent in a brick building that is in very good condition. The 100 m² apartment is located on the 2nd floor of a six-story building. The interior is unrefined, which allows for a new look to be created according to your own ideas and needs. The apartment is equipped with an elevator and features barrier-free access, enhancing its convenience. Included in the offer is a garage, which will be especially appreciated by car owners. The living space is intended as a complete private residence without shared living. Another great advantage of this property is a pleasant 4.5 m² balcony, perfect for relaxing after a long day. If you are interested in more detailed information, please contact me via messages on this platform.
Parametre nehnuteľnosti
| Dostupné od | 13. 3. 2026 |
|---|---|
| Konštrukcia budovy | Tehla |
| Vybavené | Nevybavené |
| Vykurovanie | Plynové |
| Umiestnenie | Tichá lokalita |
| Cena za jednotku | 420 CZK / m2 |
| Stav | Veľmi dobrý |
|---|---|
| Dispozícia | 3+kk |
| Poschodie | 2. poschodie z 6 |
| Číslo inzerátu | 1000945 |
| Úžitková plocha | 100 m² |
Čo táto nehnuteľnosť ponúka?
| Balkón 4,5 m² | |
| Garáž |
| Bezbariérový prístup | |
| Výťah |
V okolí nehnuteľnosti nájdete
Stále hľadáte to pravé?
Nastavte si strážneho psa. Ponuky vybrané na mieru dostanete súhrnne 1× denne e-mailom. S Premium profilom máte po ruke rovno 5 strážcov a keď sa niečo objaví, informujú vás obratom.















