
Predaj domu 4+kk • 151 m² bez realitkyOlching Olching Bayern 82140
Táto nádherná nehnuteľnosť v Olchingu ponúka 151 m² obytných priestorov, ktoré sa rozkladajú na štyroch podlažiach: suterén, prízemie, poschodie a podkrovie. Pozemok má celkovú rozlohu 307 m² a zahŕňa dvojgaráž. Vďaka neustálej starostlivosti a modernizáciám sa dom nachádza vo veľmi dobrom stave.
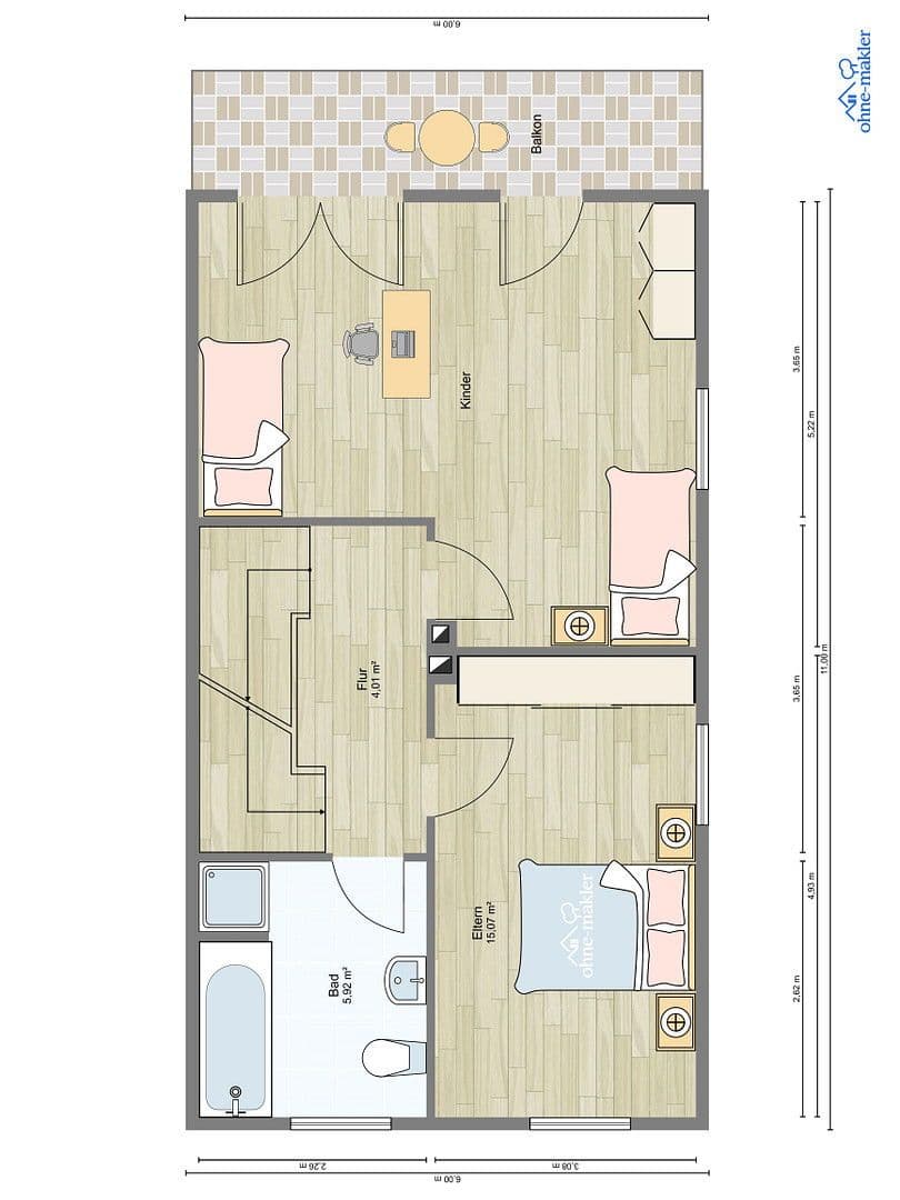
PRÍZEMIE:
V otvorenom prízemí sa všetky miestnosti dostupné priamo z chodby. Veľký obývací a jedálenský priestor ponúka pekný výhľad a priamy vstup do záhrady a následného voľného poľa. Plne vybavená kuchyňa na mieru poskytuje veľa priestoru na varenie a dostatočné úložné priestory. Samostatná toaleta pre hostí a šatníková/skladovacia miestnosť dopĺňajú ponuku prízemia.
POSCHODIE:
Na poschodí sa nachádzajú dve svetlé, dobre usporiadané izby. Veľká izba s prístupom na balkón sa dá podľa potreby rozdeliť opäť na dve samostatné izby. Druhá izba je rovnako flexibilná a môže slúžiť ako spálňa, detská izba, izba pre hostí alebo pracovňa. Kúpeľňa s denným svetlom je vybavená sprchou aj vaňou.
PODKROVIE:
Rekonštruované podkrovie ponúka ďalšiu, veľmi priestrannú izbu, malú miestnosť určenú ako kuchyňa a kúpeľňu so sprchou.
SUTERÉN:
V suteréne sa nachádza ďalšia miestnosť s vykurovaním a oknom s denným svetlom. Táto úroveň je doplnená praktickou práčovňou a vykurovacou miestnosťou.
EXTERIÉROVÉ VYBAVENIE:
Vstup je možný cez malú predzáhradu alebo priamo cez priestranné parkovacie miesto pred dvojgarážou. Zo vstupu do garáže sa dostanete k pergole, ktorá ponúka tienisté miesto v peknej záhrade. K pergole náleží terasa, cez ktorú je možný prístup do obývacej izby.
Inzerát môže obsahovať chyby, preto sa naň neberie záruka! Zobrazené fotografie zodpovedajú skutočnej nehnuteľnosti. Pôdorysy boli prepracované a preto nie sú v mierke. Stavebné podmienky, dispozícia a vybavenosť boli v uplynulých rokoch prispôsobené požiadavkám.
DOPRAVNÉ SPOJENIA:
Olching sa nachádza priamo pri diaľničnom uzle A96/A99 a A8, z ktorého za pár minút dosiahnete centrum Mníchova. Dvojdomová polovica je ideálne prepojená s mníchovskou S-Bahn a teda aj s MHD v Mníchove. Autobus (vzdialenosť cca 300 m) vás dovezie priamo na stanicu S-Bahn Eichenau (vzdialenosť cca 1,4 km) alebo na stanicu S-Bahn Olching (vzdialenosť cca 2,6 km).
Parametre nehnuteľnosti
| Vek | Nad 50 rokov |
|---|---|
| Stav | Dobrý |
| Číslo inzerátu | 1000765 |
| Úžitková plocha | 151 m² |
| Celkové poschodia | 4 |
| Dostupné od | 13. 3. 2026 |
|---|---|
| Dispozícia | 4+kk |
| PENB | D - Menej hospodárne |
| Plocha pozemku | 307 m² |
| Cena za jednotku | 4 967 € / m2 |
Čo táto nehnuteľnosť ponúka?
| Balkón | |
| Garáž | |
| MHD 0 minút pešo |
| Pivnica | |
| Parkovanie | |
| Terasa |
V okolí nehnuteľnosti nájdete
Stále hľadáte to pravé?
Nastavte si strážneho psa. Ponuky vybrané na mieru dostanete súhrnne 1× denne e-mailom. S Premium profilom máte po ruke rovno 5 strážcov a keď sa niečo objaví, informujú vás obratom.



















