
Prenájom bytu 2+1 • 55 m² bez realitkyBydžovského, Praha - Malešice
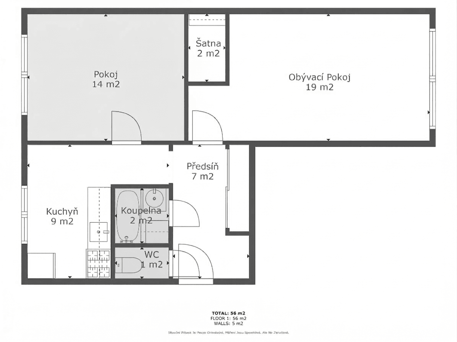
Dlouhodobě pronajmu prostorný a udržovaný byt 2+1 (55 m2) v Praze 10 – Malešicích s výbornou dostupností MHD. Byt se nachází ve třetím patře udržovaného, zatepleného panelového domu bez výtahu. V předsíni je velká skříň a prostor pro komody. V jednom pokoji je šatna. V koupelně je vana a příprava na pračku, WC je samostatné. Byt je po rekonstrukci a připravený k okamžitému nastěhování. Byt je velmi tichý, s hezkým, klidným výhledem. Byt je nevybavený – ideální pro ty, kteří si chtějí domov zařídit podle svého.
Hlavními výhodami je klidné bydlení, dobrá lokalita s veškerou občanskou vybaveností v docházkové vzdálenosti. Lokalita nabízí obchody, restaurace, kavárny, park a sportoviště.
Autobusová zastávka je vzdálena 2 minuty chůze se spojením na metro A - Želivského. Příští rok bude zprovozněna nová tramvajová trať do centra Prahy.
Parametre nehnuteľnosti
| Vek | 30 - 50 rokov |
|---|---|
| Konštrukcia budovy | Panel |
| Vybavené | Nevybavené |
| Vykurovanie | Ústredné |
| PENB | D - Menej hospodárne |
| Úžitková plocha | 55 m² |
| Stav | Po rekonštrukcii |
|---|---|
| Dispozícia | 2+1 |
| Poschodie | 3. poschodie z 4 |
| Číslo inzerátu | 999819 |
| Umiestnenie | Centrum mesta |
| Cena za jednotku | 382 CZK / m2 |
Čo táto nehnuteľnosť ponúka?
| MHD 2 minúty pešo |
V okolí nehnuteľnosti nájdete
Stále hľadáte to pravé?
Nastavte si strážneho psa. Ponuky vybrané na mieru dostanete súhrnne 1× denne e-mailom. S Premium profilom máte po ruke rovno 5 strážcov a keď sa niečo objaví, informujú vás obratom.
















