
Predaj domu 4+1 • 85 m² bez realitkyRahnsdorf Rahnsdorf Berlin 12589
Rahnsdorf Rahnsdorf Berlin 12589MHD 2 minúty pešo • GarážJedinečná poloha, nezastrešený výhľad na Püttberge. Kopcovitý pozemok. Len jeden priamy sused. Dom sa nachádza na konci ulice pred chránenou prírodnou rezerváciou.
Vyžaduje rekonštrukciu a čiastočné zmodernizovanie. (pozri fotografie, ďalšie informácie rád e-mailom alebo telefonicky)
Strešná krytina a fasádny nátěr boli obnovené
Horné poschodie: 1 izba, kúpeľňa, balkón
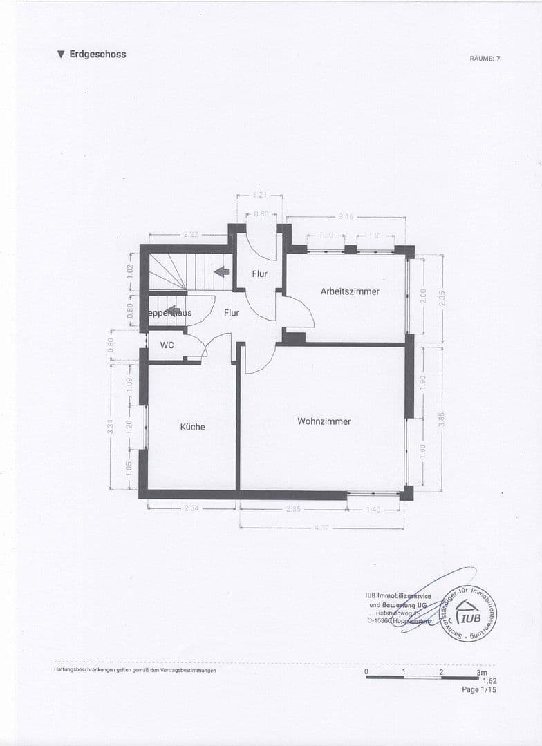
Prízemie: 2 izby, kuchyňa, hostinské WC, veľká terasa
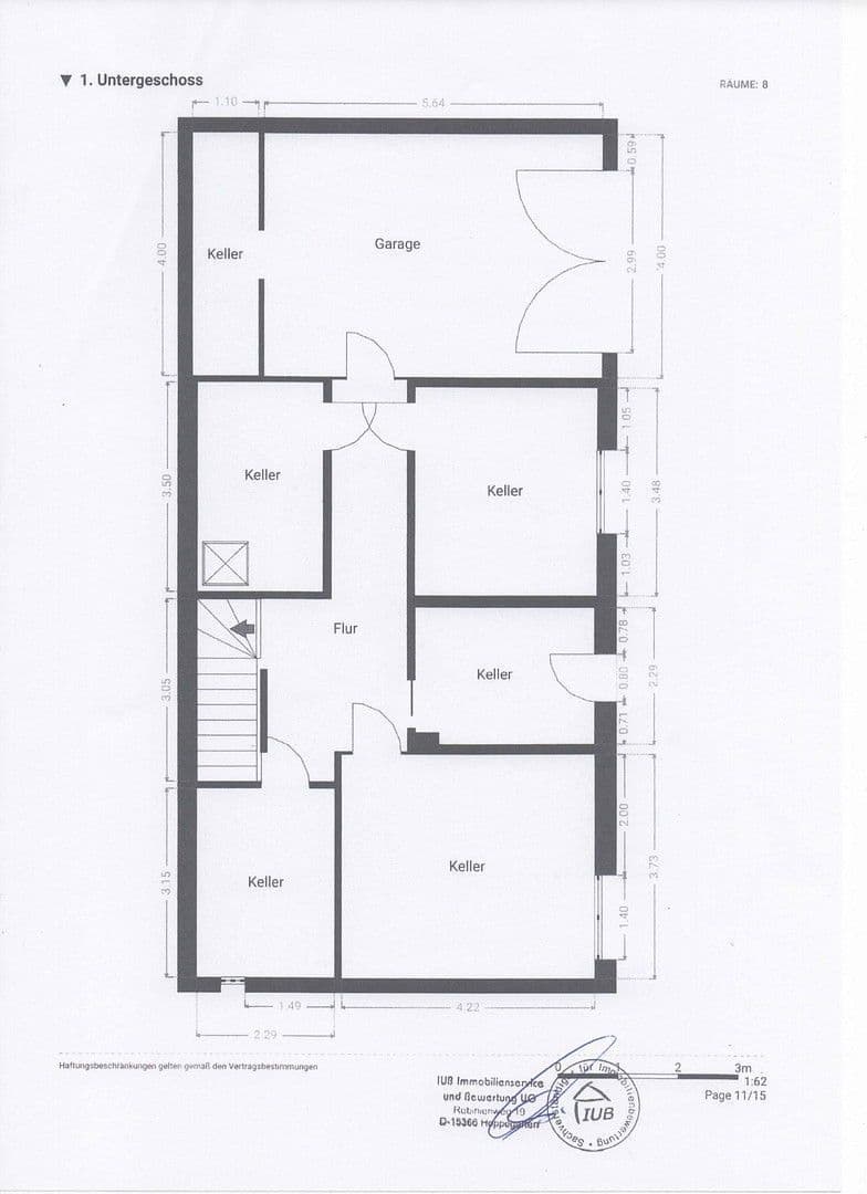
Podzemie: 1,5 izby, veľká garáž, technická miestnosť, 2 pivničné miestnosti
V záhrade sa nachádza čerpadlový domček so studňou.
Zdá sa, že je možná ďalšia výstavba so druhým domom. V susedstve bolo schválených niekoľko domov v druhej rade.
Parametre nehnuteľnosti
| Vek | Nad 50 rokov |
|---|---|
| Stav | Pred rekonštrukciou |
| Číslo inzerátu | 998582 |
| Úžitková plocha | 85 m² |
| Celkové poschodia | 3 |
| Dostupné od | 15. 3. 2026 |
|---|---|
| Dispozícia | 4+1 |
| PENB | G - Mimoriadne nehospodárne |
| Plocha pozemku | 989 m² |
| Cena za jednotku | 5 294 € / m2 |
Čo táto nehnuteľnosť ponúka?
| Balkón | |
| Garáž | |
| Terasa |
| Pivnica | |
| MHD 2 minúty pešo |
V okolí nehnuteľnosti nájdete
Stále hľadáte to pravé?
Nastavte si strážneho psa. Ponuky vybrané na mieru dostanete súhrnne 1× denne e-mailom. S Premium profilom máte po ruke rovno 5 strážcov a keď sa niečo objaví, informujú vás obratom.



























