
Prenájom bytu 2+1 • 45 m² bez realitkySteinbühler Straße 4-6 Nürnberg Gostenhof Bayern 90443
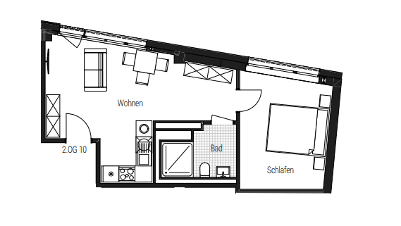
Steinbühler Straße 4-6 Nürnberg Gostenhof Bayern 90443MHD 2 minúty pešo • Výťah • Parkovanie • GarážTento moderný 2-izbový byt v novostavbe zaujme premysleným rozložením priestoru a moderným obytným komfortom.
Bývanie a obchodná budova, dokončená v roku 2026, ponúka mestské bývanie v centrálnej časti Norimbergu. Dva výťahy zaisťujú pohodlný prístup na všetky poschodia. K dispozícii je vlastná pivnica a parkovacie miesta v podzemnej garáži je možné – podľa dostupnosti – prenajímať samostatne.
Byt je ideálny pre jednotlivcov alebo páry, ktorí si cenia moderné bývanie v atraktívnej lokalite.
Možnosť nasťahovania je dohodnutá po vzájomnej dohode.
Nehnuteľnosť sa nachádza v centrálnej časti na adrese Steinbühler Straße 4–6, 90443 Norimberg. Okolie zaujme vynikajúcou infraštruktúrou a optimálnym napojením na verejnú dopravu. Obchody pre každodenné potreby, reštaurácie, kaviarne a rôzne služby sa nachádzajú v bezprostrednej blízkosti.
Vďaka centrálnej polohe sú centro Norimbergu aj hlavná železničná stanica dosiahnuteľné v priebehu niekoľkých minút. Spojenie s diaľničnou sieťou je tiež ideálne, čím je zabezpečené rýchle spojenie do všetkých smerov.
Kombinácia mestského prostredia a výborného dopravného spojenia robí túto lokalitu mimoriadne atraktívnou pre profesionálov, dochádzajúcich a študentov.
Moderná novostavba (rok výstavby 2026)
Premyslené rozloženie 2 izieb
Moderná obložená kúpeľňa
Kvalitná podlaha
Dva výťahy v budove
Vlastná pivnica
K dispozícii je podzemná garáž
Možnosť nasťahovania dohodou
Byt zaujme moderným, jasným vybavením a je ideálny pre komfortné bývanie bez dodatočných nárokov na zariadenie.
Tešíme sa na Váš záujem o ponúkaný byt.
Prosím, vezmite na vedomie, že momentálne – na želanie vlastníka – môžu byť zohľadnení len nájomcovia, ktorí sú schopní si sami zabezpečiť platbu nájomného. Ďakujeme za pochopenie.
Termíny prehliadok prideľujeme individuálne a podľa dohody.
Pre ďalšie informácie alebo dohodnutie termínu sme Vám k dispozícii.
Pri online dopytoch prosíme o uvedenie telefónneho čísla, aby sme Vás mohli v prípade otázok rýchlo a jednoducho kontaktovať.
Parametre nehnuteľnosti
| Stav | Novostavba |
|---|---|
| Poschodie | 2. poschodie |
| Úžitková plocha | 45 m² |
| Dispozícia | 2+1 |
|---|---|
| Číslo inzerátu | 997710 |
| Cena za jednotku | 21 € / m2 |
Čo táto nehnuteľnosť ponúka?
| Pivnica | |
| Výťah | |
| MHD 2 minúty pešo |
| Garáž | |
| Parkovanie |
V okolí nehnuteľnosti nájdete
Stále hľadáte to pravé?
Nastavte si strážneho psa. Ponuky vybrané na mieru dostanete súhrnne 1× denne e-mailom. S Premium profilom máte po ruke rovno 5 strážcov a keď sa niečo objaví, informujú vás obratom.

























