
Predaj bytu 3+1 • 86 m² bez realitkyCarl-Appel-Straße 7 Wien 10. Bezirk Wien 1100
Diese hochwertige, lichtdurchflutete vlastnená bytová jednotka v renomovanom Delugan-Meissl Tower na Wienerbergu spája moderné bývanie, ohromujúce diaľkové výhľady a jednu z najperspektívnejších budúcich lokalít vo Viedni. Nachádza sa na 12. poschodí, kde si môžete vychutnať pôsobivú panorámu mesta, ako aj východy a západy slnka zo všetkých troch strán.
Jednou z veľkých výhod do budúcnosti je plánovaná stanica U2 priamo oproti budove (dokončenie plánované okolo roku 2035). V budúcnosti U2 poskytne priamu dopravu k centrálnym viedenským hotspotom, ako sú Mariahilfer Straße, radnica, MuseumsQuartier, Prater, Messe Wien a Seestadt Aspern. Táto rozsiahla investícia do infraštruktúry robí lokalitu mimoriadne atraktívnou a ponúka vynikajúci dlhodobý potenciál zvyšovania hodnoty.
Predaj prebieha bez provízie priamo od majiteľa – záujem maklérov nie je vítaný!
Lokalita a infraštruktúra – mestské, zelené a pripravené do budúcnosti
Mestská štvrť Wienerberg patrí k najdynamickejším obytným lokalitám vo Viedni a spája dokonalú infraštruktúru s vysokou hodnotou pre voľný čas:
• Oddychová zóna Wienerberg, golfové ihrisko a zelené plochy práve za dverami
• Nakupovacie možnosti, lekári, školy a gastronómia dostupné pešo
• Vynikajúce dopravné spojenie (autobus, U1, U6, individuálna doprava)
• Budúca stanica U2 priamo oproti budove ako kľúčový hnací motor hodnoty
Táto kombinácia robí byt mimoriadne atraktívnym ako pre vlastných užívateľov, tak aj pre investorov.
V okolí:
(prehľad okolia viz fotogaléria)
50 m
• Plánovaná stanica U2 – od 2035 (C)
• 65A – autobus (C)
• 7B – autobus (C)
100 m
• Zdravotné centrum ÖGK (B)
• 7A – autobus (B)
• 15A – autobus (B)
• 63A – autobus (B)
• Loving Hut – reštaurácia (E)
• Kaderník (E)
• Zubár (F)
• Materská škola (F)
• Grécka reštaurácia (G)
• Cineplexx – kino (H)
• Burger King – reštaurácia (H)
• Speed Fit – fitness centrum (H)
• Som Kitchen – reštaurácia (H)
• Vienna Twin Towers – MyHive (H)
200 m
• Lidl – supermarket (A)
• Základná škola (D)
• Billa – supermarket (I)
• Bipa – drogéria (I)
• The Roast – reštaurácia (I)
• Anker – pekáreň (I)
• Pošta (I)
• Bank Austria (I)
• Twenty Two – reštaurácia (I)
• Holiday Inn – hotel (I)
• NKD (I)
• Kaderník (I)
• Trafik (I)
• Lekáreň (J)
• Všeobecný lekár (K)
500 m
• Billa Plus – supermarket (L)
• Erste Bank SB – (L)
• Hofer – supermarket (L)
• Ebi Sushi – reštaurácia (L)
• Mc Fit – fitness centrum (L)
• Golfové ihrisko (M)
• BP – čerpacia stanica s obchodom (N)
• Mc Donald's – reštaurácia (O)
• Müller Bräu – reštaurácia (P)
• Oddychová zóna Wienerberg (Q)
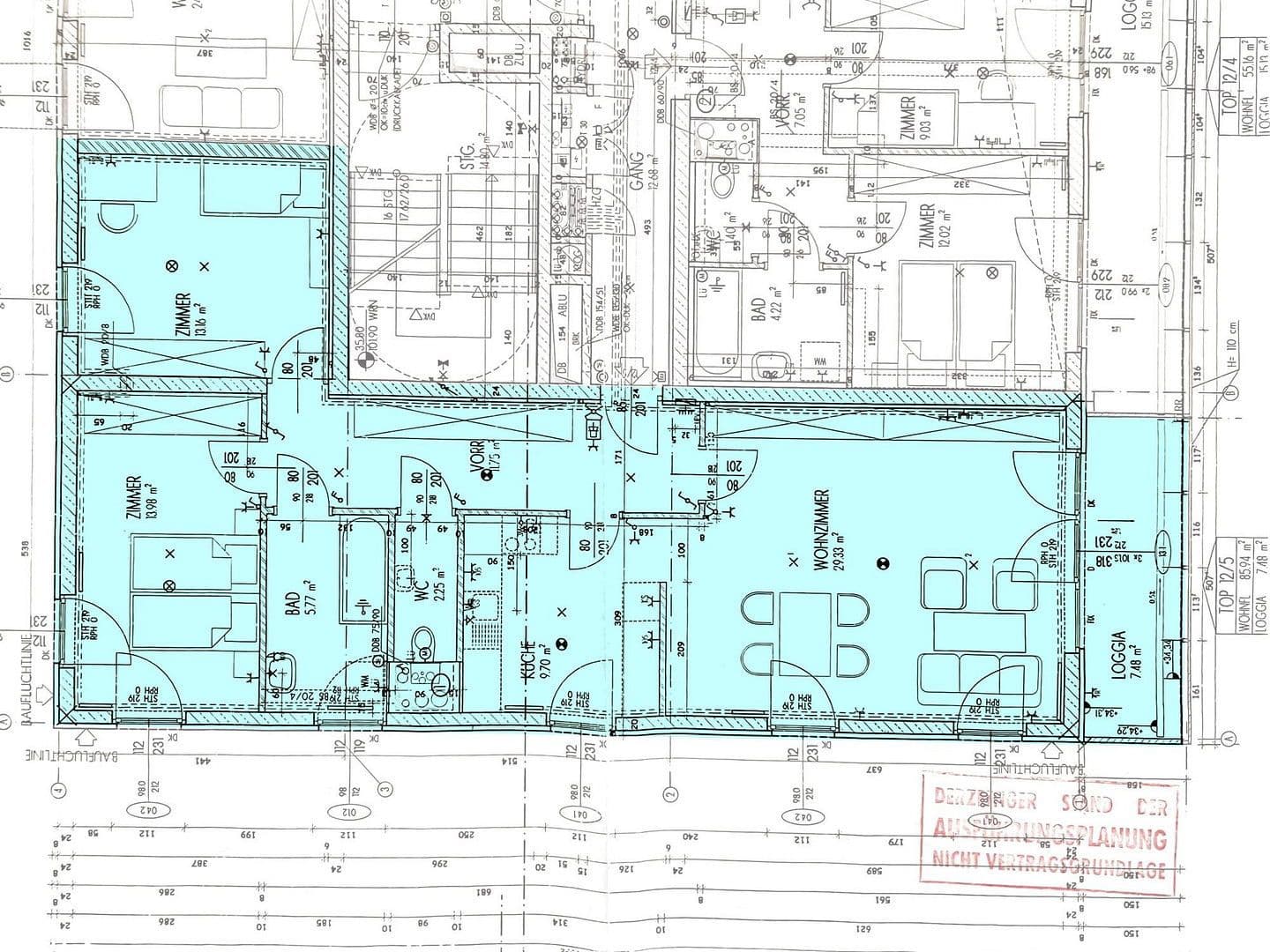
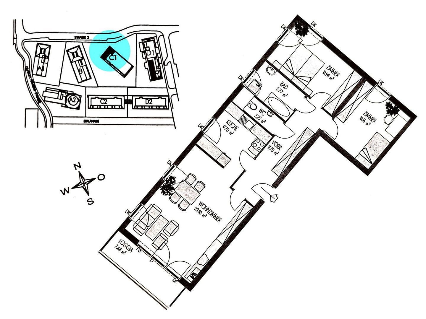
• Približne 86 m² obytného priestoru + 7 m² zasklená loggia
• 12. poschodie s výhľadom do troch svetových strán
• Priestranný obývací a jedálenský priestor so vstupom na loggiu
• Dve svetlé spálne
• Vysokokvalitná vstavaná kuchyňa DAN s kompletným vybavením
• Kúpeľňa s vaňou
• Samostatné WC
• Centrálny, optimálny pôdorys
• Ústredné teplo, videodverový interkom, vnútorné žalúzie
Zasklená loggia rozširuje obytný priestor a umožňuje celoročné využitie otvoreného priestoru s výnimočným výhľadom.
Budova – bývanie s komfortom a kvalitou
Architektonicky výrazný Delugan-Meissl Tower ponúka exkluzívny obytný komfort:
• Concierge služby
• Fitness centrum a sauna v budove
• Udržiavané spoločné priestory
• Výťahový systém a profesionálna správa budovy
• Voliteľne je v budove k dispozícii podzemné parkovacie miesto.
Parametre nehnuteľnosti
| Vek | Nad 50 rokov |
|---|---|
| Dispozícia | 3+1 |
| PENB | B - Veľmi úsporné |
| Cena za jednotku | 7 151 € / m2 |
| Stav | Po rekonštrukcii |
|---|---|
| Číslo inzerátu | 997521 |
| Úžitková plocha | 86 m² |
Čo táto nehnuteľnosť ponúka?
| Balkón | |
| Garáž | |
| MHD 0 minút pešo |
| Pivnica | |
| Výťah |
V okolí nehnuteľnosti nájdete
Stále hľadáte to pravé?
Nastavte si strážneho psa. Ponuky vybrané na mieru dostanete súhrnne 1× denne e-mailom. S Premium profilom máte po ruke rovno 5 strážcov a keď sa niečo objaví, informujú vás obratom.



















































