
Predaj domu 3+1 • 127 m² bez realitky, Šlezvicko-Holštajnsko
Walmdach-Winkelbungalow
v masívnej konštrukcii s drevenou stropnou podlahou, úplne podsklepený, s garážou a samostatným vchodom.
Rok výstavby: 1959
Obývacia plocha: 127 m²
Pozemok: 928 m²
Pokojná, upravená bočná ulica, charakteristická dommi podobnej výstavby.
Autobusové zastávky a stanice metra Garstedt alebo Richtweg sú pešo dostupné.
Metro prechádza za pozemkom v príkope s hudobnou (zvukovou) bariérou.
1995 – nové okná a vstupové/terasové dvere v prízemí
1997 – nové strešné tašky a izolácia
1999 – nová terasa s pergolou (čiastočné prikrytie)
2006 – nová plynová kondenzačná kotolňa
6× vonkajšie rolety, garážové dvere a markíza boli vymenené alebo dodatočne vybavené elektrickým pohonom.
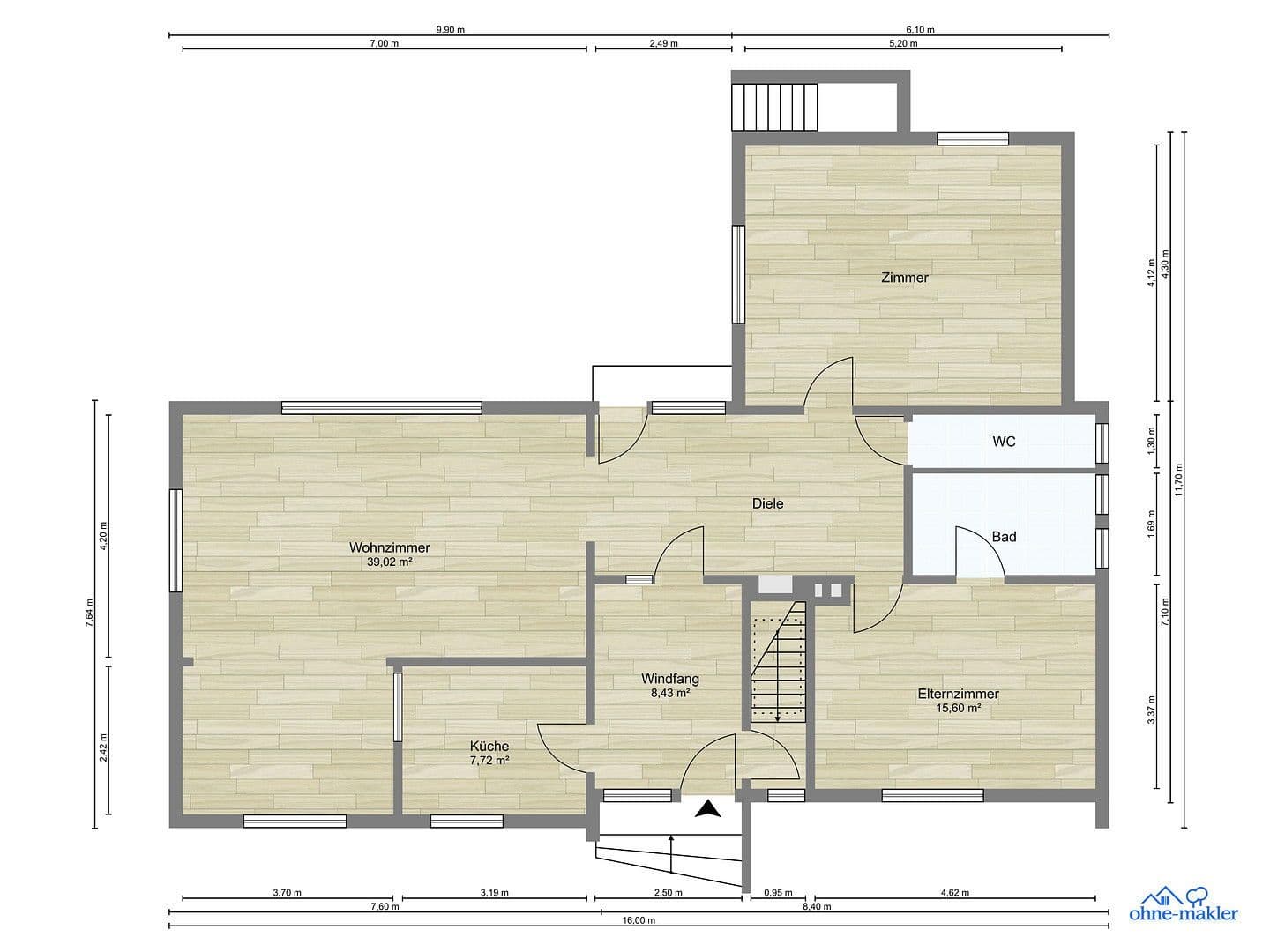
Pres vstupné dvere domu vstúpite do veľkej chodby. Odtiaľ sa dostanete do kuchyne so vstavanou linkou, k východu do sklepa a do jedálne s veľkým oknovým fóliom, z ktorej je výhľad do veľkej udržiavanej záhrady a cez posuvné dvere na prístup k veľkej, čiastočne sklenenej terase.
Jedáleň je centrálnou miestnosťou. Odtiaľ vedie prístup do svetlého a priestranného obývacieho izby s oknami na troch stranách a parketovou podlahou, do spálne s oddelenou kúpeľňou, do detskej izby s parketovou podlahou a do druhej toalety so sprchou.
Cez schody v chodbe vstúpite do sklepa. Dom je úplne podsklepený a obsahuje garáž, ktorú je možné vstúpiť zvnútra aj zvonku, s elektrickým garážovým bránou. V suteréne sa nachádza niekoľko miestností pre vykurovací systém, domácu prevádzku, dielňu, pivnicu atď. Do sklepa vedie aj ďalší vstup do záhrady.
Schodiskom na úrovni zeme sa dostanete na podkrovie.
Veľká záhrada s rozsiahlym trávnatým priestorom je nenáročná a ponúka dostatok miesta na hranie, oddych a užívanie si života. V samostatnej záhradnej chate môžete uložiť svoje záhradné náradie.
Optické (vláknové) pripojenie vám zabezpečí internet s vysokými rýchlosťami pri sťahovaní aj nahrávaní.
Obhliadky sú individuálne – po dohodnutí termínu – možné!
Prosíme Vás, aby ste pri svojom dopyte uviedli svoje úplné kontaktné údaje vrátane adresy a telefónneho čísla.
Daň z nadobudnutia nehnuteľnosti, notárske a súdne poplatky hradí kupujúci.
Tešíme sa na Vašu požiadavku prostredníctvom e-mailu.
Prosíme, rešpektujte naše súkromie a nevstupujte na pozemok bez nášho súhlasu.
Ponúkaná nehnuteľnosť sa nachádza v časti Garstedt, Norderstedt. Norderstedt je mesto v Šlesviku-Holštajnskej oblasti s približne 80 000 obyvateľmi a patrí do metropolitnej oblasti Hamburgu. Napriek priamej polohe pri hranici s Hamburgom ponúka Norderstedt idylickú oázu pohody plnú atmosféry, pokoja a prírody. Blízkosť k Tangstedter- a Ranzauerforst, ako aj norderstedtskému mestskému parku s mestským jazerom, pozýva na prechádzky alebo uvoľnené pikniky. Cyklistom, jazdcom na koni aj golfistom sa ponúka možnosť venovať sa svojim voľnočasovým aktivitám.
Vďaka výhodnej polohe mesta sa z tohto miesta dostanete do Hamburgu len za pár minút autom. V Norderstedte nájdete lekárov, lekárne, školy a materské školy, rozsiahlu ponuku voľnočasových aktivít a nákupných možností, ako aj viaceré reštaurácie. Stanice metra, autobusové zastávky a diaľnica A7 sú rýchlo dostupné.
Pokojná a rodinne orientovaná lokalita ponúka dokonalú kombináciu prírody a mestského života. Nehnuteľnosť sa nachádza v žiadanej časti Norderstedtu, ktorá sa vyznačuje exkluzívnymi obytnými domami, upraveným prostredím a vynikajúcou infraštruktúrou. S množstvom zelene a prírody v okolí je táto lokalita ideálna pre tých, ktorí hľadajú pokoj a kontakt s prírodou, ale zároveň nechcú obetovať kultúrne a kulinárske výhody veľkomesta, ktoré majú na dosah ruky.
Parametre nehnuteľnosti
| Vek | Nad 50 rokov |
|---|---|
| Dispozícia | 3+1 |
| PENB | G - Mimoriadne nehospodárne |
| Plocha pozemku | 928 m² |
| Cena za jednotku | 4 717 € / m2 |
| Stav | Dobrý |
|---|---|
| Číslo inzerátu | 997303 |
| Úžitková plocha | 127 m² |
| Celkové poschodia | 1 |
Čo táto nehnuteľnosť ponúka?
| Pivnica | |
| MHD 0 minút pešo |
| Garáž | |
| Terasa |
V okolí nehnuteľnosti nájdete
Stále hľadáte to pravé?
Nastavte si strážneho psa. Ponuky vybrané na mieru dostanete súhrnne 1× denne e-mailom. S Premium profilom máte po ruke rovno 5 strážcov a keď sa niečo objaví, informujú vás obratom.













