
Predaj domu • 227 m² bez realitkyTainger Straße 15f Pastetten Zeilern Bayern 85669
Tainger Straße 15f Pastetten Zeilern Bayern 85669MHD 1 minúta pešo • Parkovanie • GarážDom bol postavený v pevnej tehlovej výstavbe. (Tehla Proton T8 36,5 cm s výplňou zo skalnej vlny).
Pivničná podlaha je izolovaná 16 cm Styrodur, rovnako ako vonkajšie steny pivnice.
Viditeľná strešná konštrukcia s izolačným pásom – vyrábaná firmou Bauder PIR ST, obojstranne hliníková krycia omotávka s obvodovým jazýčkom a drážkou, WLS 0,24, hrúbka 160 mm, U-hodnota 0,14.
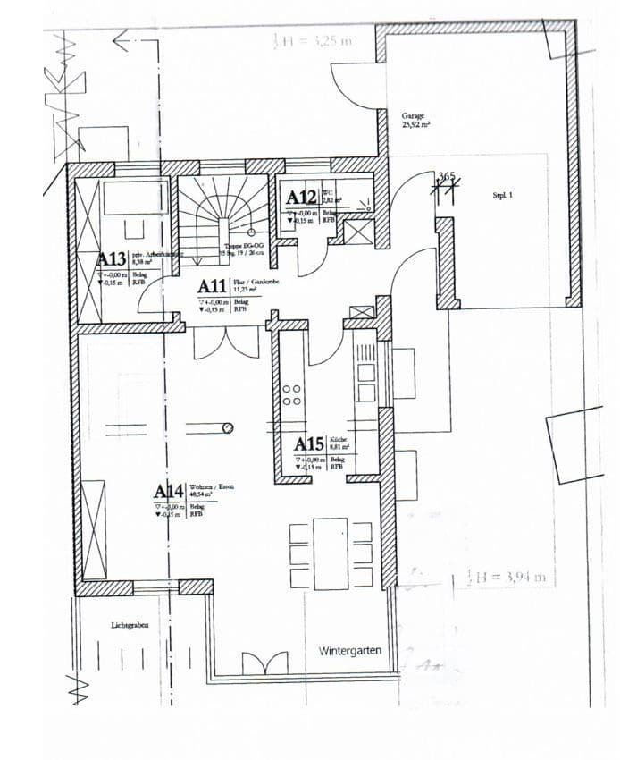
Murárska garáž so strešnou konštrukciou, so suchým prístupom k hlavnému vchodu do domu.
Srdcom tohto domu je svetlom preniknutá zimná záhrada s obytnou a jedálenskou časťou.
Krbové pripojenie v obytnom/jedálenskom priestore pre tuhé palivá, v prevedení z nehrdzavejúcej ocele.
Na hranici pozemku na severozápadnej strane stojí 2 m vysoká gabiónová stena.
DHH. sa nachádza v obci Pastetten, v mestskej časti Zeilern, v vidieckom, zelenom prostredí.
Jazličky, materská škôlka, základná škola, lekár, banka, mäsiarstvo, pošta a spolky sú na mieste.
Ďalšie informácie o obci Pastetten nájdete na http.
Dopravné spojenie:
- 2 km k diaľnici A94
- 5 km do Markt Schwaben (S2, DB, autobus 505)
- 20 minút autom do okraja Mníchova
- 25 km na letisko
Kvalitné vzduchovo-tepelné čerpadlo pre kúrenie, prípadne v lete aj na chladenie prostredníctvom podlahového kúrenia.
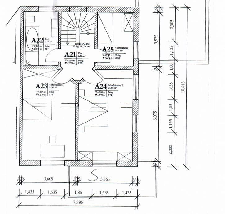
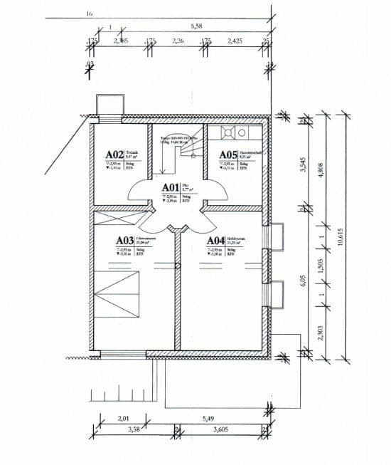
Podlahové kúrenie je inštalované v celom dome vrátane hobby miestnosti.
Výber kvalitných dlaždíc značky V&B v prízemí a kúpeľniach.
V izbách je podlahové krytina z parketového dubového dreva v prevedení Landhausdiele, olejovaná.
Kvalitný granitový obklad zdobí južnú terasu, južný balkón a severozápadnú časť domu.
Premena dvora na detskú záhradu je možná.
Pre ďalšie otázky som Vám k dispozícii.
Obhliadky prebiehajú po vzájomnej dohode.
Predaj súkromný, bez provízie.
Prosím, neoslovujte ma maklérov.
Parametre nehnuteľnosti
| Vek | Nad 50 rokov |
|---|---|
| Číslo inzerátu | 994560 |
| Úžitková plocha | 227 m² |
| Celkové poschodia | 4 |
| Stav | Novostavba |
|---|---|
| PENB | A - Mimoriadne úsporné |
| Plocha pozemku | 286 m² |
| Cena za jednotku | 4 361 € / m2 |
Čo táto nehnuteľnosť ponúka?
| Balkón | |
| Garáž | |
| MHD 1 minúta pešo |
| Pivnica | |
| Parkovanie | |
| Terasa |
V okolí nehnuteľnosti nájdete
Stále hľadáte to pravé?
Nastavte si strážneho psa. Ponuky vybrané na mieru dostanete súhrnne 1× denne e-mailom. S Premium profilom máte po ruke rovno 5 strážcov a keď sa niečo objaví, informujú vás obratom.






















