
Predaj domu 6+kk • 180 m² bez realitkyFranz-Wüllner-Straße 3 München Obermenzing Bayern 80803
Franz-Wüllner-Straße 3 München Obermenzing Bayern 80803MHD 1 minúta pešo • GarážKaždá jednotka zaujme priestrannou záhradou orientovanou na juh, ktorá tak celý deň využíva slnečné svetlo. V závislosti od polohy záhrady navyše získavajú ranné slnko zo strany východu alebo večerné slnko zo strany západu, čo vytvára mimoriadne príjemné svetelné atmosféry. Starostlivo premyslené usporiadanie domov zaručuje vysoký stupeň súkromia, takže záhrady je možné využívať individuálne. Masívna zdesená garáž oddelí domy od seba a zároveň zabezpečuje prehľadnú štruktúru. Na priestranných pozemkoch nájdú miesto aj bicykle (alebo cargo bicykle) či detské kočíky. Obložené terasy sa harmonicky začleňujú do záhrad a lákajú na oddych; podľa konkrétneho domu zachytávajú slnko pri poludnie, či svetlo počas rána alebo večera.
Prízemie:
Domy č. 1 a 2 sa vyznačujú tým, že majú priamy prístup z ulice Franz-Wüllner-Straße. Vstupná zóna je doplnená priestranným šatníkom a návštevným WC. Kuchyňa sa otvára do obývacej časti, čím sa stáva centrálnym miestom prízemia. Veľké zdvihacie posuvné dvere prinášajú do prízemia množstvo svetla a umožňujú priamy prístup na slnečné, juhom orientované terasy. Výška stropu 2,60 m umocňuje pocit otvoreného priestoru a dodáva tomuto podlažiu príjemnú vzdušnosť.
V domoch č. 3 a 4 vstupná zóna okrem šatníka ponúka dostatok miesta aj pre lavičku a je doplnená priestranným návštevným WC. Priestranné zasklenie obývacej miestnosti prináša do prízemia veľa svetla a pôsobí priateľsky aj priestranne. Otvorený pôdorys spája kuchynský priestor s obývacou a jedálenskou časťou, z ktorej je priamy prístup na terasy. Veľké posuvné dvere otvárajú obývaciu miestnosť k vonkajšiemu priestoru a opticky ju rozširujú. Aj v domoch č. 3 a 4 výška stropu 2,60 m prispieva k vzdušnému a harmonickému pocitu a podčiarkuje výnimočnú kvalitu bývania.
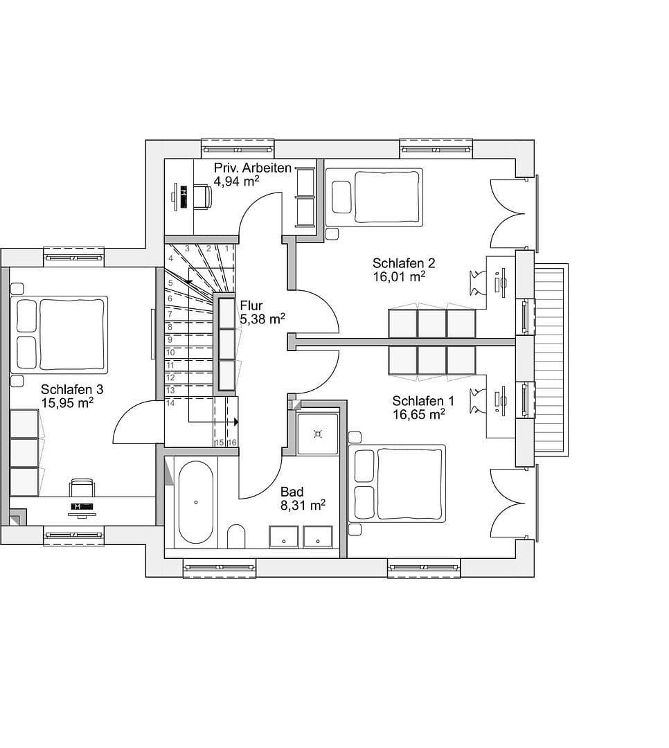
Poschodie:
Poschodie domov ponúka flexibilné využitie priestorov. Na jednej strane je možnosť umiestniť deti na jedno poschodie vybavené vlastnou detskou kúpeľňou, pričom rodičovská spálňa zostáva súkromná v podkroví. Pre mladé rodiny je tiež možnosť spať spolu s deťmi na jednom poschodí, čím sa skracujú vzdialenosti a priečiky zostávajú zároveň samostatne využiteľné. V domoch č. 3 a 4 ponúka otvor schodiska na všetkých poschodiach možnosť vytvoriť dodatočný úložný priestor v podobe vstavaného šatníka. Okrem troch priestranných spální je poschodie doplnené o pracovný priestor (home-office).
Podkroví:
Podkroví disponuje vlastnou kúpeľňou s vanou a podľa želania sa dá navrhnúť buď s veľkou spálňou vrátane priestrannej šatne, alebo ako dve oddelené izby, ktoré môžu slúžiť ako detská izba, pracovňa alebo izba pre hostí. Tento priestor sa tak dá flexibilne prispôsobiť konkrétnej rodinnej konštelácii. Výška priestoru až do 3,40 m, klasické verandy a priestranné strešné okná zaručujú svetlý a vzdušný pocit celého priestoru.
Podzemie:
V podzemí sa nachádza okrem technickej miestnosti aj priestranná skladacia miestnosť, ktorá môže byť ideálne využitá ako práčovňa. Stredobodom podzemia je rozľahlá hobby izba. Vďaka veľkému svetlovodu, podlahovému kúreniu a drevenej podlahe dosahuje hobby izba vysokú úroveň kvality bývania a môže slúžiť ako wellness zóna, fitness miestnosť alebo izba pre hostí.
Ulica:
Na ulici Franz-Wüllner bývate priamo s výhľadom na Obermenzing, ktorý je v tejto štvrti mimoriadne cenený. Školy rôznych stupňov vzdelávania a materské školy sú v príjemnej blízkosti a ľahko dostupné pre deti. Doprava verejnou dopravou je komfortná, čo znamená skrátenie dojazdových časov a rýchly a jednoduchý prístup do centra mesta.
Štvrť:
Obermenzing je zelená, prestížna obytná štvrť na západe Mníchova s vysokým podielom rodinných domov a pokojnými bočnými ulicami. Rodiny si veľmi cenia blízkosť k školám, materským škôlkam a športovým klubom, ako aj rýchly prístup k Nymphenburgskému zámockému parku a rieke Würm. Obchodné príležitosti pre každodenné potreby, kaviarne a lokálne služby sú výborne dostupné. Vďaka prepojeniu S-Bahn a autobusovou dopravou sa do centra dostanete rýchlo, pričom si zachováte pokoj a kvalitu bývania tejto štvrte.
Dom:
Dom ohromuje robustnou masívnou konštrukciou so 36,5 cm silným tehlovým múrom pre vonkajšie steny. Nosné vnútorné priečky sú postavené z 17,5 cm tehlového múru, zatiaľ čo nenosné priečky sú realizované buď z 11,5 cm tehlového múru, alebo ako suchá výstavba. Veľké plastovo-hliníkové okná s trojsklovým zasklením zabezpečujú vynikajúcu energetickú účinnosť a priesvitné miestnosti, najmä v obývacej a jedálenskej zóne, kde dominujú kvalitné zdvihacie posuvné dvere. Moderná vnútorná tepelno-vzduchová-návodná tepelné čerpadlo zabezpečuje efektívne vykurovanie. Elektrické rolety ponúkajú dodatočnú ochranu pred slnkom, zatiaľ čo moderné sanitárne zariadenia v kúpeľni poskytujú maximálny komfort. Podlahy tvoria vidiecke drevené podlahy a moderné obklady doplnené podlahovým kúrením.
Pozemok:
Pozemok je reálne rozdelený a disponuje vlastným parcelným číslom. Pre každý dom je vybudovaná samostatná garáž. Stavba prebieha na kľúč za pevne stanovenú cenu a je dokončená v stanovenom termíne generálnym dodávateľom.
Prevádzka:
Všetky domy budú samostatne prevádzkované s vlastným tepelno-vodným čerpadlom, ktoré nie je umiestnené ako obvykle vonku, ale v technickej miestnosti v podzemí. V cene je zahrnutá všetka technická inštalácia v dome, ako aj vybavenie a vykonanie vonkajších prác týkajúcich sa odtoku špinavej a dažďovej vody. Náklady na vodu, elektrinu a internet si hradí majiteľ sám. Stavebná firma vám samozrejme poskytne podporu pri potrebných žiadostiach a vykonávanie prác a poradí vám.
Maklérske dopyty nie sú vítané – zostávame verní princípu priamej komunikácie od architekta ku klientovi. Neváhajte ma kedykoľvek kontaktovať písomne alebo telefonicky – 0176 / 21 65 74 23.
Parametre nehnuteľnosti
| Vek | Nad 50 rokov |
|---|---|
| Dispozícia | 6+kk |
| Úžitková plocha | 180 m² |
| Celkové poschodia | 4 |
| Stav | Novostavba |
|---|---|
| Číslo inzerátu | 992834 |
| Plocha pozemku | 313 m² |
| Cena za jednotku | 10 250 € / m2 |
Čo táto nehnuteľnosť ponúka?
| Pivnica | |
| MHD 1 minúta pešo |
| Garáž | |
| Terasa |
V okolí nehnuteľnosti nájdete
Stále hľadáte to pravé?
Nastavte si strážneho psa. Ponuky vybrané na mieru dostanete súhrnne 1× denne e-mailom. S Premium profilom máte po ruke rovno 5 strážcov a keď sa niečo objaví, informujú vás obratom.















