
Prenájom bytu 2+kk • 40 m² bez realitkyBrožíkova, Praha - Košíře
RK NEVOLAT. Bez provize RK, přímý majitel.
Byt bude dostupný od 1.4.2026 (event. od 15.3.2026)
pozn.: koupelna na fotkách je před rekonstrukcí, byt bude předáván nájemci s novou moderní koupelnou - místo vany bude walk-in sprchový kout + úložné prostory, topný žebřík. Stejně tak na fotkách není vestavěná skříň ve vstupní chodbě (nyní připravuje truhlář na míru). Kromě výše zmíněného se byt pronajímá tak, jak je na fotkách, ovšem po dohodě s nájemníkem je možné zajistit další vybavení.
ZÁKLADNÍ INFO:
Tichý (orientace do vnitrobloku) a světlý byt 2+kk v 2.NP po kompletní rekonstrukci, 40 m² – Praha 5 Košíře (Brožíkova 279/4).
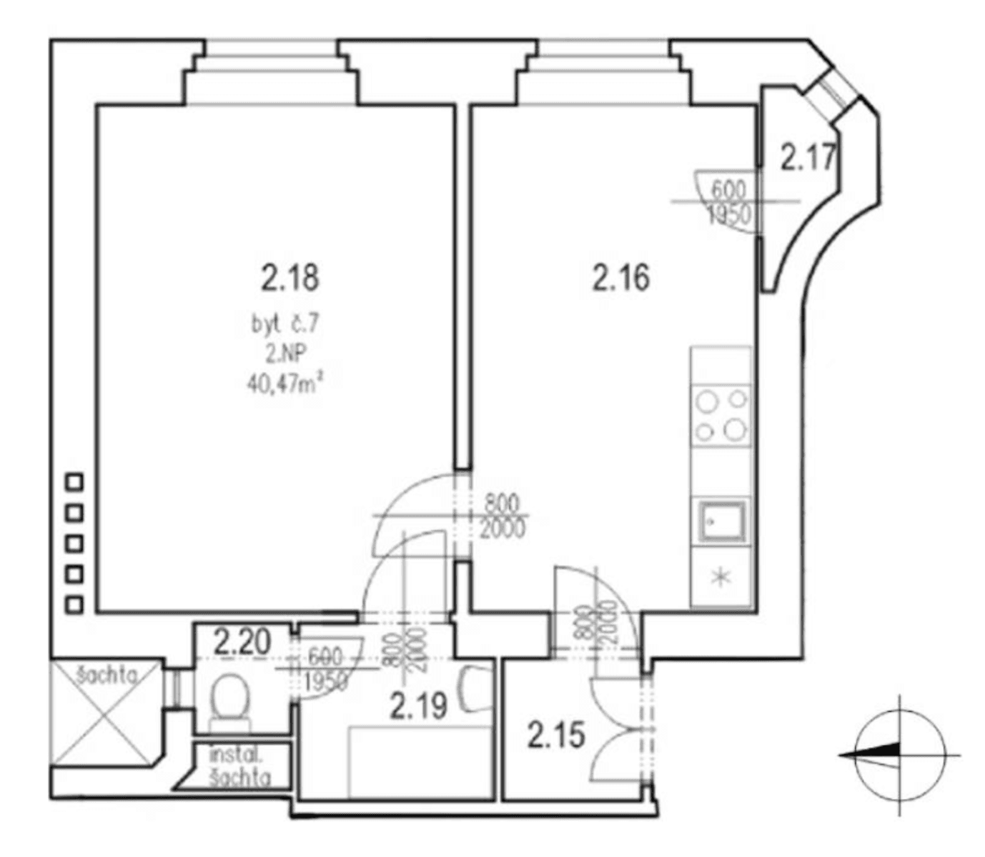
Nabízím k pronájmu moderní a velmi příjemný byt 2+kk o ploše 40 m² ve 2. nadzemním podlaží cihlového domu bez výtahu, po rekonstrukci společných prostor. Byt je po kvalitní kompletní rekonstrukci, má vysoké stropy a je orientovaný do tichého vnitrobloku, díky čemuž nabízí klidné bydlení i v atraktivní městské lokalitě.
Dispozice a vybavení
- dispozice 2+kk, 40 m²
- kuchyňská linka vč. myčky
- koupelna a praktická spíž (samostatná místnost s dveřmi, cca m²)
- nová plastová okna
- nové rozvody a elektrický boiler
- radiátory s termostatem pro přesné nastavení teploty
Dům a okolí
- cihlový dům, bez výtahu
- byt ve 2. NP
- společné prostory domu po rekonstrukci
- parkování na modrých zónách přímo v ulici
- výborná dostupnost služeb i MHD v okolí (2 zastávky tramvaje na OC Nový Smíchov)
Podmínky pronájmu
- bez provize RK – nabízí přímý majitel
- vratná kauce 2 nájmy = 46 000 Kč
- PENB: G
Byt je ideální pro jednotlivce nebo pár, kteří hledají klidné, světlé a komfortní bydlení v Praze 5. V případě zájmu mě neváhejte kontaktovat – rád doplním informace a domluvíme prohlídku.
Parametre nehnuteľnosti
| Dostupné od | 1. 3. 2026 |
|---|---|
| Konštrukcia budovy | Tehla |
| Vybavené | Čiastočne |
| Číslo inzerátu | 992069 |
| Úžitková plocha | 40 m² |
| Stav | Veľmi dobrý |
|---|---|
| Dispozícia | 2+kk |
| Poschodie | Prízemie |
| Umiestnenie | Centrum mesta |
| Cena za jednotku | 575 CZK / m2 |
V okolí nehnuteľnosti nájdete
Stále hľadáte to pravé?
Nastavte si strážneho psa. Ponuky vybrané na mieru dostanete súhrnne 1× denne e-mailom. S Premium profilom máte po ruke rovno 5 strážcov a keď sa niečo objaví, informujú vás obratom.















