
Prenájom bytu 2+1 • 56 m² bez realitkyZáhřebská, Brno - Žabovřesky, Jihomoravský kraj
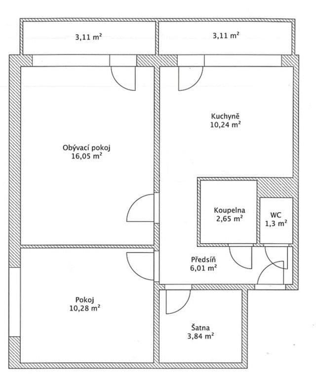
Nabízím k pronájmu krásný a světlý 2+1 byt umístěný v panelové budově, která se pyšní skvělou dostupností díky výtahu. Byt o rozloze 56 m² se nachází ve čtvrtém a zároveň posledním podlaží, což zajišťuje maximální klid a výhled bez rušivých okolních sousedství.
Interiér bytu je ve velmi dobrém stavu a vyznačuje se částečnou vybaveností, díky čemuž si můžete prostor okamžitě začít přizpůsobovat podle vlastních představ. Dispozice bytu je funkčně řešená, což podtrhuje jeho praktičnost pro bydlení jednotlivce, páru či malé rodiny.
K bytu je rovněž náležející 2 lodžie o rozloze 7 m², kde si můžete vychutnat ranní kávu či odpolední relaxaci.
Dům je zateplen, nová střecha, v bytě jsou plovoucí podlahy, klimatizace, plastová okna s žaluziemi a sítěmi proti hmyzu, odhlučněné vstupní dveře, nové rozvody elektřiny v mědi, vymalováno bílou barvou.
Nabídka je určena pro ty, kteří hledají pohodlné a klidné bydlení bez starostí se spolubydlením či parkováním.Byt je volný ihned.
Nájem uzavírán na rok tedy dobu určitou s možností opakovaného prodloužení
1 měsíční nájem vratná kauce, energie budou převedeny na nájemce (elektřina a plyn).
Pokud vás zaujala nabídka, neváhejte mě kontaktovat a domluvíme si osobní prohlídku.
Parametre nehnuteľnosti
| Dostupné od | 17. 2. 2026 |
|---|---|
| Konštrukcia budovy | Panel |
| Vybavené | Čiastočne |
| Číslo inzerátu | 991784 |
| Úžitková plocha | 56 m² |
| Stav | Veľmi dobrý |
|---|---|
| Dispozícia | 2+1 |
| Poschodie | 4. poschodie z 4 |
| Umiestnenie | Tichá lokalita |
| Cena za jednotku | 348 CZK / m2 |
Čo táto nehnuteľnosť ponúka?
| Výťah |
| Lodžia 7 m² |
V okolí nehnuteľnosti nájdete
Stále hľadáte to pravé?
Nastavte si strážneho psa. Ponuky vybrané na mieru dostanete súhrnne 1× denne e-mailom. S Premium profilom máte po ruke rovno 5 strážcov a keď sa niečo objaví, informujú vás obratom.














