
Predaj bytu 2+kk • 45 m² bez realitkyFamfulíkova, Praha - Kobylisy
Nabízím k prodeji světlý, nově zrekonstruovaný byt 2+kk (45,5 m²) ve 4. patře panelového domu s velkým výtahem. Byt prošel kompletní rekonstrukcí: nové podlahy, vymalované stěny, kuchyňská linka IKEA.
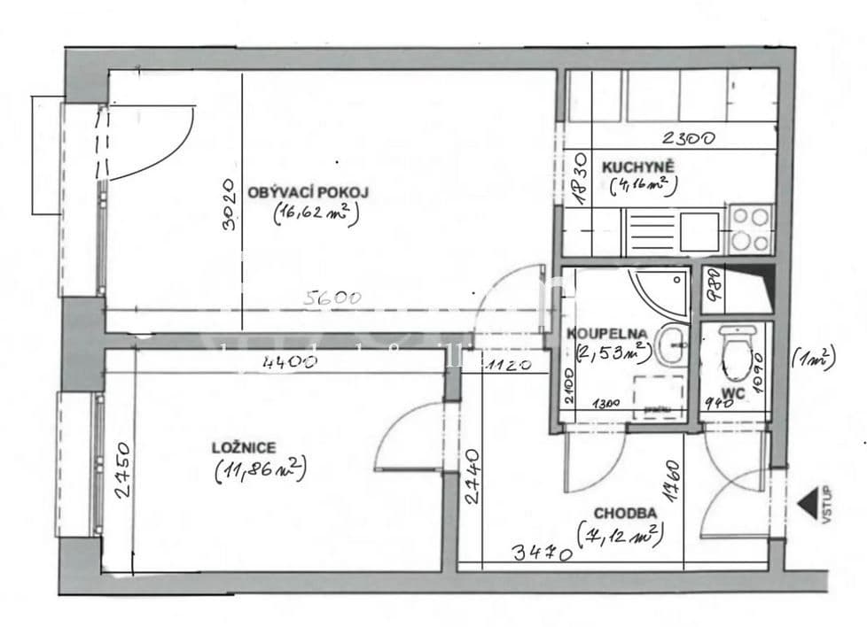
Dispozice: obývací pokoj s vybaveným kuchyňským koutem (elektrická trouba, varná deska, lednice, myčka), samostatná ložnice s kobercem, chodba, koupelna s malou vanou, oddělené WC. Součástí nabídky je i balkon na chodbě a komora o rozloze 2 m², která je v 9.patře.
Lokalita: klidná část Kobylis s výhledem do zeleně, okna na západ, skvělá dopravní dostupnost — 3 minuty k autobusové zastávce, 5 minut k metru C-Ládví.
Pro více informací a domluvení prohlídky odpovězte na inzerát.
I am offering for sale a bright, newly renovated 2+kk apartment (45.5 m²) on the 4th floor of a panel building with a large elevator. The apartment has undergone a complete renovation: new floors, freshly painted walls, and a new kitchen unit.
Layout: a living room with a fully equipped kitchenette (electric oven, stovetop, refrigerator, dishwasher); a separate bedroom with carpet; a hallway; a bathroom with a small bathtub; and a separate toilet. The offer also includes a balcony located in the hallway and a storage room of 2 m², which is on the 9th floor.
Location: a quiet part of Kobylisy with views of greenery, west-facing windows, and excellent transport links—3 minutes to the bus stop and 5 minutes to Metro C-Ládví.
For more information or to arrange a viewing, please respond to the advertisement.
Parametre nehnuteľnosti
| Dostupné od | 15. 2. 2026 |
|---|---|
| Konštrukcia budovy | Panel |
| Vybavené | Čiastočne |
| Číslo inzerátu | 991468 |
| PENB | G - Mimoriadne nehospodárne |
| Úžitková plocha | 45 m² |
| Stav | Dobrý |
|---|---|
| Dispozícia | 2+kk |
| Poschodie | Prízemie |
| Vlastníctvo | Osobné |
| Umiestnenie | Sídlisko |
| Cena za jednotku | 144 444 CZK / m2 |
Čo táto nehnuteľnosť ponúka?
| Bezbariérový prístup | |
| Výťah |
| Pivnica 1 m² | |
| Parkovanie |
V okolí nehnuteľnosti nájdete
Stále hľadáte to pravé?
Nastavte si strážneho psa. Ponuky vybrané na mieru dostanete súhrnne 1× denne e-mailom. S Premium profilom máte po ruke rovno 5 strážcov a keď sa niečo objaví, informujú vás obratom.












