
Prenájom bytu 1+kk • 26 m²Peroutkova, Praha - Jinonice
Peroutkova, Praha - JinoniceMHD 6minút pešoNáklady na bývanie
4249 KčPoznámka k cene
vratná kauce ve výši dvou měsíčních nájmů + provize za zprostředkování ve výši jednoho nájmuPřejete si bydlet v příjemném bytě s výhledem do zeleně v klidné části Prahy, a přitom mít kolem sebe vše, co život ve městě nabízí? Pokud jste odpověděli „ano“, je pro vás ideální bydlení v projektu VBloku. Jedná se o jedinečný projekt, který spojuje pohodlné bydlení nedaleko centra Prahy s možností být blízko přírodě.
V okolí je veškerá občanská vybavenost jako kavárny, restaurace i supermarket, ale také možnosti procházek v přírodě. Příjemný lesopark se nachází v nedalekých Košířích. Autobusová zastávka se nachází 200 m od domu a do 10 minut jste MHD na Andělu.
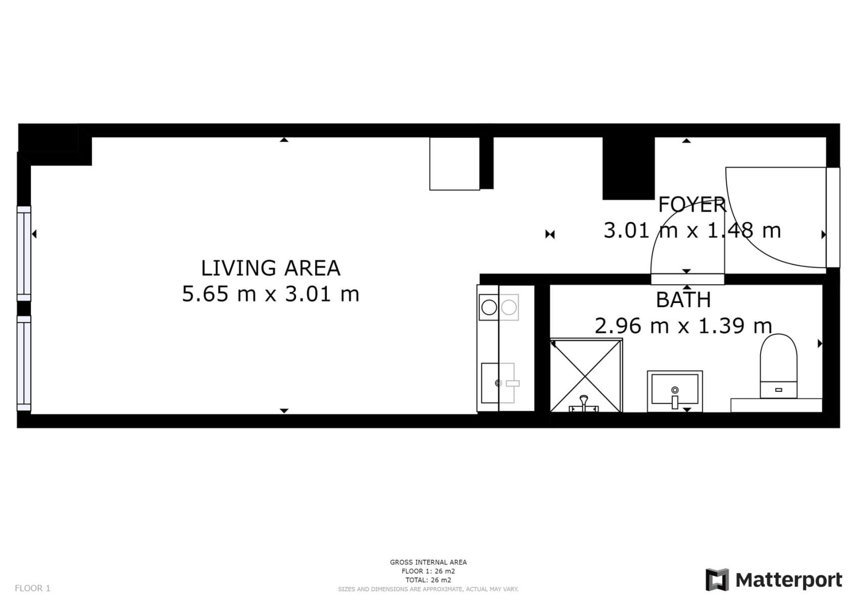
Chcete zde bydlet? Můžete! A to v bytě 1+kk o výměře 26 m2 ve 1. NP. V bytě se nachází koupelna s toaletou a obývací pokoj spojený s malým kuchyňským koutem. S úložným prostorem si hlavu dělat nemusíte, k bytu náleží také sklepní kóje.
V komplexu jsou vám k dispozici designově řešené společenské prostory, které je možné využít jen tak k posezení u krbu s knihou, či například i na pracovní schůzky. Vaše zásilky převezme recepce (k dispozici 24/7), a po náročném dni si můžete vyčistit hlavu ve fitness nacházejícím se přímo v domě. Pro obyvatele domu je zde k využití i prádelna se sušárnou.
Byt je volný k nastěhování začátkem ledna, ale na prohlídku můžete již nyní.
Poplatky vč. elektřiny činí 4 249 Kč měsíčně a jsou zúčtovatelné.
Provize za zprostředkování výši jednoho nájmu.
Vratná kauce ve výši dvou měsíčních nájmů.
Zaujala vás tato nabídka a bojíte se, aby vám neunikla? Nyní už nemusíte. Nabízíme vám možnost si byt pronajmout plně online. Pokud ovšem dáváte přednost osobní prohlídce, tak neváhejte a domluvte si ji. Těšíme se na setkání.
Kontaktovat nás můžete v pracovní dny od 9:00 do 17:30.
Would you like to live in a pleasant apartment with a view of greenery in a quiet part of Prague, while still having everything city life has to offer around you? If you answered "yes," then living in the VBlok project is ideal for you. This is a unique project that combines comfortable living near the center of Prague with the opportunity to be close to nature.
The surrounding area offers all the amenities you need, such as cafés, restaurants, and a supermarket, as well as opportunities for walks in nature. A pleasant forest park is located in nearby Košíře. A bus stop is located 200 m from the building, and you can reach Anděl in 10 minutes by public transport.
Would you like to live here? You can! In a 26 m² studio apartment on the 1st floor. The apartment has a bathroom with a toilet and a living room connected to a small kitchenette. You don't have to worry about storage space, as the apartment also has a basement storage unit.
The complex offers designer common areas that can be used for sitting by the fireplace with a book or for business meetings. Your packages will be received by the reception (available 24/7), and after a busy day, you can clear your head in the fitness center located directly in the building. Residents of the building also have access to a laundry room with a dryer.
The apartment is available for move-in at the beginning of January, but you can view it now.
Utilities, including electricity, cost CZK 4,249 per month and are billable.
The brokerage commission is one month's rent.
The refundable security deposit is two months' rent.
Are you interested in this offer and afraid of missing out? Now you don't have to be. We offer you the option of renting the apartment fully online. However, if you prefer a personal viewing, don't hesitate to arrange one. We look forward to meeting you.
You can contact us on weekdays from 9:00 a.m. to 5:30 p.m.
Parametre nehnuteľnosti
| Dostupné od | 9. 1. 2026 |
|---|---|
| Konštrukcia budovy | Zmiešaná |
| Vybavené | Nevybavené |
| Číslo inzerátu | 988517 |
| PENB | D - Menej hospodárne |
| Úžitková plocha | 26 m² |
| Cena za jednotku | 423 CZK / m2 |
| Stav | Veľmi dobrý |
|---|---|
| Dispozícia | 1+kk |
| Poschodie | 1. poschodie |
| Vlastníctvo | Osobné |
| Odpad | Verejná kanalizácia |
| Voda | Z verejného zdroja |
Čo táto nehnuteľnosť ponúka?
| MHD 6 minút pešo |
V okolí nehnuteľnosti nájdete
Náklady na bývanie
4249 KčPoznámka k cene
vratná kauce ve výši dvou měsíčních nájmů + provize za zprostředkování ve výši jednoho nájmu




Prenájom bytuNádražní, Kralupy nad Vltavou - Kralupy nad Vltavou, Středočeský kraj- 1+kk
- 25 m²
13 000 CZK + 3 100 CZK
Stále hľadáte to pravé?
Nastavte si strážneho psa. Ponuky vybrané na mieru dostanete súhrnne 1× denne e-mailom. S Premium profilom máte po ruke rovno 5 strážcov a keď sa niečo objaví, informujú vás obratom.










