
Predaj domu 3+1 • 87 m² bez realitkyGRUNDSTÜCK EXKLUSIV NUR FÜR DANWOOD- HAUSBAU GRAZNÄHE! Kohldorf Steiermark 8323
Bungalow: Nižšie v PDF nájdete niekoľko cenových príkladov!
Vážené budovateľky a budovatelia,
Chcete si splniť sen o vlastnom bývaní, ale nie ste si istí, ktorý dodávateľ je pre vás ten pravý, alebo kto vám môže ponúknuť dom v požadovanom stavebném štýle?
S DAN-WOOD-HOUSE si môžete zrealizovať svoj vysnívaný dom – aj keď ešte nemáte konkrétny stavebný plán. Vyberte si z 130 rôznych typov domov a prispôsobte si ich bezplatne podľa vašich želaní. Okrem toho je k dispozícii aj výber rôznych typov stien.
Aká genialita: Nejde o to, čo DAN-WOOD alebo jednotlivé firmy ponúkajú, ale o to, ako vyzerá vaša individuálna predstava o vašom bývacom sne! Tu vám bude ponúknuté dôkladné poradenstvo, ktoré vás nadchne!
Ponúkam vám moje individuálne poradenstvo pre váš projekt! Začínam s prvou konzultáciou, ktorú preferenčne vykonávam priamo na vašom stavebnom pozemku. Tvar, výškový rozdiel a orientácia pozemku sú tu absolútnymi hlavnými hrdinami!
Ešte nemáte pozemok? Žiadny problém! Rada vám poskytnem prehľad o mnohých skvelých možnostiach dizajnu DAN-WOOD domov. Je tu toľko zaujímavých aspektov, ktoré je potrebné vyriešiť: typ domu, dispozícia, tvar strechy, kúrenie, elektrika, tienenie a prípadné vybavenie ako „smart home“.
Je naozaj dôležité poznať celkové finančné náklady vrátane prípravnej ukážky!
Teším sa, že vám môžem oznámiť, že pre toto pripravím predbežnú ukážku. Takto si môžete tieto náklady jednoducho započítať! Je to skutočne skvelá pomoc! S týmto môžete nielen vytvoriť finančný plán, ale aj hľadať financing.
Neváhajte, kontaktujte ma teraz! 0676 5537747
Objednávka katalógu pod „Katalog Serie Today“ – tatjana.wyss@danwood.at
Pri objednávke prosím uveďte vašu adresu a telefónne číslo.
Na vašom pozemku alebo v...
Güssing: Približne 2 600 m², lokalita úplne rovná, pričom veľkosti pozemkov a ich polohy sú voľne voliteľné. Veľkosti od 500 m² do 1500 m².
Tu sú stavebné pozemky prémiovej triedy! V najlepšej lokalite a s úchvatným výhľadom na nádherný hrad Güssing!
Güssing ponúka perspektívny, dostupný a energeticky nezávislý život v prírode, čo robí z investície do nehnuteľnosti v tejto oblasti strategickú hodnotovú investíciu.
Prečo Güssing?
Energetický priekopník a udržateľnosť:
Mesto je energeticky autonómne a medzinárodne uznávané.
Vysoké pokrytie (viac ako 85 %) regionálnym systémom biomasy na diaľkové kúrenie vedie k stabilným a výhodným nákladom na kúrenie.
Dostupné ceny nehnuteľností:
Ceny sú ešte výrazne príjemnejšie ako rakúsky priemer, čo umožňuje realizáciu sna o vlastnom bývaní s priestrannými pozemkami.
Silná infraštruktúra a kvalita života:
Ako obvodové mesto zaručuje Güssing krátke vzdialenosti a najlepšie služby.
Plánované veľké investície:
Nový vzdelávací kampus a moderné centrum pre lekárov (od roku 2026).
Kultúrne centrum (hrad Güssing) a blízkosť termálnych kúpeľov.
Kompletné otvorenie S7 prinesie Güssingu a jeho obyvateľom značné výhody:
Rýchlejšia dostupnosť do väčších miest: Rýchlostná diaľnica výrazne skracuje cestovanie na diaľnicu A2 smer juh, čím sa výrazne znižujú cestovné časy do Grazu a Viedne.
Odľahčenie regiónu: Presmeruje tranzitnú premávku, ktorá predtým zaťažovala obce ako Fürstenfeld a Rudersdorf, na novú trasu.
Ekonomické impulzy: Nová dostupnosť, medzi iným cez prístupové miesta pri Rudersdorf/Dobersdorf a blízkosť napojenia na Königsdorf, posilní Güssing ako obvodové mesto a podnikateľskú lokalitu vďaka lepšej dostupnosti a podpore nových priemyselných zón.
Stabilita hodnôt a potenciál rozvoja:
Cielené komunálne investície do infraštruktúry, oživenie centra mesta a technologického centra zabezpečujú dlhodobú stabilitu hodnôt nehnuteľností.
Komunálna stratégia je zameraná na zvládnutie demografických výziev a etablovanie Güssingu ako atraktívnej lokality pre bývanie aj podnikanie.
Cieľová skupina:
Rodiny, ktoré hľadajú budúcnosť, bezpečnosť a prírodu, ako aj všetkých, ktorí kladú dôraz na nízke náklady na energiu a ekologickú zodpovednosť.
Ďalšie pozemky v:
Pozemok, 8323 Kohldorf: Stavebný pozemok s veľkým množstvom slnka vo východnom štajerskom kopcovitom prostredí, 15 km od Grazu!
Veľkosť: 758 m², kúpna cena: 66 000 €
Pozemok, 8323 Kohldorf: Slnečný stavebný pozemok v Kohldorfe, 15 km východne od Grazu!
Veľkosť: 787 m², kúpna cena: 69 000 €
Pozemok, 8311 Markt Hartmannsdorf: Úplne upravený, slnečný stavebný pozemok v Markt Hartmannsdorf
Veľkosť: 920 m², kúpna cena: 53 000 €
Pozemok, 9335 Lölling Graben: Stavebný pozemok s úchvatným diaľkovým výhľadom v malebnej karintianskej horskej krajine
Veľkosť: 1001 m², kúpna cena: 50 000 €
Pozemok, 8075 Hart pri Graze: Slnečný pozemok pri bránach Grazu
Veľkosť: 1980 m², kúpna cena: 475 000 €
Pozemok v Stainz na predaj: Slnečný pozemok na okraji mesta Stainz
Veľkosť: 825 m², kúpna cena: 149 000 €
Medzi vlastníka pozemku a staviteľa domu neexistuje žiadne ekonomické prepojenie.
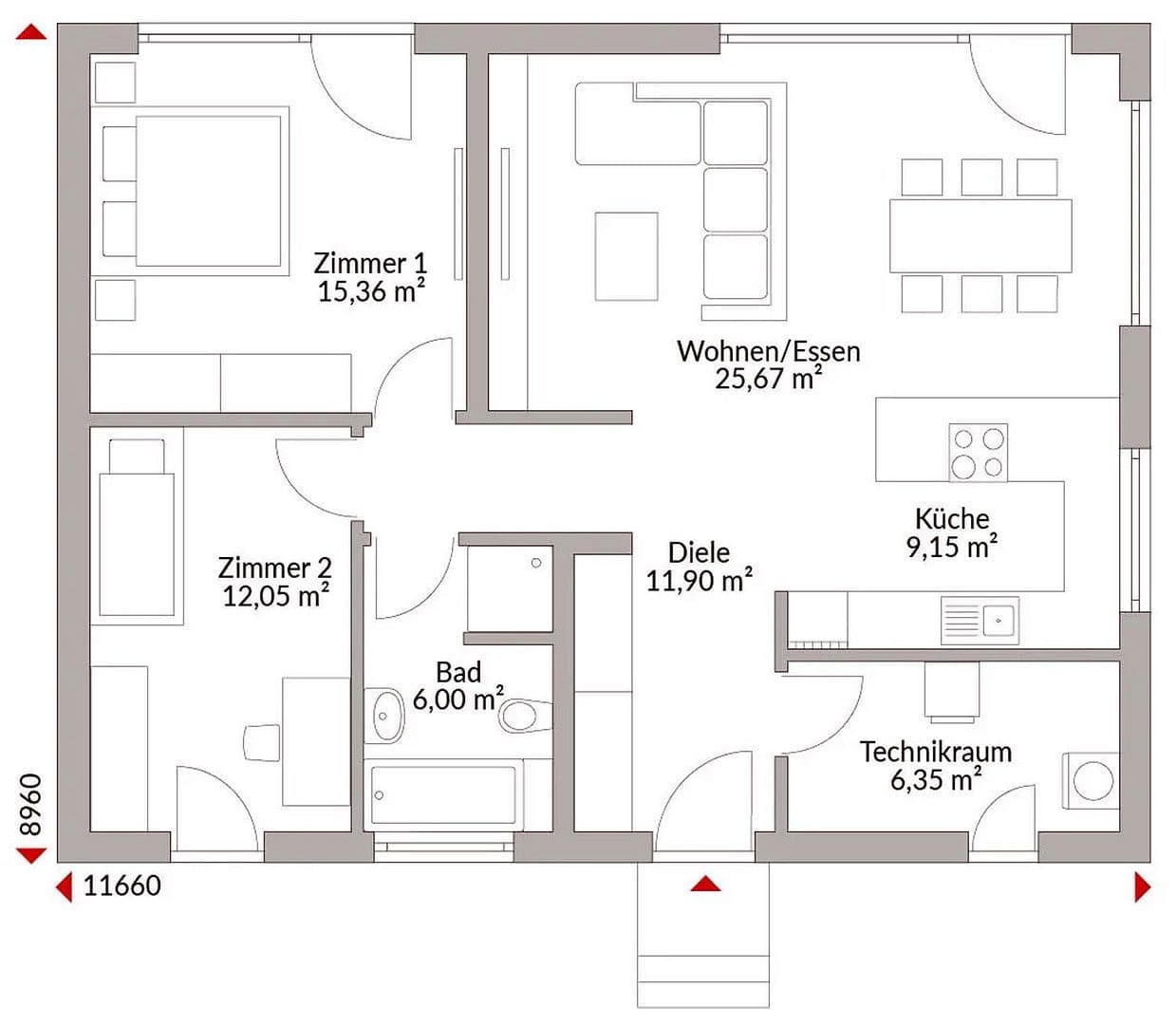
BUNGALOW 3 izby, kúpeľňa, WC, exkluzívne vybavenie!
Pozemok, 500 m², 1000 m², 1500 m² – podľa želania dostupné.
V cene je zahrnuté:
• Odovzdanie "pod kľúč" (prineste si nábytok a hneď bývajte!)
• Doručenie a montáž od základovej dosky až po hornú hranu
• Strešná konštrukcia zosilnená proti snežnej záťaži
• Vzduch-voda tepelné čerpadlo, podlahové kúrenie
• Decentrálna ventilácia obytných priestorov s rekuperáciou tepla (v lete chladí)
• Elektrické rolety v celom dome
• Všetky podlahové krytiny podľa vášho výberu
• Všetky kúpeľňové zariadenia podľa vášho výberu
• Príprava pre fotovoltaiku
• Balíček „všetko bez starostí“
VOLITELNÉ: Vlastná práca je samozrejme možná!
Poradenstvo – Predaj: pani Tatjana Wyss
Telefon: +43 676 553 77 47, tatjana.wyss@danwood.at
Okamžitá informácia alebo prvá konzultácia!
Ďalšie ponuky:
https://qr.scan.page/uploads/pdf/1751712478803_686335a001f76.pdf
Požiadajte o stavebný opis a katalógy!
Na tento účel je potrebné uviesť vaše telefónne číslo, emailovú adresu a adresu.
Ďakujeme!
Parametre nehnuteľnosti
| Vek | Nad 50 rokov |
|---|---|
| Dispozícia | 3+1 |
| Úžitková plocha | 87 m² |
| Celkové poschodia | 1 |
| Stav | Novostavba |
|---|---|
| Číslo inzerátu | 987708 |
| Plocha pozemku | 1 m² |
| Cena za jednotku | 2 564 € / m2 |
Čo táto nehnuteľnosť ponúka?
| Garáž |
| MHD 2 minúty pešo |
V okolí nehnuteľnosti nájdete
Stále hľadáte to pravé?
Nastavte si strážneho psa. Ponuky vybrané na mieru dostanete súhrnne 1× denne e-mailom. S Premium profilom máte po ruke rovno 5 strážcov a keď sa niečo objaví, informujú vás obratom.













