Predaj domu 3+1 • 87 m² bez realitkyGRUNDSTÜCK 800M GRAZ EXKLUSIV NUR FÜR DANWOOD-HAUSBAU Hart bei Graz Steiermark 8075
GRUNDSTÜCK 800M GRAZ EXKLUSIV NUR FÜR DANWOOD-HAUSBAU Hart bei Graz Steiermark 8075MHD 2 minúty pešo • GarážBungalov: Nižšie v PDF nájdete niekoľko cenových príkladov!
Vážení stavební zákazníci,
Chcete si splniť sen o vlastnom bývaní, ale nie ste si istí, ktorý dodávateľ je pre vás ten pravý alebo kto vám dokáže ponúknuť dom so želanou stavebnou realizáciou?
S DAN-WOOD-HOUSE môžete spraviť svoj vysnívaný domov realitou – aj keď ešte nemáte konkrétny stavebný plán. Vyberte si z 130 rôznych typov domov a prispôsobte si ich zdarma podľa svojich predstáv. Okrem toho máte možnosť výberu z rôznych systémov stavby stien.
Aká skvelá myšlienka: Nezáleží na tom, čo ponúka DAN-WOOD alebo jednotlivé spoločnosti, ale na tom, ako vyzerajú vaše individuálne predstavy o vašom vysnívanom bývaní! Tu vám ponúkneme odborne podložené poradenstvo, ktoré vás určite nadchne!
Ponúkam vám svoje individuálne poradenstvo pre váš projekt! Začnem úvodnou konzultáciou, ktorú radšej vykonám priamo na vašom stavebnom pozemku. Tvar, výškový rozdiel a orientácia pozemku sú pri tom absolútnymi hlavnými faktormi!
Ešte nevlastníte pozemok? Žiadny problém! Rád vám poskytnem prehľad o mnohých skvelých možnostiach dizajnu domov DAN-WOOD. Je tu toľko zaujímavých aspektov, ktoré treba prebrať: typ domu, rozloženie izieb, tvar strechy, kúrenie, elektroinštalácia, tiene a prípadné vybavenie, akým je aj systém „Smart Home“.
Je naozaj dôležité poznať celkové finančné náklady vrátane predbežného návrhu!
Teším sa, že vám môžem oznámiť, že pre tento účel vykonám predbežnú vizualizáciu. Takto si môžete tieto náklady veľmi jednoducho zaplaniť! Je to skutočne skvelá pomoc – nielenže tým vytvoríte finančný plán, ale aj si môžete hľadať vhodné financovanie.
Neváhajte, kontaktujte ma teraz! 0676 5537747
Objednávka katalógu – „Katalog Serie Today“: tatjana.wyss@danwood.at
Pri objednávke uveďte, prosím, svoju adresu a telefónne číslo.
Na vašom pozemku alebo v…
Güssing: Približne 2 600 m², úplne rovný terén. Pozemkové plochy a ich umiestnenie si môžete voľne zvoliť. Rozlohy od 500 m² do 1500 m².
Tu sú stavebné pozemky prvotriednej kvality! V najlepšej lokalite a s úchvatným výhľadom na nádherný zámok Güssing!
Güssing ponúka budúcnosťne stabilný, cenovo dostupný a energeticky nezávislý život v prírode, čo robí investíciu do nehnuteľnosti tam strategickou investíciou.
Prečo Güssing
Energetický priekopník a udržateľnosť:
Mesto je energeticky sebestačné a medzinárodne uznávané.
Vysoké pokrytie (nad 85 %) regionálnou biomasovou diaľkovou tepelnou energiou vedie k stabilným a nízkym nákladom na kúrenie.
Dostupné ceny nehnuteľností:
Ceny sú ešte oveľa priaznivejšie ako priemerné v Rakúsku, čo umožňuje sen o vlastnom dome s priestrannými pozemkami.
Silná infraštruktúra a kvalita života:
Ako okresné predmestie zaručuje Güssing krátke vzdialenosti a najlepšie služby.
Plánované veľké investície:
Nový vzdelávací kampus a moderné lekárske centrum (od roku 2026).
Kultúrne centrum (zámok Güssing) a blízkosť kúpeľov.
Kompletné otvorenie S7 prináša významné výhody pre Güssing a jeho obyvateľov:
Rýchlejšie spojenie s aglomeráciami: Diaľnica výrazne skracuje cestovný čas na A2 južnú diaľnicu, čím sa výrazne znižujú doby cestovania do Grazu a Viedne.
Odľahčenie regiónu: Nová trasa presmeruje tranzitnú premávku, ktorá predtým silno zaťažovala obce ako Fürstenfeld a Rudersdorf.
Ekonomické impulzy: Nové spojenie, okrem iného prostredníctvom pripojovacieho uzla pri Rudersdorf/Dobersdorf a v blízkosti pripojenia Königsdorf, posilňuje Güssing ako predmestie a obchodnú lokalitu vďaka lepšej dostupnosti a podpore nových obchodných parkov.
Stabilita hodnoty a rozvojový potenciál:
Cielené komunálne investície do infraštruktúry, revitalizácie centra mesta a technologického centra zaručujú dlhodobú stabilitu hodnoty nehnuteľností.
Komunálna stratégia sa zameriava na zvládnutie demografických výziev a etablovanie Güssingu ako atraktívnej rezidenčnej a obchodnej lokality.
Cieľová skupina
Rodiny, ktoré hľadajú budúcnosť, bezpečnosť a prírodu, ako aj všetci, ktorí si cenia nízke energetické náklady a ekologickú zodpovednosť.
Ďalšie pozemky v:
Pozemok, 8323 Kohldorf: Stavebný pozemok so slnečným svetlom v východnom štajerskom kopcovitom území, 15 km od Grazu!
Rozloha: 758 m², kúpna cena: € 66 000, --
Pozemok, 8323 Kohldorf: Slnečný stavebný pozemok v Kohldorfe, 15 km východne od Grazu!
Rozloha: 787 m², kúpna cena: € 69 000, --
Pozemok, 8311 Markt Hartmannsdorf: Plne sprístupnený, slnečný stavebný pozemok v Markt Hartmannsdorf
Rozloha: 920 m², kúpna cena: € 53 000, --
Pozemok, 9335 Lölling Graben: Stavebný pozemok s úžasným výhľadom v malebnom karintskom horskom prostredí
Rozloha: 1001 m², kúpna cena: € 50 000, --
Pozemok, 8075 Hart pri Graze: Slnečný pozemok pri vrátoch Grazu
Rozloha: 1980 m², kúpna cena: € 475 000, --
Pozemok na predaj v Stainz: Slnečný pozemok na okraji Stainzu
Rozloha: 825 m², kúpna cena: € 149 000,
Medzi vlastníkom pozemku a staviteľom domu neexistuje žiadne ekonomické spojenie.
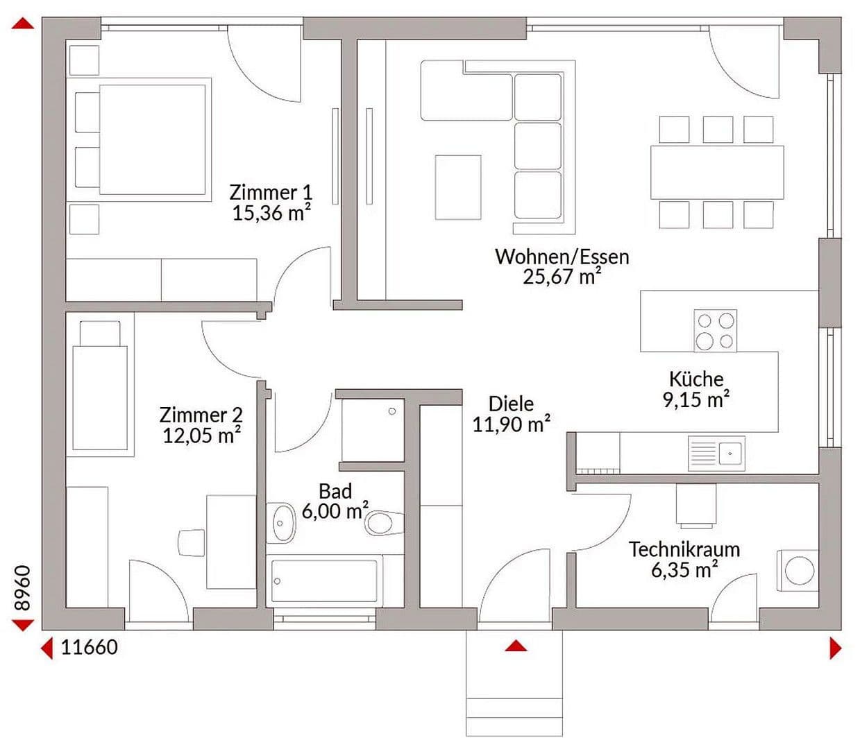
BUNGALOV – 3 izby, kúpeľňa, WC, exkluzívne vybavenie!
Pozemok: k dispozícii rozlohy 500 m², 1000 m², 1500 m² podľa želania
V cene je zahrnuté:
• Kľúčom odovzdaná výstavba (stačí priniesť nábytok a môžete sa nasťahovať!)
• Doručenie a montáž od horného okraja základu
• Strešná konštrukcia zosilnená pre snehovú záťaž
• Vzduch-voda tepelné čerpadlo, podlahové kúrenie
• Decentralizované vetranie obytných priestorov s rekuperáciou tepla (chladí v lete)
• Elektrické žalúzie v celom dome
• Všetky podlahové krytiny podľa vášho výberu
• Všetky sanitárne zariadenia podľa vášho výberu
• Príprava pre fotovoltaiku
• Balíček „bez starostí“
VOLITELNÉ: Samovykonávanie prác je samozrejme možné!
Poradenstvo – predaj: pani Tatjana Wyss
+43 676553 77 47, tatjana.wyss@danwood.at
Okamžité informácie alebo úvodná konzultácia!
Ďalšie ponuky:
https://qr.scan.page/uploads/pdf/1751712478803_686335a001f76.pdf
Požiadajte o stavebný popis a katalógy! Na to je potrebné uviesť vaše telefónne číslo, e-mailovú adresu a adresu.
Ďakujem pekne!
Parametre nehnuteľnosti
| Vek | Nad 50 rokov |
|---|---|
| Dispozícia | 3+1 |
| Úžitková plocha | 87 m² |
| Celkové poschodia | 1 |
| Stav | Novostavba |
|---|---|
| Číslo inzerátu | 979504 |
| Plocha pozemku | 1 m² |
| Cena za jednotku | 2 564 € / m2 |
Čo táto nehnuteľnosť ponúka?
| Garáž |
| MHD 2 minúty pešo |
V okolí nehnuteľnosti nájdete
Stále hľadáte to pravé?
Nastavte si strážneho psa. Ponuky vybrané na mieru dostanete súhrnne 1× denne e-mailom. S Premium profilom máte po ruke rovno 5 strážcov a keď sa niečo objaví, informujú vás obratom.












