Predaj domu 3+1 • 87 m² bez realitkyGRUNDSTÜCK AUFGESCHL: EXKLUSIV NUR FÜR DANWOOD-HAUSBAU Markt Hartmannsdorf Steiermark 8311
GRUNDSTÜCK AUFGESCHL: EXKLUSIV NUR FÜR DANWOOD-HAUSBAU Markt Hartmannsdorf Steiermark 8311MHD do minúty pešo • GarážBungalov: Nižšie v PDF nájdete niekoľko cenových príkladov!
Vážené stavebné investorky a investori,
Chcete si splniť sen o vlastnom bývaní, ale nie ste si istí, ktorý dodávateľ je pre vás ten správny alebo kto vám dokáže ponúknuť dom v požadovanom stavebnom štýle?
S DAN-WOOD-HOUSE si môžete zrealizovať dom svojich snov – aj keď ešte nemáte konkrétny stavebný plán. Vyberte si z 130 rôznych typov domov a prispôsobte si ich zadarmo podľa svojich predstáv. Okrem toho je k dispozícii niekoľko variantov stien.
Aká geniálna myšlienka: Nezáleží na tom, čo DAN-WOOD alebo jednotlivé firmy ponúkajú, ale na tom, ako vyzerajú vaše individuálne predstavy o vašom bývacom sne! Tu vám ponúkame komplexné poradenstvo, ktoré vás nadchne!
Ponúkam vám svoje individuálne poradenstvo pre váš projekt! Začínam úvodnou konzultáciou, ktorú najradšej vykonám priamo na vašom stavenisku. Forma, rozdiel výšok a orientácia pozemku sú pritom absolútnymi hlavnými hrdinami!
Pozemok ešte nemáte? Žiadny problém! Rada vám poskytnem prehľad o mnohých skvelých možnostiach dizajnu DAN-WOOD domov. Je tu toľko zaujímavých aspektov na vyriešenie: typ domu, dispozícia, tvar strechy, vykurovanie, elektroinštalácia, tienenie a možné vybavenie ako „Smart Home“.
Je naozaj dôležité poznať celkové finančné náklady vrátane ukážkovania vzorov!
S radosťou vám oznamujem, že vykonám predbežné ukážkovanie, aby ste si tieto náklady mohli jednoducho naplánovať! Je to naozaj úžasná pomoc! Takto si môžete nielen zostaviť finančný plán, ale aj vyhľadať financovanie.
Neváhajte, kontaktujte ma teraz! 0676 5537747
Objednávka katalógu cez „Katalóg Serie Today“ tatjana.wyss@danwood.at
Pri objednávke uveďte, prosím, vašu adresu aj telefónne číslo.
Na vašom pozemku alebo v…
Güssing: Približne 2 600 m², lokalita úplne rovná. Veľkosti pozemkov a ich polohy možnosť výberu podľa vlastného uváženia. Veľkosti od 500 m² do 1500 m².
Tu nájdete stavebné pozemky exkluzívnej triedy! V najlepšej lokalite a s dychberúcim výhľadom na nádherný hrad Güssing!
Güssing ponúka perspektívne, dostupné a energeticky nezávislé bývanie v prírode, čo robí investíciu do nehnuteľnosti tam strategickou hodnotovou investíciou.
Prečo Güssing
Energetický priekopník a udržateľnosť:
Mesto je energeticky sebestačné a medzinárodne uznávané.
Vysoké pokrytie (cez 85 %) regionálnym biomasovým diaľkovým vykurovaním zabezpečuje stabilné a nízke náklady na vykurovanie.
Dostupné ceny nehnuteľností:
Ceny sú ešte výrazne prijateľnejšie ako priemerné rakúske, čo umožňuje splniť si sen o vlastnom dome s priestranným pozemkom.
Silná infraštruktúra a kvalita života:
Ako predmestie okresu zaručuje Güssing krátke vzdialenosti a najlepšie zabezpečenie.
Plánované veľké investície:
Nový vzdelávací kampus a moderné lekárske centrum (od roku 2026).
Kultúrne centrum (hrad Güssing) a blízkosť kúpeľov.
Úplné otvorenie diaľnice S7 prinesie Güssingu a jeho obyvateľom značné výhody:
Rýchlejšie napojenie na aglomerácie: Diaľnica skracuje cestovný čas na diaľnicu A2 Süd masívne, čím sa významne znižujú doby cestovania do Gröstu a Viedne.
Odľahčenie regiónu: Presmeruje tranzitnú premávku, ktorá predtým prechádzala cez silno zaťažené obce ako Fürstenfeld a Rudersdorf, na novú trať.
Ekonomické impulzy: Nové napojenie, okrem iného aj cez odjazdové miesto pri Rudersdorf/Dobersdorf a blízkosť napojenia Königsdorf, posilňuje Güssing ako okresné predmestie a ekonomické centrum vďaka lepšej dostupnosti a podpore nových priemyselných zón.
Cenová stabilita a potenciál rozvoja:
Cielené obecné investície do infraštruktúry, oživenia mestského centra a technologického parku zabezpečujú dlhodobú hodnotovú stabilitu nehnuteľností.
Obecná stratégia sa zameriava na prekonanie demografických výziev a etablovanie Güssingu ako atraktívneho miesta na bývanie a pre podnikanie.
Cieľová skupina
Rodiny, ktoré hľadajú budúcnosť, bezpečie a prírodu, ako aj všetkých, ktorí kladú dôraz na nízke náklady na energiu a ekologickú zodpovednosť.
Ďalšie pozemky v:
Pozemok, 8323 Kohldorf: Stavebný pozemok s množstvom slnka v východoštajerských kopcoch, 15 km od Gröstu!
Veľkosť 758 m², predajná cena € 66 000, --
Pozemok, 8323 Kohldorf: Slnečný stavebný pozemok v Kohldorfe, 15 km východne od Gröstu!
Veľkosť 787 m², predajná cena € 69 000, --
Pozemok, 8311 Markt Hartmannsdorf: Úplne zariadený, slnečný stavebný pozemok v Markt Hartmannsdorf
Veľkosť 920 m², predajná cena € 53 000, --
Pozemok, 9335 Lölling Graben: Stavebný pozemok s úchvatným diaľkovým výhľadom v malebnom korutánskom horskom prostredí
Veľkosť 1001 m², predajná cena € 50 000, --
Pozemok, 8075 Hart pri Gröste: Slnečný pozemok pred bránami Gröstu
Veľkosť 1980 m², predajná cena € 475 000, --
Pozemok na predaj v Stainz: Slnečný pozemok na okraji Stainzu
Veľkosť 825 m², predajná cena € 149 000,
Medzi vlastníka pozemku a staviteľa domu neexistuje žiadne hospodárske prepojenie.
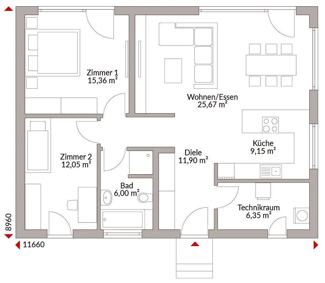
BUNGALOV 3 izbový s kúpeľňou a WC, exkluzívne vybavenie!
Pozemok 500 m², 1000 m², 1500 m² – podľa priania k dispozícii.
Cena zahŕňa:
- Kľúčové prevedenie (nábytok na mieste, stačí nasťahovať sa!)
- Dodávka a montáž od vrcholu základu
- Strešná konštrukcia zosilnená proti snežným náporom
- Vzduchovo-vodný tepelný čerpadlo, podlahové kúrenie
- Decentralizovaná vzduchová ventilácia s rekuperáciou tepla (v lete chladí)
- Elektrické rolety v celom dome
- Všetky podlahové krytiny podľa vášho výberu
- Všetky sanitárne objekty podľa vášho výberu
- Predpríprava na inštaláciu fotovoltaiky
- Balík "bez starostí"
VOLITEĽNÉ: Samostatná práca je samozrejme možná!
Poradenstvo – predaj: pani Tatjana Wyss
+43 676 553 77 47, tatjana.wyss@danwood.at
Okamžité informácie alebo úvodné poradenstvo!
Ďalšie ponuky:
https://qr.scan.page/uploads/pdf/1751712478803_686335a001f76.pdf
Požiadajte o stavebný popis a katalógy!
Na tento účel je potrebné uviesť telefónne číslo, e-mailovú adresu a adresu.
Ďakujem pekne!
Parametre nehnuteľnosti
| Vek | Nad 50 rokov |
|---|---|
| Dispozícia | 3+1 |
| Úžitková plocha | 87 m² |
| Celkové poschodia | 1 |
| Stav | Novostavba |
|---|---|
| Číslo inzerátu | 979503 |
| Plocha pozemku | 1 m² |
| Cena za jednotku | 2 564 € / m2 |
Čo táto nehnuteľnosť ponúka?
| Garáž |
| MHD 0 minút pešo |
V okolí nehnuteľnosti nájdete
Stále hľadáte to pravé?
Nastavte si strážneho psa. Ponuky vybrané na mieru dostanete súhrnne 1× denne e-mailom. S Premium profilom máte po ruke rovno 5 strážcov a keď sa niečo objaví, informujú vás obratom.












