
Predaj bytu 4+1 • 105 m² bez realitkyPistoriusstr. 111 Berlin Weißensee Berlin 13086
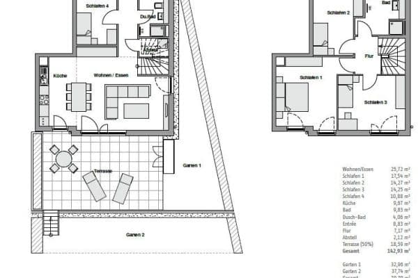
Pistoriusstr. 111 Berlin Weißensee Berlin 13086MHD 1 minúta pešo • VýťahOd 1.5.2026 si môžete zakúpiť tento krásny byt na 4. poschodí. Apartmán zahŕňa nielen štyri izby, ale aj dve kúpeľne – jedna z nich je vybavená vaňou. Otvorená obývacia a kuchynská časť (vrátane zabudovanej kuchyne) ponúka veľa priestoru pre spoločný život. Tri flexibilne využiteľné spálne a dva balkóny zaručujú dodatočný komfort. Samostatná práčovňa vám navyše poskytuje praktický úložný priestor. Byt je bezbariérový a je pohodlne prístupný výťahom. Ďalším lákadlom je sauna v suteréne určená na spoločné využitie.
Nehnuteľnosť sa nachádza v živej oblasti v berlínskom Weißensee. V blízkosti premáva niekoľko autobusových a električkových liniek. V pešej vzdialenosti nájdete niekoľko reštaurácií, lekárov, kaviarní, supermarketov a pekární. Tiež tu nájdete zelené plochy, parky, materské školy a fitness centrá.
Parkety, okná od podlahy po strop, zabudovaná kuchyňa, vstavané police, podlahové kúrenie, pripojenie krbu
Parametre nehnuteľnosti
| Vek | Nad 50 rokov |
|---|---|
| Stav | Veľmi dobrý |
| Poschodie | 4. poschodie z 5 |
| PENB | C - Hospodárne |
| Cena za jednotku | 7 381 € / m2 |
| Dostupné od | 1. 5. 2026 |
|---|---|
| Dispozícia | 4+1 |
| Číslo inzerátu | 987543 |
| Úžitková plocha | 105 m² |
Čo táto nehnuteľnosť ponúka?
| Balkón | |
| Výťah |
| Pivnica | |
| MHD 1 minúta pešo |
V okolí nehnuteľnosti nájdete
Stále hľadáte to pravé?
Nastavte si strážneho psa. Ponuky vybrané na mieru dostanete súhrnne 1× denne e-mailom. S Premium profilom máte po ruke rovno 5 strážcov a keď sa niečo objaví, informujú vás obratom.











