
Predaj bytu 5+1 • 143 m² bez realitkyRelingstr. 20 Berlin Grünau Berlin 12527
Slnečný a pokojný 5-izbový maisonette byt sa nachádza v udržateľne postavenej obytnom štvrti 52° Grad Nord. Ako koncept domu-v-dom ponúka vlastný, samostatný vchod s vlastným číslom, veľkú slnečnú terasu aj dve pekné záhradné plochy, ktoré lákajú na opaľovanie, oddych a dokonca aj na ľahšie záhradné práce. Z terasy si vychutnáte nádherný výhľad na predľahajúcu vodnú plochu a susediacu pamiatku. Milovníci vody sa tu môžu priamo pred dverami vyblázniť s motorovým člnom, na paddleboarde, v kajaku, plávaním a pod.
Vyzdvihnutím bytu je poloha na konci riadku, to znamená, že iba na jednej strane je susedný byt. Druhá strana je oddelená záhradou, ktorá patrí bytu, a pokojným priechodom k vodnej ploche (vstup nie je verejne prístupný!) od susedných domov. Napriek susedstvu si preto môžete vychutnať maximálnu mieru súkromia.
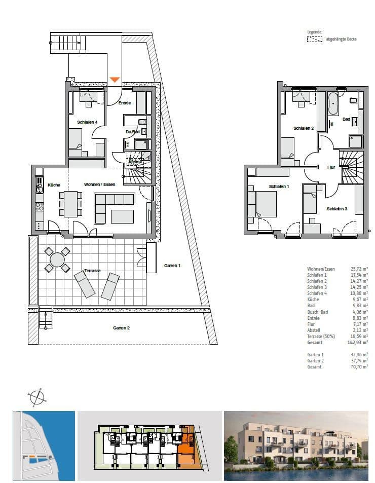
V mimoriadne priestranných obytných priestoroch sa tešíte z pozoruhodnej otvorenosti, ktorá vďaka premyslenému usporiadaniu dispozícií nadobúda jasnú štruktúru. V obývacej a jedálenskom priestore sa nachádza harmonicky a útulne navrhnutá vstavaná kuchyňa. Stredobodom bývania sú priestranné izby a kvalitne vybavené kúpeľne. Výšky miestností až 2,75 m a veľké okná nechávajú všetky miestnosti zaplaviť slnečným svetlom. Podlahové kúrenie so samostatným ovládaním v jednotlivých miestnostiach, obklady a parkety, kúpeľňa denného svetla, rolety alebo žalúzie, uzamykateľné kľučky okien a dverí v prízemí s pilulkovým zámkom, praktické úložné alebo domáce priestory so zapojením práčky – to všetko kompletizuje vysoký štandard bývania. Dokonca bolo myslené aj na praktické úložné miesto pre náradie do záhrady, čo robí pestovanie rastlín na terase skutočným pôžitkom.
K bytu patrí navyše dobre disponovaný pivnica v suteréne objektu a početné bicyklové stojany v spoločnom vlastníctve. Voliteľne je na predaj aj pekné parkovacie miesto v pridruženom podzemnom garáži.
Oblasť Berlína preplavená vodami a lesmi, berlínsky okrsek Treptow-Köpenick, takmer nedosiahne prirodzenosť a relaxačnú atmosféru, akú ponúka toto miesto v hlavnom meste. Štvrtť Grünau očaruje množstvom pláží, rozmanitými turistickými a cyklistickými trasami, rozsiahlymi lesmi a jazerami, pričom útulne prevádzkované kaviarne a reštaurácie vytvárajú intímnu a absolútne relaxačnú atmosféru.
Len pár metrov od prahu vášho domu začína Grünauer Forst. Odtiaľ sa môžete prechádzať alebo behať napríklad pozdĺž Krummen Lake až do Schmöckwitz – takmer neustále cez les.
Celý okrsek je tiež nádherne preskúmateľný na člne. Ak máte radi šport, požičajte si kanoe alebo paddleboard a objavte krajinu jazier okolo obytného štvrte!
Všetky vybavenosti, o ktoré si v každodennom živote len môžete priať, nájdete v Grünau priamo pred vašimi dverami. Rôzne obchody, školy, materské školy a lekári sú ľahko dostupní pešo, na bicykli alebo električkou č. 68.
• Materská škola priamo v obytnom štvrte
• 5 minút pešo k Grünauer Gesamtschule
• Zastávka električky priamo pred dverami
• 13 minút pešo k S-Bahn stanici Grünau
• 15 minút autom k BER
• 15 minút autom k Forum Köpenick
• Niekoľko minút pešo k supermarketom a reštauráciám
Vybavenie a charakteristiky tohto bytu:
• Priestranný obytný/jedálenský/kuchynský priestor
• Útulná vstavaná kuchyňa
• Spálňa o veľkosti približne 18 m²
• Dve ďalšie izby (každá približne 15 m²), ako aj hosťovská izba alebo domáca kancelária v prízemí (približne 11 m²)
• Kúpeľňa s denným svetlom, vaňou a sprchou
• Ďalšia sprchovacia kúpeľňa v prízemí
• Domáce priestory s prívodom vody pre vašu práčku a s priestorom pre sušičku alebo všetko, čo je potrebné uskladniť
• Veľká slnečná terasa (približne 38 m²)
• Záhradný box
Ďalšie vybavenie:
• Okna od podlahy po strop pre svetlé izby
• Kvalitné podlahové dlaždice na celom prízemí
• Parket z masívneho dreva v nadzemnom podlaží
• Samostatne ovládané podlahové kúrenie vo všetkých izbách
Parametre nehnuteľnosti
| Vek | Nad 50 rokov |
|---|---|
| Dispozícia | 5+1 |
| PENB | B - Veľmi úsporné |
| Cena za jednotku | 5 797 € / m2 |
| Stav | Veľmi dobrý |
|---|---|
| Číslo inzerátu | 985544 |
| Úžitková plocha | 143 m² |
Čo táto nehnuteľnosť ponúka?
| Pivnica | |
| Terasa |
| Výťah |
V okolí nehnuteľnosti nájdete
Stále hľadáte to pravé?
Nastavte si strážneho psa. Ponuky vybrané na mieru dostanete súhrnne 1× denne e-mailom. S Premium profilom máte po ruke rovno 5 strážcov a keď sa niečo objaví, informujú vás obratom.



























