
Predaj domu 5+1 • 147 m² bez realitkyNothauser Feld 1a, , Severné Porýnie - Westfálsko
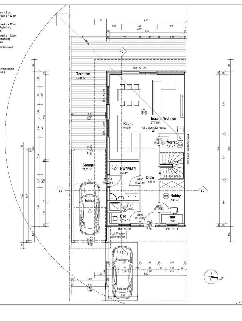
Táto exkluzívna dvojdomovka bola postavená v roku 2023 na pozemku s rozlohou 504 m², ktorý je rovinný. V prízemí vstúpite do domu prostredníctvom priestrannej, svetlej predsiene. Odtiaľ sa dostanete do otvorenej obývacej/jedálenskej miestnosti aj do nádhernej vidinnej kuchyne z masívneho dreva. Veľké posuvné dvere vás zavedú do rovinnej záhrady s neprekrývaným výhľadom na lúky, les a polia – ideálne miesto na letné admirovanie západu slnka!
Rovnako v suteréne sa nachádza úložná miestnosť, kancelária, plnohodnotná sprchovacia kúpeľňa a technická miestnosť (HWR) s priamym vstupom do garáže.
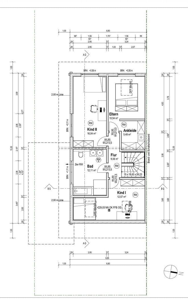
Cez dubové schody sa dostanete do poschodia, kde nájdete dve veľké detské izby, spálňu so šatníkom a priestrannú kúpeľňu s veľkou vaňou, prístupnou sprchou, toaletou a dvoma umývadlami. Nad kúpeľňou a detskými izbami sa nachádza podkrovie, ktoré vám ponúka ďalší úložný priestor.
V celom dome bol použitý kvalitný dubový parket a v kúpeľniach sú položené dlaždice. Všetky okná v dome sú trojsklené a vybavené elektrickými rolety. Riadenie roliet aj vonkajšieho osvetlenia je zabezpečené systémom Homematic.
Predlžovaná garáž s rozlohou 22 m² a elektrickými posuvnými bránami ponúka dostatok miesta pre jedno auto a malú dielňu. Pred domom sa nachádzajú ďalšie tri parkovacie miesta.
Celý dom je vykurovaný podlahovým kúrením, pričom teplo zabezpečuje tepelná čerpadlo. Fotovoltaická inštalácia dopĺňa energetický stav domu.
Dom sa nachádza v tichej slepej uličke pri chránenom krajinnom území. Základná škola, škôlka a denné opatrovateľky sú v bezprostrednej blízkosti. Všetky obchody s bežnými potrebami sú autom dosiahnuteľné do niekoľkých minút a k diaľniciam A1/A3/A4 sa dostanete približne za 15 minút.
Energetická trieda A (KFW 55)
Vyššia kvalita vybavenia
Parametre nehnuteľnosti
| Vek | Nad 50 rokov |
|---|---|
| Dispozícia | 5+1 |
| PENB | A - Mimoriadne úsporné |
| Plocha pozemku | 504 m² |
| Cena za jednotku | 4 422 € / m2 |
| Stav | Veľmi dobrý |
|---|---|
| Číslo inzerátu | 987309 |
| Úžitková plocha | 147 m² |
| Celkové poschodia | 2 |
Čo táto nehnuteľnosť ponúka?
| Garáž | |
| MHD 3 minúty pešo |
| Parkovanie |
V okolí nehnuteľnosti nájdete
Stále hľadáte to pravé?
Nastavte si strážneho psa. Ponuky vybrané na mieru dostanete súhrnne 1× denne e-mailom. S Premium profilom máte po ruke rovno 5 strážcov a keď sa niečo objaví, informujú vás obratom.
























