
Prenájom domu 5+kk • 189 m² bez realitkyIm Brünnel 26A, , Bádensko-Wurttembersko
Im Brünnel 26A, , Bádensko-WurttemberskoMHD 4 minúty pešo • Parkovanie • GarážDvojdomová polovica domu na troch poschodiach v nadštandardnom vybavení (kvalitná parketová podlaha, podlahové kúrenie, elektrické rolety, integrovaný ventilačný systém, zariadenie na zmäkčovanie vody, elektrická markíza) v najlepšej obytné lokalite (na svahu) s výhľadom do diaľky na riečnu rovinu s otvorenou kuchyňou, jedálňou a obývacou izbou, tromi spálňami, jednou izbou pre hostí, veľkou kúpeľňou s dvoma umývadlami, WC, sprchou a vaňou, sprchovacou kúpeľňou s WC a samostatným hosťovským WC.
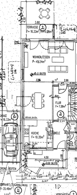
V prízemí a nadzemí sú podlahové okná. Všade okrem vstupnej haly, kúpeľní a kuchyne je parketová podlaha.
Otváracia schodisko, úložná miestnosť, pivnica, práčovňa a kotolňa.
Priestranný západný balkón, terasa orientovaná na juhovýchod, udržiavaná záhrada a upravená predzáhrada. Box na bicykle, skrinka na záhradné náradie, garáž a pred ňou parkovacie miesto.
KfW-efektívny dom 70 (kompletná tepelná ochrana, trojsklenené bezpečnostné okná, solárne získavanie tepla, kontrolovaná ventilácia obytných priestorov s rekuperáciou tepla).
Kľudná svahová poloha nad Bergstraße, v blízkosti viníc a lesa. Najlepšia obytná lokalita.
Stab-parket z prírodného dubu 90/9, veľké podlahové okná,
podlahové kúrenie, elektrické rolety, elektrická markíza, integrovaný ventilačný systém, zariadenie na zmäkčovanie vody, dymové hlásiče, na všetkých poschodiach dverové interkomy. Rôzne nerezové zábradlia (vnútorné aj vonkajšie). Bez vstavanéj kuchyne.
Vhodné pre páry a rodiny. Prenájom iba pre nekuřákov.
Rozdelenie prevádzkových nákladov: Nájomca si sám vyúčtuje energie, poplatky za služby a poplatky za odpad. V paušálnom poplatku vo výške 150 eur sú zahrnuté: voda/kanalizácia, nehnuteľnostná daň, poistenie budovy a údržba kúrenia a ventilácie, ako aj kontrola komína.
Parametre nehnuteľnosti
| Vek | Nad 50 rokov |
|---|---|
| Stav | Dobrý |
| Číslo inzerátu | 986567 |
| Plocha pozemku | 343 m² |
| Cena za jednotku | 15 € / m2 |
| Dostupné od | 1. 3. 2026 |
|---|---|
| Dispozícia | 5+kk |
| Úžitková plocha | 189 m² |
| Celkové poschodia | 3 |
Čo táto nehnuteľnosť ponúka?
| Balkón | |
| Garáž | |
| MHD 4 minúty pešo |
| Pivnica | |
| Parkovanie | |
| Terasa |
V okolí nehnuteľnosti nájdete
Stále hľadáte to pravé?
Nastavte si strážneho psa. Ponuky vybrané na mieru dostanete súhrnne 1× denne e-mailom. S Premium profilom máte po ruke rovno 5 strážcov a keď sa niečo objaví, informujú vás obratom.



























