
Predaj domu 4+1 • 120 m² bez realitkyHintergasse 21, , Hesensko
Hintergasse 21, , HesenskoMHD 3 minúty pešo • ParkovanieTento pôvabný rodinný dom sa nachádza v pokojnej a centrálnej lokalite Riedstadt-Goddelau. Pôvodne postavený v roku 1922, dom spája historický charakter s moderným obytným štandardom, keďže bol v roku 2018 komplexne zrenovovaný a zateplený. Dôležité sanácie momentálne nevyžadujú žiadne zásahy – stačí nastúpiť a cítiť sa ako doma.
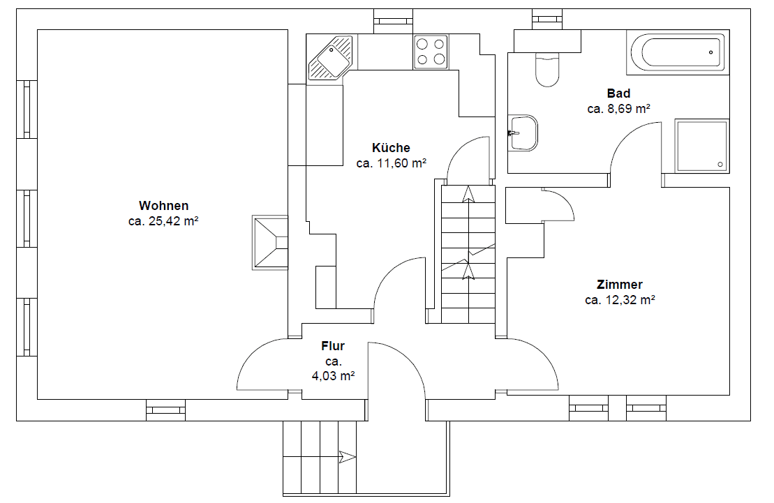
Nehnuteľnosť má obytnú plochu približne 120 m², ktorá je rozdelená do 4 dobre navrhnutých izieb. Premyslené usporiadanie priestoru ponúka moderné a svetlé bývanie ako pre páry, tak pre rodiny.
Osobitným lákadlom je útulná obývacia izba s krbom, ktorý nielenže vytvára príjemnú atmosféru počas chladnejších dní, ale dodáva domu aj zvláštny pocit pohody. Túto ponuku dopĺňa veľký pivnica s množstvom úložného priestoru a zároveň zariadený šikmý podkrovný priestor, kde sa nachádzajú ďalšie dve miestnosti, ktoré je možné flexibilne využívať.
Tento dom spája pôvab staršieho staviteľstva, moderný komfort bývania a rodinno-priateľské riešenia v obľúbenej lokalite – domov, kde sa môžete usadiť a cítiť sa dobre.
Nehnuteľnosť sa nachádza v pokojnej obytné oblasti Riedstadt-Goddelau. Obchody s každodenným tovarom, školy, materské školy aj lekári sú dostupní v priebehu niekoľkých minút. Dobrá dostupnosť MHD, blízkosť k železničnej stanici (cca 10 minút pešo) a diaľnici zaručujú rýchly prístup k okolitým mestám, ako sú Darmstadt, Mainz a Frankfurt. Okolitá príroda navyše láka na prechádzky a rekreačné aktivity.
Rodinný dom zaujme premysleným vybavením a priestrannými užitnými priestormi. Mimoriadne vyniká veľká pivnica, ktorá ponúka veľa úložného priestoru pre domáce potreby, zásoby alebo hobby potreby. Okrem toho dom disponuje zariadeným šikmým podkrovím, kde sa nachádzajú ďalšie dve izby, ktoré je možné flexibilne využívať ako spálňu, pracovňu alebo hobby miestnosť. Moderný celkový stav a krb v obývacej izbe dopĺňajú atraktívny koncept vybavenia.
Presvedčte sa sami pri osobnej prehliadke – tešíme sa na vašu správu!
Parametre nehnuteľnosti
| Vek | Nad 50 rokov |
|---|---|
| Dispozícia | 4+1 |
| PENB | G - Mimoriadne nehospodárne |
| Plocha pozemku | 161 m² |
| Cena za jednotku | 2 908 € / m2 |
| Stav | Po rekonštrukcii |
|---|---|
| Číslo inzerátu | 986035 |
| Úžitková plocha | 120 m² |
| Celkové poschodia | 2 |
Čo táto nehnuteľnosť ponúka?
| Pivnica | |
| MHD 3 minúty pešo |
| Parkovanie |
V okolí nehnuteľnosti nájdete
Stále hľadáte to pravé?
Nastavte si strážneho psa. Ponuky vybrané na mieru dostanete súhrnne 1× denne e-mailom. S Premium profilom máte po ruke rovno 5 strážcov a keď sa niečo objaví, informujú vás obratom.











