
Predaj bytu 4+kk • 118 m² bez realitky, Bádensko-Wurttembersko
Viacrodinný dom bol postavený v technike dreveno-hybridnej výstavby. Obzvlášť je potrebné vyzdvihnúť vysoký energetický štandard budovy (EH40), spojený s výberom ekologických stavebných materiálov – to nielen zabezpečuje výrazne nižšie náklady na energie a zdravé, teplé bývanie, ale zároveň šetrí aj naše životné prostredie. Pri kúpe tohto klimaticky priateľského bytu máte možnosť využiť štátnu podporu KfW banky – podpora sa poskytuje vo forme atraktívneho, úveru so zvýhodnenou úrokovou sadzbou vo výške 100 000 €.
Na úpätí Lembergu sa nachádza idylická obec Affalterbach s približne 4 500 obyvateľmi. Je súčasťou okresu Ludwigsburg v Bádensku-Württembersku a napriek svojej polohe uprostred malebnej prírody je mimoriadne dopravne výhodne situovaná. Okolitá mestá, ako napríklad Winnenden, Ludwigsburg a Marbach am Neckar, sú dostupné ako verejnou dopravou, tak aj autom. Blízkosť diaľnice A81 a cesty B14 navyše umožňuje rýchly prístup do väčších miest, ako je Heilbronn alebo hlavné mesto Bádenska-Württemberska, Stuttgart.
Affalterbach spája výhody vidieckeho prostredia s benefitmi mesta: nakupovacie možnosti, vrátane regionálnych bioobchodov, bánk, pošty, lekárskych ambulancií, ako aj základnej školy a materských škôl, sa nachádzajú priamo v obci. Priemyselná zóna s čiastočne medzinárodne pôsobiacimi firmami ponúka atraktívne pracovné miesta. Obec zabezpečuje pestrý voľnočasový program prostredníctvom rôznych spolkov. Pre športové aktivity sú k dispozícii ihriská pre loptové športy, atletické zariadenia a detské ihriská. Ale aj príroda okolo Affalterbachu je ideálna na krátku rekreáciu: Lemberg láka na prechádzky a cyklistiku lesmi a vinicami, a o pár minút sa dostanete do idylického údolia Buchenbachtal. Pre príjemné zakončenie dňa sa odporúča návšteva niektorej z rôznych reštaurácií.
Tento klimaticky priateľský viacrodinný dom sa nachádza v veľmi centrálnej, ustálenej a dopravne upokojenej lokalite. Obchody na každodenné potreby, autobusové zastávky, materské školy, základná škola a rekreačná zóna sú dostupné pešo.
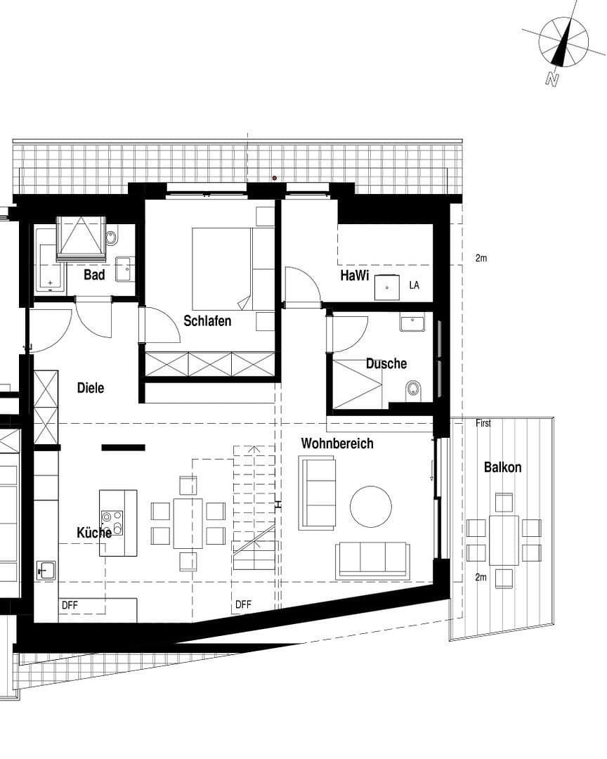
Tento moderný viacrodinný dom zaujme svojou architektúrou, kvalitným vybavením a funkčnosťou. Výtah Vás zavedie z podzemnej garáže priamo do Vášho bytu. Pre dostatok úložného priestoru je k dispozícii priestranná súkromná komora v suteréne. Prípojky na práčky a sušičky nájdete priamo v úložnom priestore, ale aj vo Vášom byte.
Medzi vybavenie patria kvalitné drevené parketové podlahy v obytných priestoroch a dizajnové obklady na kúpeľniach. Vysoké, viditeľné stropy zo masívneho dreva a biele vnútorné dvere tvoria základ pre Váš osobný priestor pohody. Rozsiahle oknové prvky v dreveno-hliníkovom prevedení s trojsklom a elektrickými rolovacími žaluziami napĺňajú miestnosti veľkým množstvom svetla a zabezpečujú príjemný a teplý pocit z bývania.
Moderné sanitárne zariadenia s uterákovými ohrievačmi a bezprahovými sprchami dopĺňajú kúpeľne s denným svetlom vo všetkých bytoch. Vďaka podlahovému kúreniu sú studené nohy minulosťou. Slnko si môžete vychutnať na Vašom súkromnom balkóne, ktorý je obklopený atraktívne upravenými vonkajšími priestormi.
Prehliadky sú možné kedykoľvek!
Parametre nehnuteľnosti
| Vek | Nad 50 rokov |
|---|---|
| Stav | Novostavba |
| Poschodie | 2. poschodie z 3 |
| PENB | A - Mimoriadne úsporné |
| Cena za jednotku | 5 917 € / m2 |
| Dostupné od | 30. 1. 2026 |
|---|---|
| Dispozícia | 4+kk |
| Číslo inzerátu | 985965 |
| Úžitková plocha | 118 m² |
Čo táto nehnuteľnosť ponúka?
| Balkón | |
| Pivnica | |
| Výťah |
| Bezbariérový prístup | |
| Garáž | |
| MHD 1 minúta pešo |
V okolí nehnuteľnosti nájdete
Stále hľadáte to pravé?
Nastavte si strážneho psa. Ponuky vybrané na mieru dostanete súhrnne 1× denne e-mailom. S Premium profilom máte po ruke rovno 5 strážcov a keď sa niečo objaví, informujú vás obratom.













