
Predaj domu • 481 m² bez realitkyHamburg Bergedorf Hamburg 21029
Objektbeschreibung
Na predaj je balík šiestich prenajatých vlastníckych bytu v viacfamilijnom dome.
Dobre udržiavaný dom bol pripravený na nasťahovanie v roku 1994, centrálny plynový kúrenie bolo vymenené v roku 2016. Teplá voda je zabezpečená cez prietokový ohrievač (zapracované do energetického preukazu).
Všetky byty sú prenajaté, ročný čistý nájomný príjem je momentálne 52.832 €. Nájmy môžu byť od decembra 2026 zvýšené na 60.757 €.
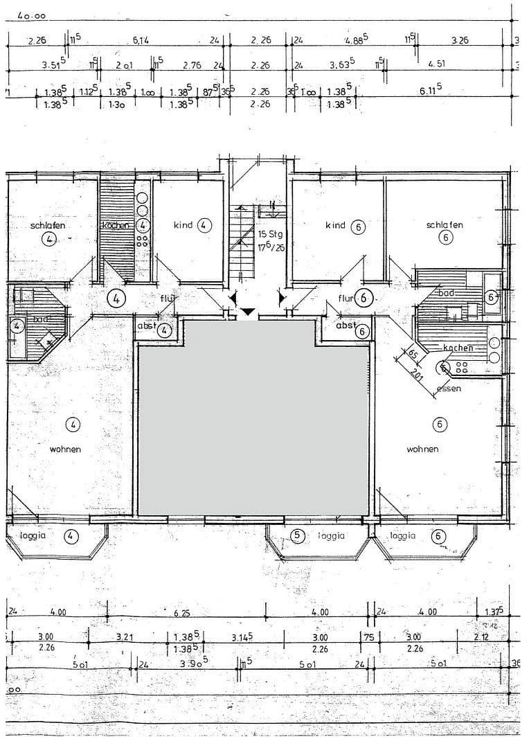
Dispozícia
Byty majú obytné plochy okolo 82 m2 (4x) a okolo 76 m2 (2x). Všetky ide o trojizbové byty s kuchyňou, kúpeľňou, šatníkom, chodbou a pivnicovým priestorom. (Po dvoch bytoch pre každý z ukázaných pôdôčnych plánov, čiastočne zrkadne.)
Aby sa chránilo súkromie nájomcov, fotografie zobrazujú nedávno pred poslednou výmenou vybavené podobné byty v rovnakom dome.
Kúpeľne a kuchyne sú obklady, ostatné miestnosti sú v závislosti od bytu pokryté laminátom alebo kobercovou podlahou. Byty sú orientované sever-juh, pričom byty so šikmou stenou navyše smerujú na západ alebo východ. Všetky okrem dvoch menších bytov, ktoré sa nachádzajú na podkroví, majú balkón na južnej strane.
Ďalšie byty v tej istej vlastníckej spoločenstve je možné zakúpiť dodatočne.
Bez provízie od súkromia.
Pokojná lokalita na cyklistickej ceste v Bergedorfe.
Parametre nehnuteľnosti
| Vek | Nad 50 rokov |
|---|---|
| Číslo inzerátu | 985791 |
| Úžitková plocha | 481 m² |
| Stav | Dobrý |
|---|---|
| PENB | C - Hospodárne |
| Cena za jednotku | 3 087 € / m2 |
Čo táto nehnuteľnosť ponúka?
| MHD 1 minúta pešo |
V okolí nehnuteľnosti nájdete
Stále hľadáte to pravé?
Nastavte si strážneho psa. Ponuky vybrané na mieru dostanete súhrnne 1× denne e-mailom. S Premium profilom máte po ruke rovno 5 strážcov a keď sa niečo objaví, informujú vás obratom.













