
Prenájom bytu 3+1 • 81 m² bez realitkyLevského, Praha - Modřany
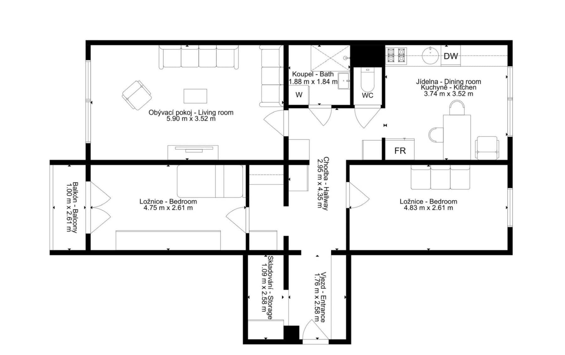
Levského, Praha - ModřanyČiastočne vybavené • Výťah • Balkón 3 m² • Pivnica 2 m²Vyžaduje sa overenie bezdlžnostiNabízíme k pronájmu prostorný byt o dispozici 3+1 a celkové výměře 81 m² (sklep a balkon), situovaný v ulici Levského.
Byt se nachází v předposledním patře udržovaného panelového domu se dvěma výtahy. Součástí bytu je balkon a sklepní kóje, které zvyšují komfort bydlení i úložné možnosti (těch je díky řešení bytu i uvnitř dostatek). Byt je částečně vybaven (gauč, skříně, stoly), ale lze po dohodě změnit.
Koupelna a obývací pokoj prošly rekonstrukcí, ostatní místnosti jsou v udržovaném, dobrém stavu. Dispozice bytu nabízí dostatek prostoru pro rodinu i spolubydlení.
Lokalita poskytuje kompletní občanskou vybavenost – v docházkové vzdálenosti se nachází obchody, školy (přímo před domem), školky, zdravotnická zařízení i zastávky MHD s rychlou dostupností do centra města. Velkou výhodou je také blízkost zeleně a volnočasových aktivit.
Měsíční náklady na bydlení (při 2-3 osobách):
nájemné: 26 000 Kč
zúčtovatelné služby 5000 Kč
Zálohy na elektřinu 1000 Kč
Kauce: 35 - 40 000 Kč (dle počtu osob)
Byt je k dispozici od března či dle dohody.¨
V případě zájmu o prohlídku (https://calendar.app.google/dyjMPJs3A461KjW19) nebo doplňující informace mě neváhejte kontaktovat.
Parametre nehnuteľnosti
| Dostupné od | 28. 2. 2026 |
|---|---|
| Konštrukcia budovy | Panel |
| Vybavené | Čiastočne |
| Číslo inzerátu | 985577 |
| Úžitková plocha | 81 m² |
| Stav | Veľmi dobrý |
|---|---|
| Dispozícia | 3+1 |
| Poschodie | 10. poschodie z 11 |
| Umiestnenie | Sídlisko |
| Cena za jednotku | 321 CZK / m2 |
Čo táto nehnuteľnosť ponúka?
| Balkón 3 m² | |
| Pivnica 2 m² |
| Bezbariérový prístup | |
| Výťah |
V okolí nehnuteľnosti nájdete
Stále hľadáte to pravé?
Nastavte si strážneho psa. Ponuky vybrané na mieru dostanete súhrnne 1× denne e-mailom. S Premium profilom máte po ruke rovno 5 strážcov a keď sa niečo objaví, informujú vás obratom.











