
Prenájom domu 5+1 • 173 m² bez realitkyWaldstr. 10 Oberpframmern Tal Bayern 86557
Waldstr. 10 Oberpframmern Tal Bayern 86557MHD 4 minúty pešo • Parkovanie • GarážVitajte na prehliadke vášho nového domova v Oberpframmern: Tento moderný dom pôsobí premyslene rozdeleným priestorom, dostatkom svetla a jedinečnou polohou na svahu – s krásnym výhľadom do zelene a veľkorysou terasou, ktorá je skutočným lákadlom pre každodenný život.
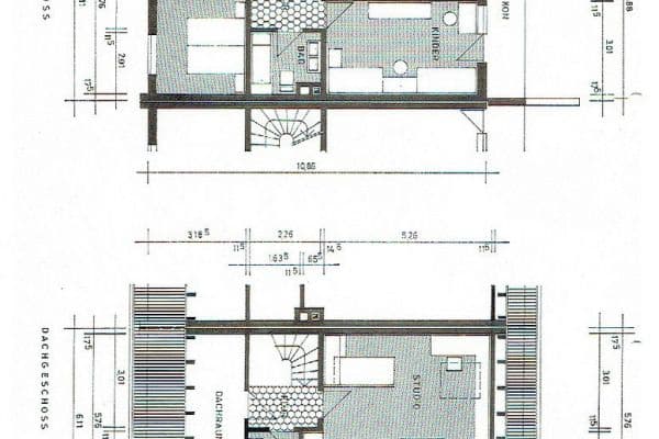
Pri vstupe vás privíta príjemná predsieň s priestorom pre šatník a úložný priestor. Zvlášť praktické: Už v prízemí sa nachádza plne vybavená kúpeľňa s bezbrodnou sprchou – ideálna pre hostí, rodinný život a ponúka najvyšší komfort.
Centrom domu je veľká obývacia a jedálenská miestnosť s polootvorenou kuchyňou. Veľké okná zabezpečujú svetlú a príjemnú atmosféru a vytvárajú spojenie s vonkajším prostredím: Odtiaľ môžete priamo vyjsť na veľkú terasu, ktorá vďaka polohe na svahu ponúka nielen slnko, ale aj mimoriadne príjemný pocit bývania s „ďalekohľadom“ – ideálne pre pokojné večery, rodinný čas alebo príjemné chvíle vonku.
V hornom podlaží sa nachádzajú dve dobre rozmiestnené spálne a ďalšia kúpeľňa s bezbrodnou sprchou a doplňkovou vaňou. Rozmery izieb sú veľkorysé a flexibilne využiteľné – či už ako detská izba, rodičovská spálňa, kancelária alebo izba pre hostí.
Na podkroví sa nachádzajú ďalšie 2 vysoké a svetlé priestory s otvoreným pocitom bývania. Ideálne ako ďalšie spálne, domáca kancelária, ateliér, hobby alebo mládežnícky priestor – tu je naozaj veľa miesta pre individuálne životné štýly.
Aj suterén ponúka viac než klasické príslušné priestory: Okrem technickej miestnosti domu sú k dispozícii dva vysoko kvalitné hobby priestory, ktoré sa dajú rôzne využiť (napríklad herňa, fitko, priestor pre hostí, práca). Ďalší úložný priestor – medzi iným v suteréne – dopĺňa celkovú ponuku.
Váš nový domov sa nachádza v atraktívnej, prírode blízkej periferii Oberpframmern, obklopený rozľahlými poliami, lesmi a otvorenou, vidieckou krajinou – tu zažijete veľa pokoja, čerstvého vzduchu a neprekážaný výhľad na zeleň.
Oberpframmern samotný je obľúbená obec vo východnom okolí Mníchova, ktorá ponúka harmonické bývanie medzi vidieckou kvalitou života a mestskou dostupnosťou. Zabehnutá štruktúra s menšími obytnými zónami, upravenými záhradami a dedinskou atmosférou robí lokalitu obzvlášť atraktívnou pre rodiny a pre tých, ktorí hľadajú kombináciu každodenného života a oddychu.
Rozmanité nákupné možnosti sú v obci dostupné: Vedľa Edeka trhu a ďalších obchodov s bežnými potrebami nájdete aj miestne prevádzky ako pekárne, reštaurácie a kaviarne – všetko je pohodlne dostupné.
Pre rodiny je dôležité: Na mieste existujú zariadenia starostlivosti o deti a vzdelávacie inštitúcie, ktoré uľahčujú každodenný život a zabezpečujú krátke dochádzacie vzdialenosti. Navyše športové a rekreačné ponuky, prechádzkové a cyklistické trasy cez okolité polia a lesy poskytujú dosť možností na oddych a aktívne trávenie voľného času.
Dopravné spojenie je pre vidiecku lokalitu veľmi dobré: Viaceré autobusové linky spájajú Oberpframmern s okolnými obcami a uzlami regionálnej MHD. Odtiaľ pokračujú ďalšie spojenia do Mníchova alebo do regionálnej železničnej siete – čo umožňuje pohodlnú dostupnosť verejnou dopravou.
Automobilom sú dôležité ciele rýchlo dosiahnuteľné: Či už ide o nákupy, voľnočasové aktivity alebo dojíždzkové trasy do centra Mníchova a jeho okolia – dopravná infraštruktúra umožňuje priame a flexibilné cesty (napríklad cez blízke pripojenia na diaľnice). Zároveň tu môžete vychutnať pokojné prostredie, ktoré vám najmä vo voľnom čase poskytne príjemnú kvalitu bývania.
Stručne povedané: Ideálna kombinácia prírodného pokoja, dobrej infraštruktúry pre každodenný život a praktickej dostupnosti pracovných a voľnočasových aktivít – pre moderný pocit bývania v okolí Mníchova.
Údaje o vybavení
• Masívna, remeselná tehličková stavba: Zdravá a prirodzene trvácna konštrukcia s veľmi dobrými stavebno-fyzikálnymi vlastnosťami
• Minerálne vnútorné a vonkajšie omietky: Difúzne otvorené, prispievajú k zdraviu bývania a príjemnému vnútornému prostrediu
• Strešná konštrukcia zo dreva v tradičnej stolárskej kvalite: Vysokokvalitná izolácia na podkroví, efektívna letná tepelná ochrana a veľmi dobrá energetická účinnosť v zime
• Masívny suterén z nepropustného betónu (WU-betón): Trvalo suchý a robustný
• Vonkajšie úpravy navrhnuté záhradníkom: Atraktívne a harmonické usporiadanie záhradných a vonkajších plôch pre súladný celkový dojem
• Vysoko kvalitné vzduch-voda tepelné čerpadlo od Horval
• Podlahové kúrenie v celom dome (vrátane suterénu)
• Pohodlné ovládanie, mimo iného prostredníctvom aplikácie
• Ventilačný systém s rekuperáciou tepla, individuálne nastaviteľný podľa osobných potrieb
Výsledkom je trvalo príjemné vnútorné prostredie pri nízkych energetických nárokoch.
• Trojitý zasklené okná nemeckej výroby s vynikajúcimi izolačnými vlastnosťami a vysokou ochranou proti vniknutiu
• Elektrické rolety
• Vysokokvalitné podlahové obklady v svetlom dizajne dubového dreva
• Reprezentatívne vstupné dvere s viacerým zamykacím mechanizmom
• Vnútorné dvere s jadrom z lisovanej drevotriesky v bielej farbe, klikové sady z nehrdzavejúcej ocele
• Všetky kúpeľne s moderným sanitárnym vybavením
• Moderný, nadčasový interiérový dizajn
• LAN káblovanie v celom dome
• Príprava na dodatočné SAT káblovanie
• Dve všestranne využiteľné hobby miestnosti
• Samostatná technická/domácnostná zóna
Jednotlivá garáž a 2 parkovacie miesta sa účtujú mesačne vo výške 100 €.
Telefonicky ma môžete kontaktovať na Tel. 0173/3933556.
Parametre nehnuteľnosti
| Vek | Nad 50 rokov |
|---|---|
| Dispozícia | 5+1 |
| PENB | A - Mimoriadne úsporné |
| Plocha pozemku | 250 m² |
| Cena za jednotku | 14 € / m2 |
| Stav | Novostavba |
|---|---|
| Číslo inzerátu | 985095 |
| Úžitková plocha | 173 m² |
| Celkové poschodia | 3 |
Čo táto nehnuteľnosť ponúka?
| Pivnica | |
| Parkovanie | |
| Terasa |
| Garáž | |
| MHD 4 minúty pešo |
V okolí nehnuteľnosti nájdete
Stále hľadáte to pravé?
Nastavte si strážneho psa. Ponuky vybrané na mieru dostanete súhrnne 1× denne e-mailom. S Premium profilom máte po ruke rovno 5 strážcov a keď sa niečo objaví, informujú vás obratom.











