
Prenájom bytu 2+1 • 78 m² bez realitkyLinzgaustr. 8, , Bádensko-Wurttembersko
Linzgaustr. 8, , Bádensko-WurttemberskoMHD 6minút pešo • Výťah • ParkovanieSvetlý 2-izbový byt so 2 balkónmi, bazénom a saunou v dome:
Hlavné výhody na prvý pohľad
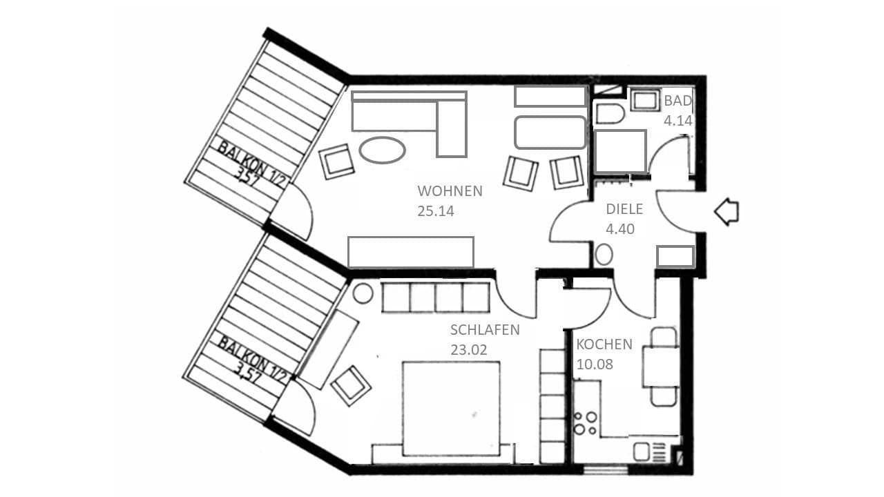
• veľmi dobre navrhnutý pôdorys s praktickými možnosťami pre umiestnenie skriniek
• 2 izby, každá s balkónom a oknami od podlahy k stropu
• 2 zakryté balkóny s bočným výhľadom na Bodamské jazero
• Svetlý obývací a jedálenský priestor
• Samostatná, dobre vybavená kuchyňa (umývačka riadu, chladnička, mraznička, varná doska, odsávač, mikrovlnná rúra)
• Praktická kúpeľňa so sprchou a priestorom pre práčku
• 3. poschodie s výťahom
• Vlastné zastrešené parkovacie miesto pre auto
• Súkromná uzamykateľná pivnica
Wellness a spoločné priestory
• Krytý bazén
• Sauna
• Stolný tenis vo wellness zóne
• Vonkajšia časť wellnessu je spoločne využiteľná
• Priamy prístup výťahom alebo schodiskom
• Spoločné práčky s miestnosťou na sušenie
• Pivnica pre bicykle
• Vrátane profesionálnej služby domového správcu/upratovacej služby
Pokojná a slnečná južná poloha v Uhldingen-Mühlhofen.
Bodamské jazero s jachtovým prístavom, brehovou promenádou, domami na stĺpoch, prírodnými rezerváciami, ako aj s reštauráciami, obchodmi, lekármi, lekárňami a MHD je ľahko dostupné – pešo alebo na bicykli.
Okrem toho nájdete v Uhldingen-Mühlhofen aj živý spolkový život a lokalita ponúka bezplatný plážový bazén.
Kombinácia blízkosti jazera, infraštruktúry s Linzgau-Shuttle, lodnej dopravy, blízkosti golfového klubu a možnosti voľnočasového vyžitia robí túto lokalitu obzvlášť atraktívnou.
Byt je ideálny pre singlé, páry alebo pre 2 osoby:
Kladieme dôraz na príjemné a pokojné spolunažívanie v dome.
V prípade záujmu vás prosíme o krátke predstavenie:
• Veľkosť domácnosti
• Pracovná situácia
• Žiaduci začiatok nájmu
Prehliadky prebiehajú po predchádzajúcej dohode, predpokladane v sobotu.
Prosím, pošlite nám správu s emailovou adresou a telefónnym číslom.
Tešíme sa na váš záujem a vaše informácie.
Ďakujeme :)
Parametre nehnuteľnosti
| Vek | Nad 50 rokov |
|---|---|
| Poschodie | 3. poschodie |
| PENB | D - Menej hospodárne |
| Cena za jednotku | 12 € / m2 |
| Dispozícia | 2+1 |
|---|---|
| Číslo inzerátu | 984806 |
| Úžitková plocha | 78 m² |
Čo táto nehnuteľnosť ponúka?
| Balkón | |
| Pivnica | |
| Parkovanie |
| Bezbariérový prístup | |
| Výťah | |
| MHD 6 minút pešo |
V okolí nehnuteľnosti nájdete
Stále hľadáte to pravé?
Nastavte si strážneho psa. Ponuky vybrané na mieru dostanete súhrnne 1× denne e-mailom. S Premium profilom máte po ruke rovno 5 strážcov a keď sa niečo objaví, informujú vás obratom.











