
Prenájom bytu 2+1 • 45 m² bez realitkyHabsburger Straße 97 Freiburg Herdern Baden-Württemberg 79104
"HABSBURGER MITTE" – Výnimočný prenajímateľný byt v srdci Freiburgu!
Tieto byty v novostavbe Habsburger-Mitte možno považovať za niečo naozaj výnimočné.
Objekt sa rozprestiera na 6 poschodí; moderné obchodné priestory a kancelária sa nachádzajú v prízemí a na poschodiach 2 až 6 nájdete skvelé byty s vysoko kvalitným interiérovým vybavením – dokonalý priestor pre život so štýlom.
Výťah do všetkých poschodí, vrátane pivnice a podzemnej garáže, ako aj správa prostredníctvom profesionálnej služieb domovníka, sú v tomto objekte samozrejmosťou.
Nový projekt v žiadanom Freiburgu-Herdern, "HABSBURGER MITTE".
Skvelá poloha: Ulica Habsburger je ideálna adresa pre krátke vzdialenosti a vynikajúcu infraštruktúru. Iba 15 minút pešo od HABSBURGER MITTE vás oddelí Freiburský Münsterplatz.
Vážite si vysoko kvalitné vybavenie v modernom dome so zvláštnou architektúrou? Potom ste tu správne!
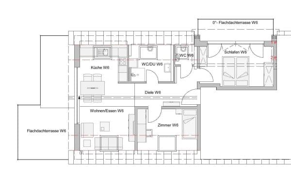
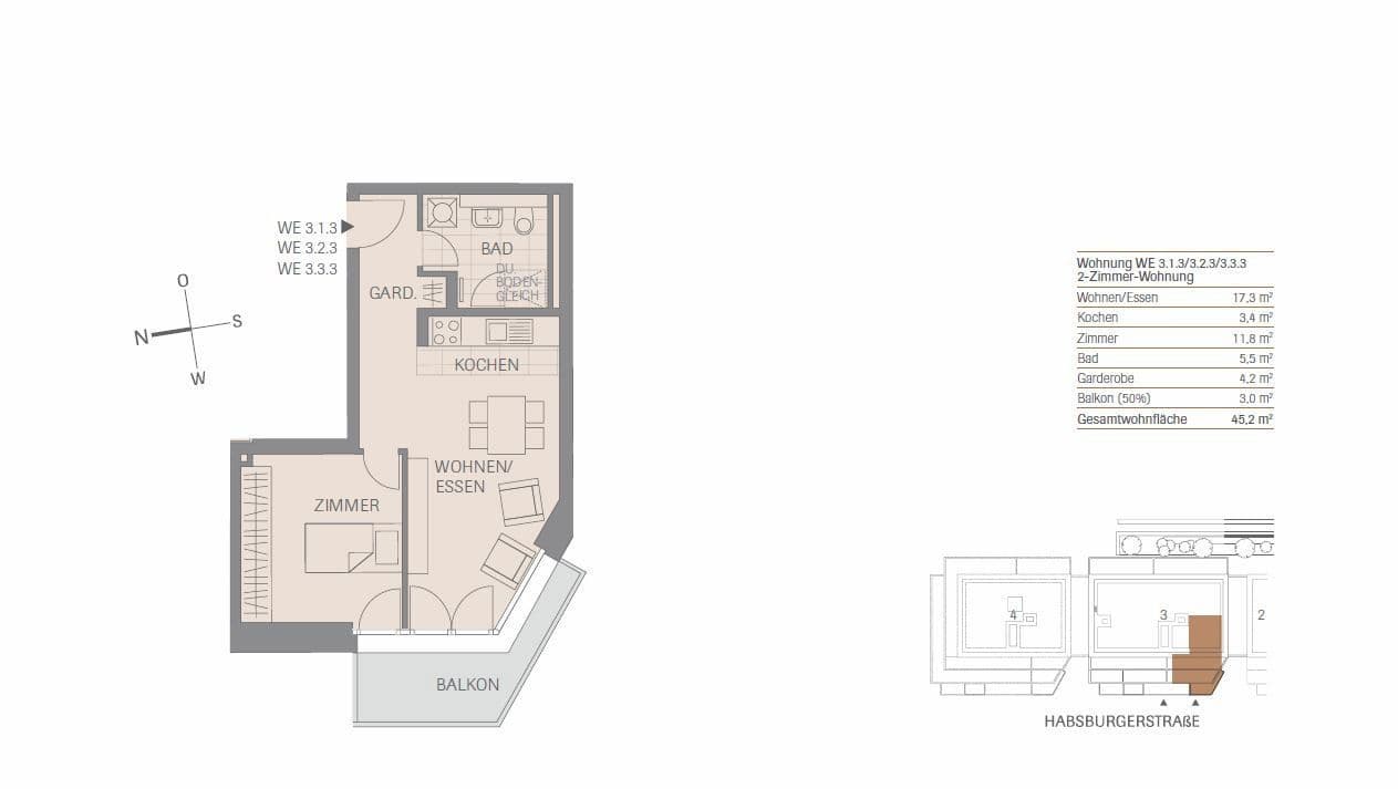
Na prenájom je od 01.03.2026 alebo neskôr tento špičkovo moderný dvojizbový byt s balkónom v 1. poschodí. Otvorenú obývaciu jedáleň s vybavenou kuchyňou (EBK) zariadite podľa vlastných predstáv.
Priestranná spálňa je svetlá a príjemná.
Skvelým detailom vybavenia je vysoko kvalitná parkietová podlaha. Podlahové kúrenie zabezpečuje komfort vo všetkých miestnostiach.
Moderná vnútorná kúpeľňa je svetlo obložená a vybavená sprchou (poznámka: bez vaňi).
Prakticky, práčka má vo svojej miestnosti svoje miesto.
Práčovňa, úložisko bicyklov a pivničné priestory sú pohodlne dostupné výťahom.
Kľúčové slová:
- Bytový komplex v blízkosti centra
- Bytový dom 3 na krásnej a novo upravenej Habsburgerstraße
- Energeticky efektívny dom 55
- Blokové kogeneračné zariadenie s výrobou elektriny
- Podlahové kúrenie
- Elektrické okenné rolety
- Kvalitný parkiet
- Videointerkom
- Spoločná podzemná garáž
- Pivničné priestory a úložisko bicyklov
- Nevhodné pre spolubývanie
- Žiadne domáce zvieratá
- Zabudovaná kuchyňa
- Prenájom od 01.03.2026 alebo neskôr
- Stupňovitá nájomná zmluva
Našou exkluzívnou úlohou je sprostredkovanie tohto objektu. Za správnosť a úplnosť údajov v našich ponukách nehnuteľností neprijímame žiadnu zodpovednosť. Všetky údaje boli zostavené s maximálnou starostlivosťou, podľa najlepších vedomostí a svedomia a vychádzajú z informácií vlastníka/pronajímateľa. Uvedené rozmery plôch sa môžu mierne líšiť.
Fotografie tu zobrazené boli vyhotovené v súlade s dohodou s príslušnými nájomcami/vlastníkmi a povolené s ich výslovným súhlasom na zverejnenie na internete za účelom prenájmu a/alebo predaja. Medzitým si vyhradzujeme právo na prenájom/predaj. Fotografie, dispozície a ďalšie dokumenty nesmú byť kopírované. Fotografovanie počas prehliadky je výslovne zakázané.
Prosím, uveďte vo vašom kontaktnom dopyte pravdivé údaje (meno/adresa) a kontaktné číslo pre spätné volanie. Prosíme o pochopenie, že e-mailové dopyty bez uvedenia potrebných informácií – vrátane tých, ktoré sa vzťahujú na vašu hľadanú nehnuteľnosť – zostanú neodoverené. Keďže trh s nehnuteľnosťami je veľmi dynamický, pochopiteľne vás kontaktujeme iba vtedy, keď je byt stále k dispozícii a vy ste v užšom výbere. Upozorňujeme, že kritériá výberu stanovuje prenajímateľ a my ich nemôžeme ovplyvniť.
Parametre nehnuteľnosti
| Vek | Nad 50 rokov |
|---|---|
| Stav | Veľmi dobrý |
| Poschodie | 1. poschodie z 6 |
| PENB | A - Mimoriadne úsporné |
| Cena za jednotku | 29 € / m2 |
| Dostupné od | 1. 3. 2026 |
|---|---|
| Dispozícia | 2+1 |
| Číslo inzerátu | 984088 |
| Úžitková plocha | 45 m² |
Čo táto nehnuteľnosť ponúka?
| Balkón | |
| Pivnica | |
| MHD 1 minúta pešo |
| Bezbariérový prístup | |
| Výťah |
V okolí nehnuteľnosti nájdete
Stále hľadáte to pravé?
Nastavte si strážneho psa. Ponuky vybrané na mieru dostanete súhrnne 1× denne e-mailom. S Premium profilom máte po ruke rovno 5 strážcov a keď sa niečo objaví, informujú vás obratom.










