
Prenájom bytu 3+1 • 72 m² bez realitkyBergstraße 9, , Bádensko-Wurttembersko
Bergstraße 9, , Bádensko-WurttemberskoMHD do minúty pešo • Výťah • GarážPonúkaný viacrodinný dom sa predstavuje ako moderné obytné súborstvo vybudované v kvalitnej masívnej technológii. Celkovo budova obsahuje 6 priestranne navrhnutých nájomných bytov, ktoré oslovujú svojimi svetlými konceptmi priestorov, čistými líniami a harmonickým pocitom z bývania.
Ku každému bytu patrí súkromná vonkajšia časť vo forme balkónu alebo terasy, čo rozširuje obytný priestor do exteriéru a vytvára ideálne miesto pre oddychové chvíle v bežnom živote.
Podzemná garáž poskytuje obyvateľom chránené parkovacie miesta, pričom krátke a praktické prístupové cesty do domu situáciu ešte dopĺňajú. Každá obytná jednotka navyše disponuje vlastnou časťou pivnice.
Pre milovníkov bicyklov sú k dispozícii aj ľahko prístupné bicyklové stojany, ktoré uľahčujú každodenný život a umožňujú rýchle a jednoduché využitie.
Dom vo Windenreute sa nachádza v idylickom a pokojnom prostredí, obklopenom jemnými kopčekmi a zelenými lesmi. Jeho poloha ponúka malebný výhľad na okolitú prírodu a je ideálna pre nadšencov prírody hľadajúcich pokoj a oddych. Zároveň je výborné spojenie s blízkym mestom Emmendingen, takže obchody, školy a ďalšie dôležité zariadenia sú ľahko dostupné. Blízkosť turistických a cyklistických trás robí tento dom atraktívnym aj pre outdoorové aktivity. Windenreute je pôvabná dedinka s priateľskou komunitou, čo z nej robí ideálne miesto na život.
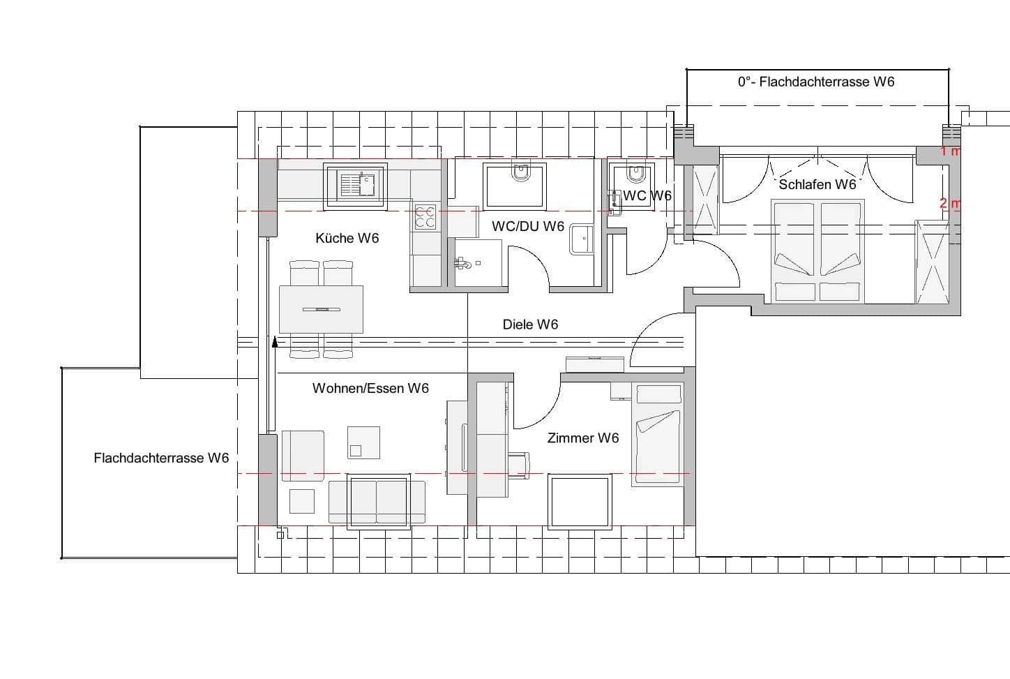
3-izbový byt v podkroví | W6
so terasou, pivnicou, parkovacím miestom v podzemnej garáži a bicyklovým stojanom
Obytná plocha: 71,30 m²
Vybavenie:
• Kvalitná parketová a dlaždivá podlaha
• Prístup cez schodisko alebo výťah
• Bezbariérový prístup
• Podlahové kúrenie
• Ohrievač uterákov
• Moderne vybavené kúpeľne s WC a sprchou
Nájom: 1 248,00
+ režijné náklady: 300,00
+ poplatok za parkovacie miesto: 90,00
V prípade záujmu o byty prosíme o vyplnenie sebavyhlásenia (prostredníctvom QR kódu v expozé).
Parametre nehnuteľnosti
| Vek | Nad 50 rokov |
|---|---|
| Stav | Novostavba |
| Poschodie | 2. poschodie z 2 |
| PENB | A - Mimoriadne úsporné |
| Cena za jednotku | 17 € / m2 |
| Dostupné od | 15. 3. 2026 |
|---|---|
| Dispozícia | 3+1 |
| Číslo inzerátu | 978300 |
| Úžitková plocha | 72 m² |
Čo táto nehnuteľnosť ponúka?
| Garáž | |
| MHD 0 minút pešo |
| Výťah | |
| Terasa |
V okolí nehnuteľnosti nájdete
Stále hľadáte to pravé?
Nastavte si strážneho psa. Ponuky vybrané na mieru dostanete súhrnne 1× denne e-mailom. S Premium profilom máte po ruke rovno 5 strážcov a keď sa niečo objaví, informujú vás obratom.

