
Prenájom bytu 2+kk • 61 m² bez realitkyKomořanská, Praha - Modřany
Komořanská, Praha - ModřanyČiastočne vybavené • Výťah • Garáž • Pivnica 8 m² • Terasa 6 m²Vyžaduje sa overenie bezdlžnostiNabízíme světlý prosluněný byt přímo od majitele s výhledem do zeleně. 4. patro s výtahem, terasou, sklepem a garážovým stáním. Výhled téměř ze všech oken i terasy do protějších kopců, před domem se nachází park. Byt je prostorný, netradičně řešený, má dvě velké místnosti, v jedné je kuchyň, druhou je možné rozdělit nábytkem na 3kk, viz poslední dvě fotografie. Všechna okna včetně dveří na terasu jsou opatřena žaluziemi. Prostorná koupelna s vanou a oddělené WC. Na chodbě zůstává k použití vestavná skříň, stejně jako skříňka v koupelně. Byt je jen částečně vybavený.
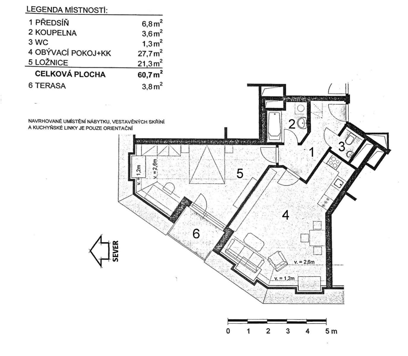
Velikost jednotlivých místností viz. plánek bytu.
I když je byt v předposledním patře, je nad ním terasa, tudíž není slyšet kroky nad hlavou.
V poplatcích je zahrnuta voda, ohřev vody i vytápění. Elektřina se přepisuje na nájemníka.
Byt je po částečné rekonstrukci. 2 minuty chůze od tramvajové i autobusové zastávky, nedaleko nádraží Modřany. Ve vzdálenosti cca 150 metrů se nachází supermarket, drogerie, bankomaty, lékárna, atd.
K nastěhování ihned.
Preferujeme zájemce s využitím garážového stání za 1500,- Kč.
Parametre nehnuteľnosti
| Vek | 10 - 30 rokov |
|---|---|
| Stav | Veľmi dobrý |
| Dispozícia | 2+kk |
| Poschodie | 4. poschodie z 4 |
| Vykurovanie | Vzdialené |
| Vlastníctvo | Osobné |
| Umiestnenie | Centrum mesta |
| Cena za jednotku | 385 CZK / m2 |
| Dostupné od | 23. 1. 2026 |
|---|---|
| Konštrukcia budovy | Tehla |
| Vybavené | Čiastočne |
| Prevedenie | Štandardné |
| Číslo inzerátu | 983818 |
| Rekonštrukcia | Kompletné |
| Úžitková plocha | 61 m² |
Čo táto nehnuteľnosť ponúka?
| Pivnica 8 m² | |
| Výťah |
| Garáž | |
| Terasa 6 m² |
V okolí nehnuteľnosti nájdete

Prenájom bytuDělnická, Praha - Holešovice- 2+kk
- 73 m²
27 000 CZK + 5 000 CZK30 000 CZK
Ušetríte 3 000 CZK



Stále hľadáte to pravé?
Nastavte si strážneho psa. Ponuky vybrané na mieru dostanete súhrnne 1× denne e-mailom. S Premium profilom máte po ruke rovno 5 strážcov a keď sa niečo objaví, informujú vás obratom.


















