
Prenájom domu 5+1 • 136 m² bez realitkyHamburg Bergstedt Hamburg 22395
Hamburg Bergstedt Hamburg 22395MHD 2 minúty pešo • ParkovanieVitajte v domove, ktorý v Hamburgu nájdete len mimoriadne zriedka.
V absolútne najlepšej lokalite v Hamburg-Bergstedt, priamo pri koňskom výbehu a neoddeliteľne susediacom s prírodnou rezerváciou, vzniká tento výnimočný novostavba rodinný dom s energetickou normou KfW-40, ktorý bude v budúcnosti ponúkaný na prenájom. Miesto, kde pokoj, príroda a moderné bývanie splývajú úplne výnimočným spôsobom.
Pozemok je skutočný unikát: Vďaka južnému a juhozápadnému orientovaniu si môžete vychutnávať slnko od ranných hodín až do večera. Nezablokovaný výhľad do zelene, otvorenosť koňského výbehu a priame susedstvo s prírodou vytvárajú atmosféru, ktorú aj v najlepších lokalitách Hamburgu len zriedka nájdete. Piepot vtákov namiesto hlučného premávky – tu pocítite, že príchod domov je hneď ako príchod do domova.
Dom sa momentálne stavia, vnútorné úpravy už prebiehajú. Dokončenie je plánované na apríl/máj 2026, v závislosti od poveternostných podmienok. Osobitnou výhodou pre budúcich nájomcov je, že v rámci výberu materiálov je ešte možnosť podieľať sa na voľbe podlahových krytín a vybraných detailov vybavenia podľa vlastných predstáv.
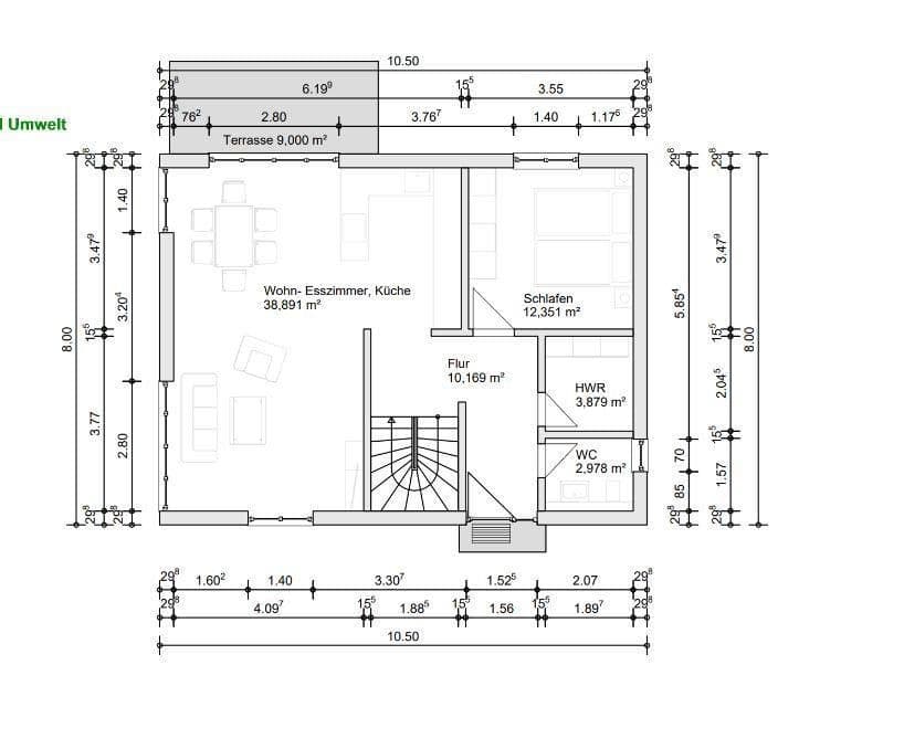
S obytnou plochou približne 135,79 m², rozdelenou do dvoch plnohodnotných podlaží, ponúka dom premyslené, rodinne prívetivé usporiadanie s celkovo piatimi izbami. K dispozícii je tiež plne dokonateľný podkrovný priestor, ktorý perspektívne poskytne dodatočný priestor pre home office, koníčky alebo útočisko.
V prízemí tvorí srdce domu priestranná, otvorená obývacia a jedálenská časť s otvorenou kuchyňou. Veľké okná zabezpečujú dostatok svetla a harmonicky spájajú vnútorný a vonkajší priestor. Ďalšia izba je flexibilne využiteľná ako izba pre rodičov, hosťov alebo pracovňa. Túto úroveň dopĺňa aj hosťové WC so sprchou a praktická práčka a technická miestnosť.
Horné podlažie zaujme jasným, rodinne orientovaným rozložením. Nachádzajú sa tu tri rovnako veľké izby, ktoré sú ideálne vhodné ako detské izby alebo spálne. Kvalitná rodinná kúpeľňa dopĺňa toto poschodie komfortne a prakticky.
Osobitým „highlightom“ je priestranný vonkajší priestor. Tichá rodinná záhrada orientovaná na juh a juhozápad láka na hranie, oddych aj dlhé posedenia. Existentná terasa sa rýchlo stane obľúbeným miestom – slnko tu podľa pocitu svieti takmer celý deň. Výhľad do zelene a bezprostredná blízkosť prírody zaručujú mimoriadne uvoľnený pocit zo života. V Hamburgu sa len zriedka býva tak pokojne a príjemne.
Aj prevádzkové náklady sú atraktívne: Vďaka veľmi vysokej energetickej norme (KfW 40), modernej technike a využitiu tepelného čerpadla a fotovoltaickej elektrárne sú celkové náklady na energiu a prevádzku nízke. Elektrina a voda sa účtujú priamo od nájomcu u príslušných dodávateľov, čo zaručuje transparentnosť a kontrolu nákladov. Prevádzkové náklady prenajímateľa sa v podstate obmedzujú na pozemkovú daň a poistenie budovy.
Ponuka je doplnená o premyslenú infraštruktúru: Parkovacie miesto pre osobné vozidlo je zabezpečené na predopredanom pozemku prostredníctvom právneho cesty, príprava pre wallbox je už vykonaná. Okrem toho je dostatok miesta pre väčší kôlňa, úložné priestory pre bicykle, detské kočíky a záhradný náradie.
Tento dom je oveľa viac než len novostavba – je to domov pre ľudí, ktorí si cenia prírodu, pokoj a kvalitnú architektúru a nechcú sa vzdať výhod života v Hamburgu. Miesto pre príchod, zotrvanie a dlhodobý pocit pohody.
Hamburg-Bergstedt patrí medzi najžiadanejšie a najrodinne prívetivejšie obytné oblasti na severovýchodnom okraji Hamburgu. Táto štvrť spája pokojným, prírodou naplnené bývanie s veľmi dobrou mestskou infraštruktúrou a je jednou z preferovaných lokalít pre rodiny, ktoré hľadajú dlhodobú kvalitu života.
Twietenkoppel je pokojná, málo frekventovaná obytná ulica prevažne s kvalitnou rodinnou výstavbou. Pozemok leží priamo pri koňskom výbehu a susedí s prírodnou rezerváciou. Táto výnimočná poloha zaručuje nezablokovateľné výhľady, maximálny pokoj a vysokú mieru súkromia – skutočný jedinečný znak v Hamburgu. Tu zažijete pravú prírodu priamo za dverami.
Bergstedt je obzvlášť obľúbený medzi rodinami s deťmi. Okolie je považované za veľmi bezpečné, zelené a detsky prívetivé. Niekoľko materských škôl, základných aj stredných škôl sa nachádza v blízkom okolí. Hrejivé ihriská, športové kluby, možnosti jazdy na koni a rozsiahle pešia a cyklistická chodníky dotvárajú túto štvrť a poskytujú ideálne podmienky pre aktívny rodinný život.
Napriek pokojnej lokalite je doprava vynikajúca. Autobusové linky spájajú Bergstedt rýchlo s Hamburg-Poppenbüttel a S-Bahn, odtiaľ je priamy spoj do centra Hamburgu. Nákupné centrum Alstertal-Einkaufszentrum (AEZ) so svojimi množstvom obchodov, reštaurácií, lekárov a kaviarní je dosiahnuteľné behom niekoľkých minút a ponúka komfortné miestne služby na vysokej úrovni.
Aj milovníci prírody a oddychu budú mať z tejto lokality čo čerpať: Alsterläufe, okolitá prírodná rezervácia, lúky a polia, ako aj početné jazdecké a turistické trasy formujú bezprostredné okolie. Táto kombinácia prírody, pokoja a mestskej dostupnosti robí z Hamburg-Bergstedt jednu z najhodnotnejších a najtrvalo žiadaných obytných lokalít Hansestadu.
Zhrnutie:
Hamburg-Bergstedt predstavuje spomalené bývanie, vysokú bezpečnosť a mimoriadnu kvalitu života. Ideálne prostredie pre rodiny, ktoré hľadajú dokonalú rovnováhu medzi prírodou, pokojom a blízkosťou k veľkému mestu.
Táto novostavba rodinného domu zaujme svojou budúcnosťou zabezpečenou, energeticky efektívnou výbavou a mimoriadne kvalitným stavebným prevedením. Udržateľnosť, bývací komfort a architektonická kvalita boli tu dôsledne prepojené a navrhnuté pre dlhodobé a pohodlné bývanie.
Energia a technika
Dom je vykurovaný moderným vzduchovo-vodným tepelným čerpadlom, ktoré v kombinácii s fotovoltaickou elektrárou efektívne pokrýva väčšinu energetických potrieb. Hlavným energetickým zdrojom je elektrina, čím je budova optimálne pripravená na aktuálne aj budúce energetické koncepty.
Podlahové kúrenie v celom dome zaisťuje rovnomerné, príjemné rozloženie tepla a vytvára zvlášť útulnú atmosféru. Zároveň umožňuje flexibilné usporiadanie priestoru bez viditeľných radiátorov. Vďaka vysoko energetickej norme (KfW 40) budú budúci nájomcovia profitovať z porovnateľne nízkych bežných energetických a prevádzkových nákladov. Účtovanie elektriny prebieha priamo medzi nájomcom a dodávateľmi, čo prináša transparentnosť a úplnú kontrolu nákladov.
Stavebný spôsob a kvalita
Dom je postavený v masívnej drevostavbe, čo zabezpečuje zdravé vnútorné prostredie, veľmi dobré izolačné vlastnosti a príjemný pocit bývania za každého počasia. Výstavbu zabezpečuje spoločnosť Holzbau Pagels zo Bad Segeberg, jedna z najuznávanejších stolárskych dielní v severnom Nemecku, známa pre precízne remeselné spracovanie, kvalitné materiály a dlhovekú stavebnú kvalitu.
Architektúra je moderná, čistá a nadčasová. Biela, vysoko kvalitne omietnutá fasáda dáva budove elegantný vzhľad. Trojsklo zabezpečuje veľmi dobrú tepelnú a zvukovú izoláciu. Exteriérové okná sú v modernom čiernom prevedení, interiéry v klasickej bielej farbe, takže sa harmonicky začleňujú do akéhokoľvek dizajnu interiéru.
Osobitým ťahákom sú početné veľké okná od podlahy až po strop v prízemí. Zabezpečujú mimoriadne množstvo prirodzeného svetla, vytvárajú plynulé prepojenie medzi vnútorným a vonkajším priestorom a otvárajú krásne výhľady do záhrady a okolitú prírodu. V kombinácii s vysokými stropmi vzniká otvorený, priestranný pocit zo značného svetla a príjemnej atmosféry.
Pri výbere všetkých materiálov sa kládol veľký dôraz na kvalitu, dlhú životnosť a nadčasový dizajn. Moderná architektúra v spojení s vysoko kvalitným remeselným spracovaním vytvára domov, ktorý spĺňa najvyššie estetické aj funkčné nároky.
Zhrnutie:
Výbava na vysokej úrovni – energeticky efektívna, udržateľná a príjemná na bývanie. Novostavba, ktorá spája moderné, komfortné bývanie s kvalitou a zárukou budúcnosti.
Ponúkaný objekt je kvalitný, energeticky efektívny novostavba rodinný dom, ktorý je určený na prenájom a nachádza sa v jednej z najlepších a najrodinne prívetivejších obytných lokalít Hamburgu. Kombinácia modernej tepelnej čerpadlovej techniky, fotovoltaickej elektrárne, možného dodatočného využitia podkrovia, priestrannej záhrady a nezablokovateľného výhľadu na prírodu a koňský výbeh robí z tejto nehnuteľnosti skutočnú výnimočnosť na hamburskom trhu s prenájmami.
Dom bude odovzdaný „key-ready“ a je pripravený na nasťahovanie na jar 2026. Momentálne existuje možnosť, aby si budúci nájomcovia v rámci výberu materiálov prispôsobili niektoré detaily výbavy podľa vlastných predstáv.
Vďaka vysoko energetickej norme (KfW 40) a modernej domácej technike sú celkové bežné náklady na energiu a prevádzku nízke. Elektrina a voda sa účtujú priamo nájomcovi u príslušných dodávateľov, čím sa zabezpečuje maximálna transparentnosť. Prevádzkové náklady prenajímateľa sa v podstate obmedzujú na pozemkovú daň a poistenie budovy.
Zábezpeka na nájom vo výške 6 500 € je potrebná.
Radi vám zašleme kompletné expozičné materiály s pôdorysmi, rezmi a aktuálnymi fotografiami stavby, alebo si dohodneme osobné stretnutie na mieste, aby ste si mohli sami vytvoriť predstavu o tejto výnimočnej lokalite a nehnuteľnosti.
Tento objekt je niečo výnimočné – presvedčte sa sami.
Parametre nehnuteľnosti
| Vek | Nad 50 rokov |
|---|---|
| Stav | Novostavba |
| Číslo inzerátu | 983483 |
| Úžitková plocha | 136 m² |
| Celkové poschodia | 2 |
| Dostupné od | 1. 5. 2026 |
|---|---|
| Dispozícia | 5+1 |
| PENB | A - Mimoriadne úsporné |
| Plocha pozemku | 404 m² |
| Cena za jednotku | 24 € / m2 |
Čo táto nehnuteľnosť ponúka?
| Parkovanie | |
| Terasa |
| MHD 2 minúty pešo |
V okolí nehnuteľnosti nájdete
Stále hľadáte to pravé?
Nastavte si strážneho psa. Ponuky vybrané na mieru dostanete súhrnne 1× denne e-mailom. S Premium profilom máte po ruke rovno 5 strážcov a keď sa niečo objaví, informujú vás obratom.


































