
Predaj domu 4+1 • 94 m² bez realitky, Hesensko
, HesenskoMHD do minúty pešo • GarážCharmantný, zmodernizovaný rodinný dom s udržiavaným dvorom a malou záhradou v 63512 Hainburg, okres Offenbach; Frankfurt; Hanau; Aschaffenburg – na predaj
️ Popis objektu
Vitajte v starostlivo udržiavanom rodinnom dome s jedinečným šarmom a množstvom moderných prvkov. Dom s rozlohou 94 m², rozdelený do 2 poschodí, ponúka všetko, čo si možno priať pre komfortné bývanie – vhodný ako pre páry, tak pre malé rodiny.
Dom bol v rokoch 2008/2009 jeho predchádzajúcim majiteľom kompletně zrekonštruovaný a v nasledujúcich rokoch ďalej modernizovaný. Stav domu je veľmi upravený.
Okamžitý sťahovanie je možné.
️ Popis lokality
Hainburg sa nachádza v okrese Offenbach v Hesensku a je súčasťou hospodnecky silnej metropolitnej oblasti Frankfurt/Rhein-Main. Obec sa vyznačuje idylickou polohou na brehu rieky Máin – s rozsiahlymi chodníkmi a cyklotrasami pozdĺž rieky.
Osobitým lákadlom je obľúbené kúpalisko Hainstadt, ktoré je vzdialené len niekoľko minút a v letných mesiacoch láka na kúpanie, oddych a vychutnávanie si prírody.
Napriek prírodnému prostrediu je výborná dostupnosť: Frankfurt, Offenbach, Hanau, Aschaffenburg a letisko vo Frankfurte sú rýchlo dostupné – či už autom po diaľnici A3/A45 alebo vlakom z blízkej stanice Hainburg.
Bývateľské prostredie je pokojné, rodinne orientované a bezpečné. Všetky dôležité zariadenia, ako sú obchody, školy, materské školy, lekári a športové zariadenia, sa nachádzajú v bezprostrednej blízkosti.
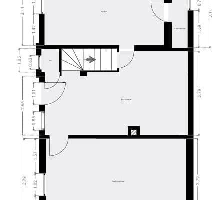
ℹ️ Prízemie:
▪️ Veľkorysý, otvorený jedálenský a kuchynský priestor s vstavanou kuchyňou a obloženou škridlovou podlahou
▪️ Obývacia izba s laminátovou podlahou, prístupná cez dve vchody
▪️ Obložená kúpeľňa s vaňou, WC, prípojkou pre práčku a sušičku
▪️ 1x Klimatizácia v obývacej/jedálni
▪️ Automatické rolety s prednastaveným časovačom v jedálni/obývačke
▪️ Prístup k udržiavanému zmodernizovanému dvoru a záhradnému priestoru
ℹ️ Poschodie:
▪️ Jedna spálňa / izba pre hostí
▪️ Automatické rolety s prednastaveným časovačom a sieťovým ochranným systémom v oboch izbách
▪️ Klimatizácia v spálni
▪️ Otvorená chodba, momentálne využívaná ako kancelária
▪️ Samostatné WC
ℹ️ Vybavenie
▪️ 3 klimatizácie
▪️ Elektrické rolety a elektrický pohon brány
▪️ Plastové izolačné okná, čiastočne s integrovanou ochrannou sieťou proti hmyzu
▪️ Balkonová solárna elektráreň na výrobu elektriny
▪️ Styrofoam izolácia na podkroví a v suteréne
▪️ Príprava pre optické vlákno
▪️ Betonová kontajnerová skrinka Paul Wolff
▪️ Klenutý suterén (čiastočne podzemný – neizolovaný) s úložným potenciálom
▪️ Betonová prefabrikovaná garáž s elektrickým pohonom
️ Dvor a vonkajší priestor – malé rajské prostredie
Novo upravený, vysoko kvalitne dláždený dvor je skutočným lákadlom:
▪️ Protikauzový plot chráníci susednú stranu
▪️ Priestor pre oslavy v nadstavbe s vlastnou klimatizáciou
▪️ Úložný priestor (napr. pre kolobežky/bicykle) s elektrickými roletami prístupnými zo ulice
▪️ Rôzne vonkajšie osvetlenia s pohybovými senzormi a zásuvkami
▪️ Zelený pás s ovocnými a ozdobnými rastlinami: okrem iného datloveň, jabloň, malinové kríky, vinič, hibiscus
▪️ Kaktusová záhon priamo pri vstupe ako výrazný dizajnový prvok
▪️ Vyvýšená záhrada s rozmarínom a letnými kvetmi – je tu dostatok miesta pre ďalšie výsadby
️ Ostatné
Dom je v udržiavanom stave s bežným vybavením a bol priebežne modernizovaný počas rokov. Dvorná časť je vhodná nielen na oddych, ale aj na spoločenské podujatia. Vďaka rozmanitému rozdeleniu priestorov a samostatným prístupom objekt ponúka aj potenciál pre home office alebo hobby miestnosti.
Záver
Dom, do ktorého sa vložila láska, s históriou, štýlom a moderným komfortom.
Ideálny pre ľudí, ktorí si cenia šarm, funkčnosť a idylický vonkajší priestor.
️ Prosím, žiadne dopyty od maklérov ️
Parametre nehnuteľnosti
| Vek | Nad 50 rokov |
|---|---|
| Dispozícia | 4+1 |
| Úžitková plocha | 94 m² |
| Celkové poschodia | 1 |
| Stav | Dobrý |
|---|---|
| Číslo inzerátu | 981387 |
| Plocha pozemku | 196 m² |
| Cena za jednotku | 4 989 € / m2 |
Čo táto nehnuteľnosť ponúka?
| Pivnica | |
| MHD 0 minút pešo |
| Garáž | |
| Terasa |
V okolí nehnuteľnosti nájdete
Stále hľadáte to pravé?
Nastavte si strážneho psa. Ponuky vybrané na mieru dostanete súhrnne 1× denne e-mailom. S Premium profilom máte po ruke rovno 5 strážcov a keď sa niečo objaví, informujú vás obratom.





















