
Predaj domu 5+1 • 141 m² bez realitkyJohan-Kaiser-Ring 148, , Hesensko
Johan-Kaiser-Ring 148, , HesenskoMHD 2 minúty pešo • ParkovanieSrdečne vítame vo vašom novom domove!
Tento atraktívny radový dom so strednou veľkosťou zaujme premysleným rozložením miestností, upravenou záhradou a dvoma parkovacími miestami priamo pred domom. S približne 141 m² obytnou plochou poskytuje ideálne podmienky pre páry, malé rodiny alebo všetkých, ktorí si cenia moderné bývanie v pokojnej lokalite.
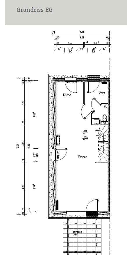
V prízemí vás privíta priestranná, svetlom zalitá obývacia a jedálenská časť so širokými oknami, ktorá vytvára harmonický prechod na prístrešenú terasu a do záhrady – ideálne miesto na pohodové chvíle alebo spoločenské stretnutia.
Priľahlá kuchyňa je funkčne zariadená a vďaka svojmu otvorenému konceptu plynule pretína obývaciu a jedálenskú časť. Krátke vzdialenosti pri varení a priamá blízkosť k jedálenskej zóne zaručujú, že vždy zostanete v centre diania – či už počas rodinných raňajok alebo spoločnej večere s hosťami.
Hosťovské WC túto úroveň pohodlne dopĺňa a prináša dodatočný komfort.
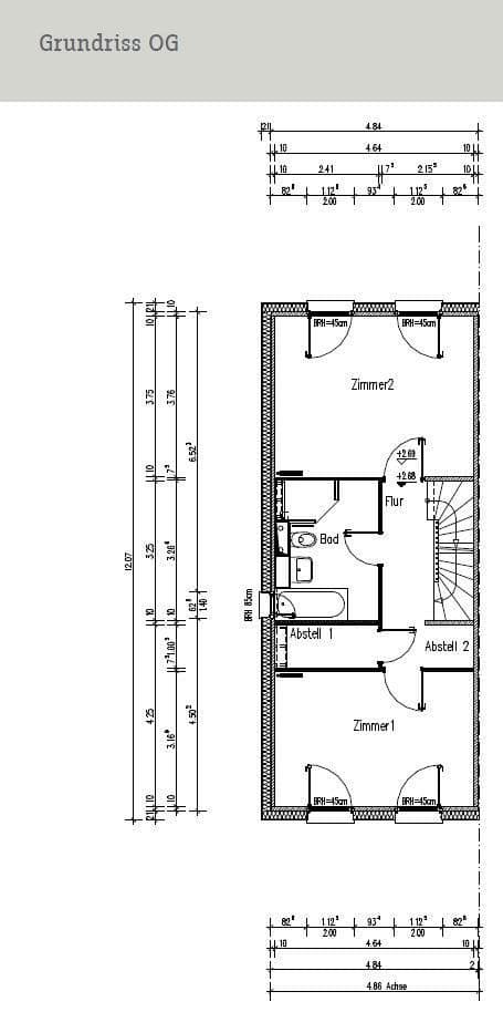
Na hornom poschodí vás čakajú dve svetlé, dobre usporiadané izby, ktoré je možné ideálne využiť ako spálňu pre rodičov, detskú izbu či domáce pracovisko. Hlavná spálňa disponuje praktickou, prechádzkou prispôsobenou miestnosťou, ktorá sa výborne hodí na zariadenie šatníka – chytré riešenie spájajúce poriadok s pohodlím.
Moderná kúpeľňa na tomto poschodí je vybavená vaňou a samostatnou sprchou. Navyše je k dispozícii pivničná miestnosť, ktorá ponúka praktický úložný priestor pre každodenné potreby.
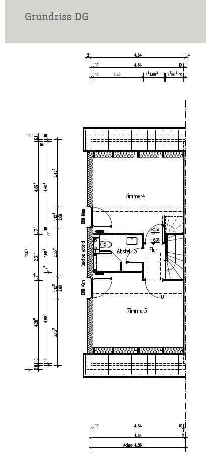
Osobitým vrcholom domu je podkrovie: Ponúka dve ďalšie plnohodnotné izby, ideálne ako doplnkové spálne, izba pre hostí alebo ako priestor pre záľuby. Toto podkroviu dopĺňa moderná kúpeľňa so sprchou, ktorá ešte viac zvyšuje komfort bývania.
Z podkrovia máte tiež prístup na pôdu, ktorá poskytuje dodatočný úložný priestor a je ideálna pre uskladnenie predmetov, ktoré využívate zriedka – praktické rozšírenie obytného priestoru, ktoré prináša flexibilitu a poriadok.
Starostlivo upravená záhrada s prístrešenou terasou vás láka na uvoľnené chvíle na čerstvom vzduchu – ideálne pre grilovačky, detské ihriská alebo malý záhon s bylinkami a kvetmi. Terasu zdobí priehľadná sklenná strecha, ktorá umožňuje prienik množstva denného svetla a zároveň poskytuje ochranu za každého počasia.
Doplnkom je aj záhradná chata, ktorú možno využiť rôznorodo – či už na uskladnenie záhradného náradia, bicyklov alebo ako malý priestor pre záľuby. Tak si môžete svoj vonkajší priestor užívať komfortne a flexibilne počas celého roka.
Kompletný a všestranný domov, ktorý ohromuje komfortom, premysleným rozložením miestností a rodinne prívetivou lokalitou – ideálny pre všetkých, ktorí si vážia kvalitu bývania a vyváženú kombináciu prírody s infraštruktúrou.
Radový dom so strednou veľkosťou sa nachádza v pokojnej a zároveň dopravne výhodnej oblasti na ulici Johann-Kaiser-Ring v Hanau. Okolie je charakterizované upravenými radovými a rodinnými domami a ponúka harmonické, rodinne priateľské prostredie.
Všetky dôležité možnosti nákupu pre každodenné potreby – medzi ktoré patria supermarkety, pekárne a drogérie – sú ľahko dostupné. Mimoriadne praktické je aj obchodné centrum Kinzigbogen, ktoré sa nachádza len niekoľko minút chôdze a ponúka široký sortiment obchodov a služieb. Lekárske ordinácie a lekárne sú taktiež v bezprostrednej blízkosti.
Pre rodiny je poloha ideálna: materské školy a základné školy sú pohodlne dostupné pešo alebo na bicykli, zatiaľ čo stredné školy sú veľmi dobre napojené. Čoraz viac ihrísk, športových a voľnočasových aktivít, ale aj zelených plôch a parkov vás pozýva na vonkajšie aktivity a prispieva k vysokej kvalite života.
Do práce cestujúci profitujú z rýchleho spojenia s diaľnicou A66, cestnou sieťou B43a a B45, takže ciele v celom regióne Rhein-Main sú jednoducho dosiahnuteľné. Centrum Hanau a verejná doprava s pravidelnými spojmi do okolských častí mesta sú vzdialené len niekoľko minút.
Takáto adresa spája pokojné, prírodou ovplyvnené bývanie s vynikajúcou infraštruktúrou, vysokou mobilitou a rôznorodými voľnočasovými možnosťami – ideálna pre rodiny, dochádzajúcich do práce alebo pre tých, ktorí hľadajú vyváženú kvalitu života.
Dom disponuje piatimi dobre rozvrhnutými izbami na troch úrovniach a ponúka dve moderné kúpeľne – jednu s vaňou a samostatnou sprchou na hornom poschodí, druhú ako sprchovňu v podkroví – ako aj hosťovské WC v prízemí. Otvorená kuchyňa je vybavená modernou vstavanou kuchynou a plynule naviazaná na obývaciu a jedálenskú časť. Dodatočný úložný priestor poskytujú praktická pivnica a pôda.
Dom disponuje piatimi dobre rozvrhnutými izbami na troch úrovniach a ponúka dve moderné kúpeľne – jednu s vaňou a samostatnou sprchou na hornom poschodí, druhú ako sprchovňu v podkroví – ako aj hosťovské WC v prízemí. Otvorená kuchyňa je vybavená modernou vstavanou kuchynou a plynule pretína obývaciu a jedálenskú časť. Dodatočný úložný priestor poskytujú praktická pivnica a pôda.
Obývacie priestory sú vybavené kvalitným laminátom. Kúpeľne, hosťovské WC, ako aj kuchyňa a vstupná časť, sú funkčne obložené obkladmi. Záhrada s prístrešenou sklenenou terasou láka na relaxačné chvíle vonku a je doplnená záhradnou chatou, ktorá ponúka ďalší úložný priestor alebo miesto pre záľuby. K dispozícii sú dve parkovacie miesta priamo pri dome, každé za cenu 10 000 €.
Parametre nehnuteľnosti
| Vek | Nad 50 rokov |
|---|---|
| Stav | Dobrý |
| Číslo inzerátu | 981031 |
| Úžitková plocha | 141 m² |
| Celkové poschodia | 3 |
| Dostupné od | 27. 1. 2026 |
|---|---|
| Dispozícia | 5+1 |
| PENB | B - Veľmi úsporné |
| Plocha pozemku | 150 m² |
| Cena za jednotku | 3 894 € / m2 |
Čo táto nehnuteľnosť ponúka?
| Parkovanie | |
| Terasa |
| MHD 2 minúty pešo |
V okolí nehnuteľnosti nájdete
Stále hľadáte to pravé?
Nastavte si strážneho psa. Ponuky vybrané na mieru dostanete súhrnne 1× denne e-mailom. S Premium profilom máte po ruke rovno 5 strážcov a keď sa niečo objaví, informujú vás obratom.





























