
Predaj domu • 272 m² bez realitky, Bavorsko
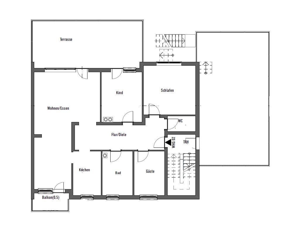
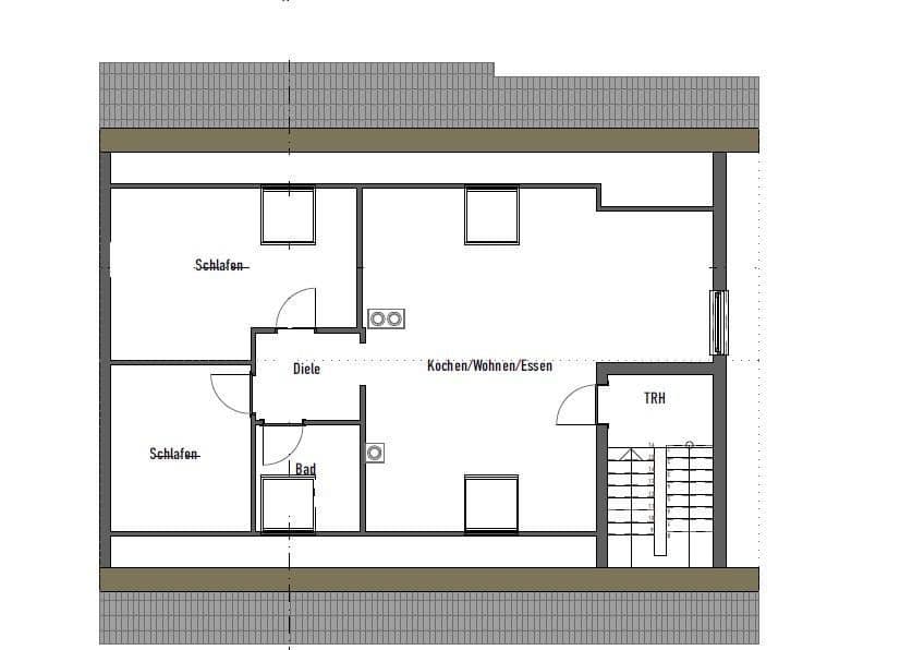
, BavorskoMHD 2 minúty pešo • GarážTento udržiavaný trojrodinný dom z roku 1975 ponúka na pozemku o rozlohe približne 350 m² tri priestranné obytné jednotky s celkovou obytnou plochou okolo 271 m². Prízemie zahŕňa približne 75 m² s 2 izbami, prvé poschodie ponúka približne 113 m² s 3 izbami, balkónom a priamym vstupom do záhrady. Poschodie pod strechou poskytuje približne 83 m² veľký 2-izbový byt. Pre prízemie a prvé poschodie je k dispozícii parkovacie miesto v garáži. Okrem toho sa predávajú aj dva priamo susediace pozemky ako záhradná plocha, ktoré ponúkajú ďalší priestor pre voľnočasové aktivity, záhradné projekty alebo súkromie.
Dom sa nachádza v pokojnej a prírode priateľskej lokalite vo Waldaschaffe, v bezprostrednej blízkosti škôl, materských škôl a obchodných príležitostí. Dopravná dostupnosť je výborná – autobus, vlak aj diaľnica sú ľahko dostupné. Okolie láka na voľnočasové aktivity v prírode, či už ide o prechádzky v blízkom lese, športové možnosti alebo činnosť v kluboch.
Topenie je zabezpečené modernou plynovou kotlovňou z roku 2020. Dom je celkovo v udržiavanom stave, väčšie rekonštrukcie zatiaľ nie sú potrebné. Energetický certifikát je samozrejme k dispozícii.
Parametre nehnuteľnosti
| Vek | Nad 50 rokov |
|---|---|
| Číslo inzerátu | 981038 |
| Úžitková plocha | 272 m² |
| Celkové poschodia | 3 |
| Stav | Dobrý |
|---|---|
| PENB | D - Menej hospodárne |
| Plocha pozemku | 350 m² |
| Cena za jednotku | 2 165 € / m2 |
Čo táto nehnuteľnosť ponúka?
| Garáž |
| MHD 2 minúty pešo |
V okolí nehnuteľnosti nájdete
Stále hľadáte to pravé?
Nastavte si strážneho psa. Ponuky vybrané na mieru dostanete súhrnne 1× denne e-mailom. S Premium profilom máte po ruke rovno 5 strážcov a keď sa niečo objaví, informujú vás obratom.




















