
Predaj domu 5+1 • 136 m² bez realitkyHamburg Bergstedt Hamburg 22395
Hamburg Bergstedt Hamburg 22395MHD 2 minúty pešo • ParkovanieVitajte v dome, ktorý v Hamburgu nájdete len mimoriadne zriedka.
V absolútne ideálnej lokalite Hamburg-Bergstedt, priamo pri koňskom výbehu a tesne pri chránenom prírodnom území, vzniká tento výnimočný novostavbový rodinný dom KfW-40. Miesto, kde sa pokoj, príroda a moderné bývanie preplietajú úplne jedinečným spôsobom.
Pozemok je skutočnou unikátnosťou: Vďaka orientácii na juh a juhozápad máte tu slnečné svetlo od rána až do večerných hodín. Nerušiteľný výhľad do zelene, otvorená diaľka výbehu a priama susednosť s prírodou vytvárajú atmosféru, akú nájdete len zriedka aj v najprestížnejších lokalitách Hamburgu. Spev vtákov miesto hluku dopravy – tu sa príchod okamžite premieňa na pocit domova.
Dom sa momentálne stavia, vnútorné úpravy už prebiehajú. Dokončenie je plánované na apríl/máj 2026, v závislosti od poveternostných podmienok. Pre kupujúcich je obzvlášť výhodné, že v súčasnosti ešte existuje možnosť aktívne sa podieľať na výbere vzorových materiálov a zvoliť si podlahové krytiny a ďalšie detaily vybavenia podľa vlastnej predstavy – tak vznikne domov, ktorý vám naozaj sedí.
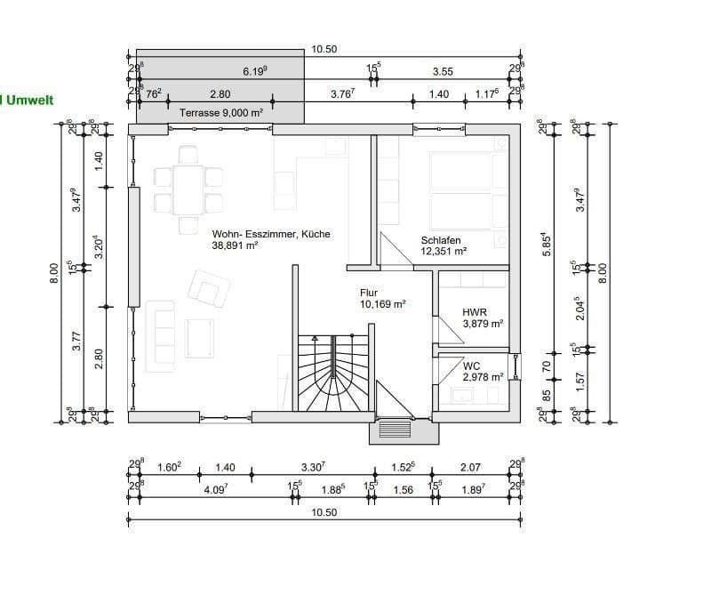
S obytnou plochou približne 135,79 m², rozdelenou na dve poschodia, ponúka dom premyslený, rodinne orientovaný koncept s celkom piatimi izbami. Priestor navyše dopĺňa kompletne dokončiteľné podkrovia, ktoré perspektívne môže poskytnúť dodatočnú obytnú plochu – ideálne pre ateliér, ďalšiu domácu kanceláriu alebo útočisko pre staršie deti.
V prízemí tvorí veľkorysý, otvorený obývací a jedálenský priestor s otvorenou kuchyňou srdce domu. Veľké okná zabezpečujú dostatok svetla a harmonicky spájajú vnútorný s vonkajším priestorom. Ďalšia izba na tejto úrovni je flexibilne využiteľná ako izba pre rodičov, hostí alebo ako pracovňa. Celkový priestor dopĺňa hosťovské WC so sprchou a praktická izba pre práčku/techniku.
Horné poschodie presvedčí jasným, rodinne vhodným rozložením. K dispozícii sú tu tri izby podobnej veľkosti, ktoré sa dajú ideálne využiť ako detské izby alebo spálne. Vysoko kvalitná, plnohodnotná rodinná kúpeľňa dopĺňa toto poschodie a ponúka komfort pre každodenný život.
Ďalším lákadlom je veľkorysý vonkajší priestor. Pokojná rodinná záhrada so smerom na juh a juhozápad pozýva na hru, oddych a trávenie voľného času. Existujúca terasa sa rýchlo stane obľúbeným miestom – slnko je tu akoby počas celého dňa garantované. Priamy výhľad na koňský výbeh a do prírody zaručuje neopakovateľný pocit bývania. V Hamburgu sa len zriedka dá bývať pokojnejšie a krajšie.
Ponuku dopĺňa premyslená infraštruktúra: Parkovacie miesto pre automobil je zabezpečené prostredníctvom práva prechodu na predzáhradnom pozemku, príprava pre wallbox je už hotová. Okrem toho je dostatok miesta pre väčšiu záhradnú chatku, rovnako ako úložné priestory pre bicykle, detské kočíky a záhradný náradie.
Tento dom je oveľa viac než len novostavba – je to domov pre tých, ktorí si cenia prírodu, pokoj a vysoko kvalitnú architektúru a nechcú sa vzdať výhod života v Hamburgu. Miesto, kde môžete prísť, zotrvať a zakoreniť sa.
Hamburg-Bergstedt patrí k najžiadanejším a najpriateľskejším rodinným lokalitám v severovýchodnej časti Hamburgu. Táto štvrť spája pokojné, prírode blízke bývanie s vynikajúcou mestskou infraštruktúrou a je obľúbená medzi rodinami, ktoré hľadajú dlhodobú kvalitu života.
Twietenkoppel je pokojná, málo frekventovaná obytná ulica s prevažne vysoko kvalitnou výstavbou rodinných domov. Pozemok sa nachádza priamo pri koňskom výbehu a susedí s chránenou prírodnou rezerváciou. Táto výnimočná poloha zaručuje nerušiteľné výhľady, maximálny pokoj a vysokú mieru súkromia – skutočne jedinečný prvok v Hamburgu. Tu zažijete čistú prírodu priamo pred dverami.
Bergstedt je obzvlášť obľúbený medzi rodinami s deťmi. Okolie je považované za veľmi bezpečné, zelené a priateľské k deťom. V bezprostrednej blízkosti sa nachádza viacero materských škôl, základných aj stredných škôl. Detské ihriská, športové kluby, možnosti jazdy na koni a rozsiahle chodníky a cyklotrasy dodávajú štvrti ideálne podmienky pre aktívny rodinný život.
Napriek pokojnému prostrediu je dopravné spojenie vynikajúce. Autobusové linky spájajú Bergstedt rýchlo s Hamburg-Poppenbüttel a S-Bahn, odkiaľ prebieha priame spojenie do centra Hamburgu. Aj Nákupné centrum Alstertal-Einkaufszentrum (AEZ) s množstvom obchodov, reštaurácií, lekárov a kaviarní je dosiahnuteľné za pár minút a ponúka komfortné zásobovanie na vysokej úrovni.
Aj milovníci prírody a oddychu si prídu na svoje: Alsterläufe, okolité chránené prírodné rezervácie, lúky a polia, ako aj početné jazdecké a turistické trasy charakterizujú bezprostredné okolie. Táto kombinácia prírody, pokoja a mestských výhod robí z Hamburg-Bergstedt jednu z najhodnotnejších a najtrvalo žiadaných lokalít mesta.
Záver:
Hamburg-Bergstedt predstavuje spomalené bývanie, vysokú bezpečnosť a výnimočnú kvalitu života. Ideálne prostredie pre rodiny, ktoré hľadajú prírodu, pokoj a blízkosť veľkomesta v dokonalom vyvážení.
Tento novostavbový rodinný dom zaujme budúcnostne bezpečnou, energeticky efektívnou výbavou a mimoriadne vysoko kvalitatívnou výstavbou. Udržateľnosť, obytný komfort a architektonická kvalita boli tu dôsledne zlúčené.
Energia a technika
Dom je vyhrievaný moderným vzduchovo-vodným tepelným čerpadlom, ktoré v kombinácii s fotovoltaickou sústavou s 18 solárnymi panelmi vyrába väčšinu potrebnej energie. Hlavným energetickým nosičom je elektrina, čím je budova optimálne pripravená na budúce energetické koncepcie. Podlahové kúrenie v celom dome zabezpečuje rovnomerné a príjemné rozloženie tepla a umožňuje flexibilné usporiadanie izieb bez viditeľných radiátorov. Celkovo budú budúci vlastníci profitovať z veľmi nízkych prevádzkových nákladov pri zachovaní vysokého komfortu bývania.
Spôsob výstavby a kvalita
Dom bude postavený v masívnej drevostavbe, čo zaručuje zdravé vnútorné prostredie, vynikajúce izolačné vlastnosti a vysokú udržateľnosť. Výstavbu realizuje spoločnosť Holzbau Pagels z Bad Segeberg, jedna z najuznávanejších stolárskych dielní severného Nemecka, známa precíznym remeselným spracovaním a dlhovekou kvalitou.
Architektúra je moderná, čistá a nadčasová. Biela, vysoko kvalitne omietnutá fasáda dodáva budove elegantný vzhľad. Trojsklo zabezpečuje vynikajúcu tepelnú a zvukovú izoláciu. Vonkajšie okná sú spracované v modernej čiernej farbe, zatiaľ čo vnútorné v klasickej bielej, takže sa harmonicky zlúčia s akýmkoľvek konceptom bývania.
Osobitým lákadlom sú četné veľké podlahové okná v prízemí. Zabezpečujú mimoriadne množstvo denného svetla, vytvárajú plynulé prechody medzi vnútorným a vonkajším priestorom a otvárajú nádherné výhľady do záhrady, na koňský výbeh a do obklopujúcej prírody. V spojení s veľmi vysokymi stropmi vzniká otvorený, veľkorysý pocit priestoru s jasnou a príťažlivou obytnou atmosférou.
Pri výbere všetkých materiálov sa venovala mimoriadna pozornosť kvalite, trvanlivosti a nadčasovému dizajnu. Moderná architektúra, kombinovaná s vysoko kvalitným remeselným spracovaním, vytvára domov, ktorý nielen esteticky, ale aj funkčne spĺňa najvyššie požiadavky.
Záver:
Vybavenie na vysokej úrovni – energeticky efektívne, udržateľné a architektónsky presvedčivé. Novostavba, ktorá spája moderné bývanie s kvalitou a budúcnostnou bezpečnosťou.
Predaj tejto nehnuteľnosti prebieha bez provízie, neplatíte žiadny maklérsky poplatok. Kupujúci hradia výlučne bežné dodatočné náklady spojené s kúpou:
Daň z nadobudnutia nehnuteľnosti: 5,5 % z kúpnej ceny
Notárske a katastrálne poplatky: cca 2 % z kúpnej ceny
Žiadne ďalšie náklady nevznikajú.
Ponúkaný objekt je vysoko kvalitný, energeticky efektívny novostavbový rodinný dom v jednej z najlepších a najrodinne prívetivejších lokalít Hamburgu. Kombinácia tepelného čerpadla, fotovoltaickej sústavy, možností nadstavby v podkroví, veľkorysého záhradného priestoru a nerušiteľného výhľadu do prírody a na koňský výbeh robí z tejto nehnuteľnosti skutočnú výnimočnosť.
Dom bude odovzdaný "na kľúč" a bude pripravený na nasťahovanie na jar 2026. V súčasnosti je ešte možnosť zapojiť sa do voľby vzoriek a prispôsobiť si niektoré detaily vybavenia podľa vlastných predstáv.
Radi vám zašleme kompletný expo s pôdorysmi, reznými nákresmi a aktuálnymi fotografiami z miesta výstavby, alebo si dohodneme osobnú prehliadku, aby ste si sami overili výnimočnú polohu a kvalitu tejto nehnuteľnosti.
Tento objekt je niečo výnimočné – presvedčte sa sami.
Parametre nehnuteľnosti
| Vek | Nad 50 rokov |
|---|---|
| Dispozícia | 5+1 |
| PENB | A - Mimoriadne úsporné |
| Plocha pozemku | 404 m² |
| Cena za jednotku | 6 949 € / m2 |
| Stav | Novostavba |
|---|---|
| Číslo inzerátu | 979790 |
| Úžitková plocha | 136 m² |
| Celkové poschodia | 2 |
Čo táto nehnuteľnosť ponúka?
| Parkovanie | |
| Terasa |
| MHD 2 minúty pešo |
V okolí nehnuteľnosti nájdete
Stále hľadáte to pravé?
Nastavte si strážneho psa. Ponuky vybrané na mieru dostanete súhrnne 1× denne e-mailom. S Premium profilom máte po ruke rovno 5 strážcov a keď sa niečo objaví, informujú vás obratom.




























