
Prenájom bytu 1+kk • 30 m² bez realitkyMannheim Mannheim Baden-Württemberg 68165
Mannheim Mannheim Baden-Württemberg 68165MHD 3 minúty pešo • VýťahTento vysoko kvalitne zariadený apartmán je v prvom vlastníctve a zaujme premysleným pôdorysom o výmere 30 štvorcových metrov, nachádzajúcim sa na zadnom dvore v obľúbenom meste Schwetzingen.
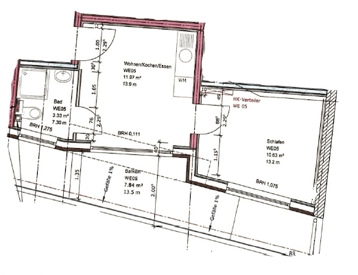
Byt sa nachádza v 2. poschodí nového viacrodinného domu a ponúka priamy vstup na juhozápadný balkón, ktorý je orientovaný na pokojný, neviditeľný vnútorný dvor.
Vysokokvalitná vstavaná kuchyňa je harmonicky začlenená do obývacej izby a vybavená značkovými spotrebičmi. Kúpeľňa s denným svetlom disponuje moderným vybavením vrátane sprchy umiestnenej tesne pri podlahe a štýlovými sanitárnymi zariadeniami.
Apartmán je súčasťou energeticky efektívnej novostavby s modernou technológiou budovy. Kúrenie je zabezpečené podlahovým kúrením, ktoré napája tepelné čerpadlo. Zásobovanie teplou vodou prebieha decentralizovane elektronickými prietokovými ohřívačmi. Byt je pohodlne dostupný výťahom. Trojité izolačné okná zabezpečujú vysokú ochranu pred hlukom aj tepelnými stratami.
Minimálna doba prenájmu:
- 6 mesiacov
Atraktívny park na Friedrichsplatz s arkádami a fontánová záhrada pri mannheimskom Wasserturm sa nachádzajú len približne 500 metrov od obytného domu. Hlavná stanica, pešia zóna, ružená záhrada, Národné divadlo a Luisenpark sú taktiež veľmi dobre dostupné pešo.
Byt je výborne napojený na verejnú dopravu, diaľnicu, mannheimský letisko a všetky obchody dennej potreby sú v priebehu niekoľkých minút dosiahnuteľné.
Pre starších obyvateľov je lokalita ideálna vďaka centrálnej polohe v tesnej blízkosti kultúrnych zariadení, zdravotnej starostlivosti a podobne.
Vybavenie (KfW 55 – štandard energeticky efektívneho domu):
• Ekologická konštrukcia s dreveným rámom
• Tepelná izolácia KfW-55 EE
• Trojité izolačné sklené okná
• Elektrické žalúzie
• Výťah
• Uzamykací a domofónový systém
• Tepelné čerpadlo / fotovoltaika
• Podlahové kúrenie vo všetkých izbách
• Kúpeľňové vybavenie od značkového výrobcu
• Parkety z masívneho dreva
Apartmán je kompletne zariadený a pripravený na nasťahovanie – ideálny pre dochádzajúcich zamestnancov, expatov alebo študentov.
Vybavenie spálne:
• Posteľ (140 x 200 cm) s roštom, matracou a ochranou matrace
• Posteľná bielizeň
• Skriňa
• Písací stôl so stoličkou
• Nočná lampa a čítacia lampa
• Žalúzie a plisované závesy
Vysokokvalitná vstavaná kuchyňa so zabudovaným sporákom, chladničkou (s mrazničkou), umývačkou riadu, rúrou, práčkou so sušením, varnou kanvicou, kávovarom, toustem, kuchynským riadom na varenie i stolovanie, príbormi, pohármi, hrncami, panvicami, kuchynskými pomôckami, jedálenským stolom so stoličkami a prístupom na balkón.
Kúpeľňa s denným svetlom so sprchou, WC a uterákmi.
Ďalšie vybavenie:
• Vysávač, metla, mop, žehlička a sušák na bielizeň
Do termínu nasťahovania (od 1. februára) budú ešte doplnené nasledujúce prvky:
• Plisé závesy v kúpeľni a spálni
• Sprchové priečky
• Wenko WC-kombinácia s odpadkovým košom pre kúpeľňu
• Kryty na zásuvky
• Podlahová krytina a zábradlie na balkóne
• Balkónový nábytok a vonkajšia skriňa
Parametre nehnuteľnosti
| Vek | Nad 50 rokov |
|---|---|
| Stav | Novostavba |
| Poschodie | 2. poschodie z 3 |
| PENB | A - Mimoriadne úsporné |
| Cena za jednotku | 32 € / m2 |
| Dostupné od | 1. 3. 2026 |
|---|---|
| Dispozícia | 1+kk |
| Číslo inzerátu | 978604 |
| Úžitková plocha | 30 m² |
Čo táto nehnuteľnosť ponúka?
| Balkón | |
| MHD 3 minúty pešo |
| Výťah |
V okolí nehnuteľnosti nájdete

Prenájom bytuWilhelm-Wundt-Straße 1-5 Mannheim Neckarau Baden-Württemberg 68199- 2+kk
- 68 m²
850 € + 200 €
Prenájom bytuSchützenstraße 42 Ludwigshafen am Rhein Mitte Rheinland-Pfalz 67061- 2+1
- 65 m²
850 € + 150 €


Stále hľadáte to pravé?
Nastavte si strážneho psa. Ponuky vybrané na mieru dostanete súhrnne 1× denne e-mailom. S Premium profilom máte po ruke rovno 5 strážcov a keď sa niečo objaví, informujú vás obratom.













