
Predaj bytu 4+1 • 98 m² bez realitkyAnna-Lauter-Straße 4 Karlsruhe Südstadt Baden-Württemberg 76137
Anna-Lauter-Straße 4 Karlsruhe Südstadt Baden-Württemberg 76137MHD 5minút pešo • Výťah • GarážTáto udržiavaná a svetlá 4-izbová bytosť sa nachádza v obytnom komplexe Citypark Karlsruhe-Südstadt v tichom, bezbariérovom prostredí. Nachádza sa v 3. poschodí viacrodinného domu z roku 2008 a je prístupná výťahom.
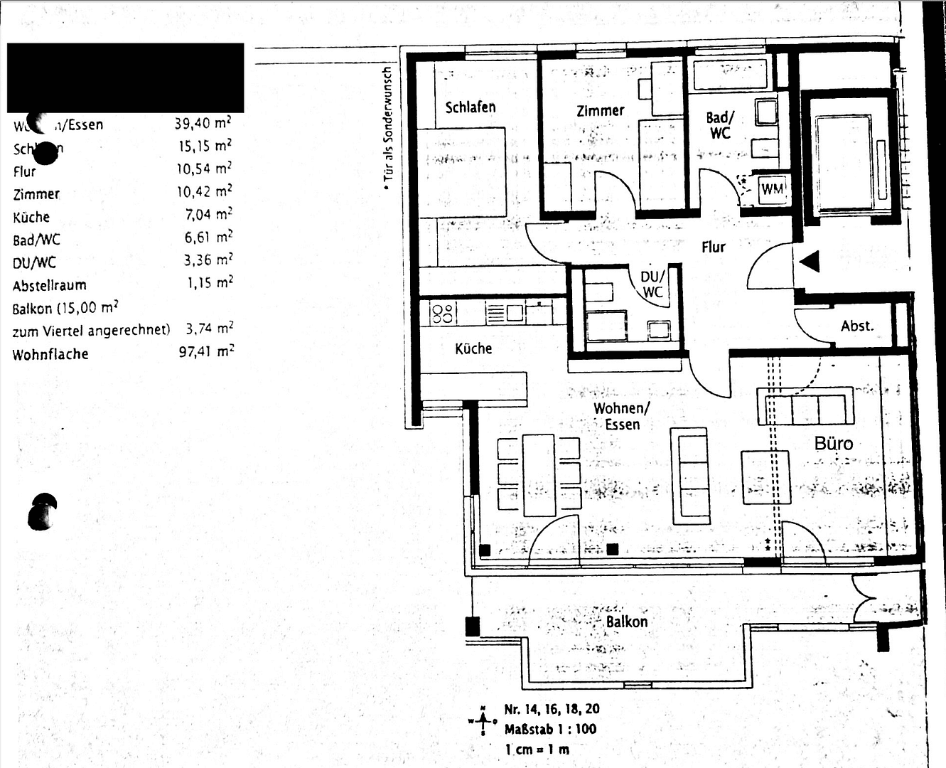
Obytná plocha je približne 97,41 m² a ponúka funkčné dispozičné riešenie. Byt je vhodný pre páry, rodiny aj pre investorov.
Obývacia a jedálenská časť je priestranná a disponuje prístupom na južný balkón. Zabudovaná kuchyňa je zahrnutá v kúpnej cene. Tri ďalšie izby sú k dispozícii na flexibilné využitie ako spálňa, detská izba alebo pracovňa.
Sú dve kúpeľne: kúpeľňa s prirodzeným denným osvetlením, vaňou a WC a ďalšia kúpeľňa so sprchou a WC.
Medzi vybavenie patria parketové podlahy, podlahové kúrenie a bezbariérový prístup. Do kúpnej ceny je zahrnuté aj miesto v podzemnej garáži. Navyše sú k dispozícii pivnica, sklad pre bicykle a spoločná práčovňa.
Obytný komplex je udržiavaný a ponúka dobrú dostupnosť k obchodným príležitostiam, materským školám a verejnej doprave.
Byt sa nachádza v jednej z najobľúbenejších lokalít v Karlsruhe – pokojne a zároveň centrálne. Obchody, MHD, školy, materské školy a parky sú v pešej vzdialenosti. Südstadt zaujme vybudovanou infraštruktúrou a vysokou kvalitou života.
Priestranná, svetlá obývacia/jedálenská časť s prístupom na južný balkón
Moderná zabudovaná kuchyňa zahrnutá v cene
3 ďalšie izby (flexibilne využiteľné ako spálňa, detská izba, kancelária)
Dve plnohodnotné kúpeľne:
1 veľká kúpeľňa s denným osvetlením, vaňou a WC
1 ďalšia kúpeľňa so sprchou a WC
Miesto v podzemnej garáži (zahrnuté)
Pivnica, sklad pre bicykle, práčovňa
Bezbariérový prístup cez výťah
Pokojné, udržiavané obytné prostredie s veľmi dobrou infraštruktúrou
Rýchly internet (cez kábel, DSL a optické vlákno až do bytu, najnovšie 1 Gbit)
Balkónové solárne elektráreň pre vlastnú výrobu elektriny
Byt sa ponúka formou dražby.
Uvádzaná cena 500 000 € predstavuje východiskovú cenu.
V prípade záujmu vás pozývame, po predchádzajúcej dohode, na prehliadku. Následne môžete podať písomnú ponuku na kúpu.
Parametre nehnuteľnosti
| Vek | Nad 50 rokov |
|---|---|
| Stav | Dobrý |
| Poschodie | 3. poschodie |
| PENB | B - Veľmi úsporné |
| Cena za jednotku | 5 102 € / m2 |
| Dostupné od | 22. 1. 2026 |
|---|---|
| Dispozícia | 4+1 |
| Číslo inzerátu | 977578 |
| Úžitková plocha | 98 m² |
Čo táto nehnuteľnosť ponúka?
| Balkón | |
| Pivnica | |
| Výťah |
| Bezbariérový prístup | |
| Garáž | |
| MHD 5 minút pešo |
V okolí nehnuteľnosti nájdete
Stále hľadáte to pravé?
Nastavte si strážneho psa. Ponuky vybrané na mieru dostanete súhrnne 1× denne e-mailom. S Premium profilom máte po ruke rovno 5 strážcov a keď sa niečo objaví, informujú vás obratom.
















