
Prenájom bytu 3+1 • 70 m² bez realitky, Šlezvicko-Holštajnsko
, Šlezvicko-HolštajnskoMHD 1 minúta pešo • ParkovaniePrvý prenájom po rekonštrukcii v Pinneberge, bez provízií!
Čistý nájom: 1280 Eur
Vedľajšie náklady: 180 Eur
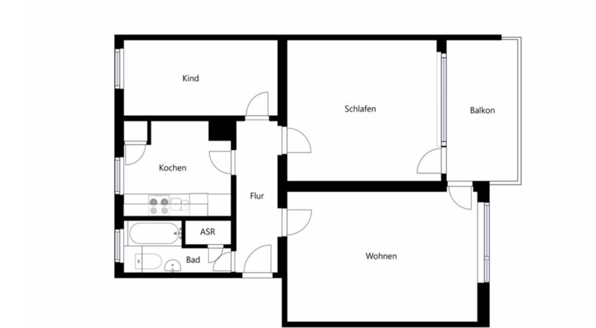
Tento udržiavaný a moderný 3-izbový byt s balkónom sa nachádza v treťom poschodí bytového domu postaveného v roku 1956 v centrálnom Pinneberge. Byt zaujme svojou svetlou, priateľskou atmosférou, vysoko kvalitným vybavením a premysleným rozložením priestorov.
Vybavenie a rozloženie:
Byt o rozlohe približne 70 m² sa skladá z jednej spálne, obývačky, kúpeľne s oknom a kuchyne.
Ďalšia izba môže byť flexibilne využitá ako detská izba, kancelária alebo jedálenská miestnosť.
Obývacie a spálňové izby sú vybavené kvalitným vinylom v dizajne dubu, čo vytvára modernú a útulnú atmosféru.
Kúpeľňa bola zrekonštruovaná a prezentuje sa svetlá a moderná.
Vybavená kuchyňa disponuje keramickou varnou doskou, rúrou, drezom, práčkou a chladničkou.
Zvláštnosti:
• Balkón orientovaný na západ s markízou
• Zrekonštruovaná kúpeľňa s oknom
• Vysokokvalitná laminátová podlaha (dizajn dubu)
• Moderná vybavená kuchyňa vrátane spotrebičov
• Dve úložné miestnosti
• Spoločná práčovňa a sušiareň, ako aj pivnica na bicykle
• Súkromné parkovacie miesto priamo pred objektom
Ďalšie:
• Kaucia: 3000 Eur
• Dostupnosť: okamžitá
Pre posúdenie nájomnej žiadosti vás prosím o niekoľko informácií o vašej finančnej situácii (napr. príjem, pracovný pomer).
Poloha:
Byt sa nachádza v centrálnom, no zároveň pokojnom rezidenčnom sídlisku Pinnebergu.
Supermarkety, pekárne, reštaurácie a nákupné centrum sú dostupné pešo za pár minút.
Pinnebergska stanica ponúka rýchle spojenie do Hamburgu – ideálne pre dojížďaných.
Školy, materské školy, parky a športoviská sú umiestnené v bezprostrednej blízkosti.
Vybavenie a rozloženie:
Byt o rozlohe približne 70 m² sa skladá z jednej spálne, obývačky, kúpeľne s oknom a kuchyne.
Ďalšia izba môže byť flexibilne využitá ako detská izba, kancelária alebo jedálenská miestnosť.
Obývacie a spálňové izby sú vybavené kvalitným vinylom v dizajne dubu, čo zaručuje modernú, útulnú atmosféru.
Kúpeľňa bola zrekonštruovaná a pôsobí svetlo a moderne.
Vybavená kuchyňa je vybavená keramickou varnou doskou, rúrou, drezom, práčkou a chladničkou.
Parametre nehnuteľnosti
| Vek | Nad 50 rokov |
|---|---|
| Stav | Po rekonštrukcii |
| Poschodie | 3. poschodie z 3 |
| PENB | F - veľmi nehospodárne |
| Cena za jednotku | 18 € / m2 |
| Dostupné od | 11. 1. 2026 |
|---|---|
| Dispozícia | 3+1 |
| Číslo inzerátu | 977566 |
| Úžitková plocha | 70 m² |
Čo táto nehnuteľnosť ponúka?
| Balkón | |
| Parkovanie |
| Pivnica | |
| MHD 1 minúta pešo |
V okolí nehnuteľnosti nájdete
Stále hľadáte to pravé?
Nastavte si strážneho psa. Ponuky vybrané na mieru dostanete súhrnne 1× denne e-mailom. S Premium profilom máte po ruke rovno 5 strážcov a keď sa niečo objaví, informujú vás obratom.







