
Predaj domu • 136 m² bez realitky, Bavorsko
, BavorskoMHD 1 minúta pešo • Parkovanie • GarážTento atraktívny, samostatne stojaci rodinný dom bol postavený v rokoch 1959/1960 na približne 544 m² rohovom pozemku v masívnej konštrukcii. Dom ponúka skvelú príležitosť vytvoriť si útulný domov podľa vlastných predstáv.
Očarí vás svetlé miestnosti a jeho solídna konštrukcia. S priestrannou celkovou obytnou plochou 136 m² v prízemí a nadzemí, ako aj s približne 26 m² rezervačných obytných priestorov v podkroví, poskytuje dom a pozemok ideálny základ pre rodinné bývanie.
Alternatívne ponúka dispozícia s dvoma kúpeľňami v prízemí a nadzemí možnosť zariadenia dvoch samostatných bytov.
Kľudná poloha pozemku, zabudnutá veľká záhrada a približne 12 m² priestranná terasa poskytujú veľa priestoru na oddych, záhradkárčenie a hravé možnosti pre deti.
Tento priestranný objekt bol počas rokov vždy starostlivo udržiavaný a opracovávaný. V októbri 2005 boli okná vymenené za plastové okná s dvojitým zasklením a roletami a v roku 2019 bola namontovaná nová, moderná vstupná dvere.
V roku 2015 bola postavená nová, 37 m² veľká dvojgaráž v masívnej konštrukcii so sedlovou strechou a elektrickými garážovými vratami. Medzi prednosti patrí výška vjazdu s 2,70 m, prirodzené osvetlenie prostredníctvom dvoch priestranných okien a druhé garážové dvere orientované smerom do záhrady.
Dom je aktuálne vykurovaný nočnými akumulačnými pecami.
Aby bol dom prispôsobený dnešným nárokom na energetické a moderné bývanie, je potrebné zvážiť vykonanie rôznych modernizačných a renovačných prác na dome. Rozsah týchto prác závisí od individuálnych potrieb a požiadaviek.
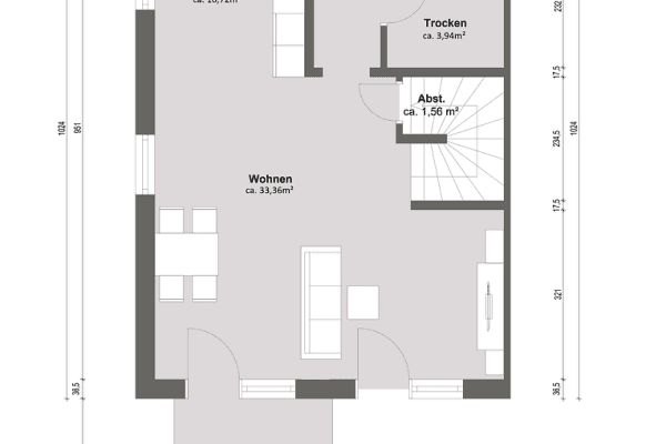
Poschodia sú usporiadané nasledovne:
Prízemie:
- Uzavretý vstupný priestor, odkiaľ vedú masívne drevené schody do nadzemia a odtiaľ aj prístup do suterénu
- Priestranná, svetlá obývačka spojená s kuchyňou (orientácia približne na juh) s oddelenou, samostatnou spižiarňou (s oknom)
- Obývacia izba s prístupom na približne 12 m² veľkú juhozápadnú terasu (plocha terasy nie je započítaná do uvádzanej obytnnej plochy)
- Spálňa
- Detská izba, prípadne pracovňa
- Kúpeľňa s vaňou, umývadlom, WC a oknom
Nadzemie:
- Chodba s predsieňou a šatníkom
- Priestranná obývacia izba s prístupom na balkón
- Spálňa
- Kuchyňa s jedálenským kútom
- Ďalší priestor s podkrovným oknom, vhodný ako malá detská izba alebo pracovňa
- Kúpeľňa s vaňou, umývadlom, WC a podkrovným oknom
Podkrovie:
- Prístup prostredníctvom špirálových schodov
- Chodba s obojstranným prístupom do úložných priestorov
- Štúdio či rezervačný obytný priestor o rozlohe približne 26 m²
Suterén:
- Práčovňa
- Ďalšie štyri miestnosti vhodné ako dielne a skladové priestory
Suterén je navyše výhodne dostupný aj z vonkajších schodov.
Rodinný dom sa nachádza v žiadanej, kľudnej lokalite na juhu Ottobeurenu, v príjemnom, rodinne orientovanom prostredí.
Mesto Ottobeuren s jeho slávnou barokovou bazilikou sa nachádza približne 11 km juhovýchodne od Memmingenu. Ottobeuren má približne 8 000 obyvateľov a disponuje vynikajúcou infraštruktúrou. V mieste nájdete všetky zariadenia pre každodenné potreby – početné možnosti nákupov, lekárne, banky, rôzne reštaurácie, športoviská a aj vonkajší bazén. Mesto má navyše širokú ponuku zdravotnej a terapeutickej starostlivosti, vrátane nemocnice. Pre rodiny s deťmi sú k dispozícii všetky potrebné zariadenia od materskej školy až po gymnázium.
Mesto ponúka celoročne bohatý kultúrny program a má množstvo spolkov. Rozsiahla rekreačná oblasť s množstvom peších a turistických trás prispieva k vysokému hodnote voľnočasových aktivít a oddychu. Blízkosť južného Allgäu a oblasti Bodamského jazera otvára ďalšie možnosti oddychu v prírode, v jazerách a horách.
Vďaka dobrej dopravnej dostupnosti do všetkých smerov je rýchly prístup do väčších miest v okolí, ako sú Kempten, Ulm či Mníchov. Letisko Memmingen je vzdialené len 12 km.
Keďže ide o súkromný predaj, neplatí sa žiadna provízia makléra.
Všetky údaje boli zostavené podľa najlepších vedomostí a na základe informácií, ktoré sme obdržali. Zodpovednosť za správnosť, úplnosť a aktuálnosť týchto údajov je vylúčená.
Radi Vám po dohodnutí termínu ponúkneme prehliadku. Preferujeme záujemcov s predložením aktuálneho potvrdenia o financovaní.
Tešíme sa na Vašu požiadavku.
Parametre nehnuteľnosti
| Vek | Nad 50 rokov |
|---|---|
| Stav | Dobrý |
| PENB | G - Mimoriadne nehospodárne |
| Plocha pozemku | 544 m² |
| Cena za jednotku | 3 493 € / m2 |
| Dostupné od | 13. 1. 2026 |
|---|---|
| Číslo inzerátu | 976692 |
| Úžitková plocha | 136 m² |
| Celkové poschodia | 2 |
Čo táto nehnuteľnosť ponúka?
| Balkón | |
| Garáž | |
| MHD 1 minúta pešo |
| Pivnica | |
| Parkovanie | |
| Terasa |
V okolí nehnuteľnosti nájdete
Stále hľadáte to pravé?
Nastavte si strážneho psa. Ponuky vybrané na mieru dostanete súhrnne 1× denne e-mailom. S Premium profilom máte po ruke rovno 5 strážcov a keď sa niečo objaví, informujú vás obratom.











