
Predaj domu 4+kk • 114 m² bez realitky, Bádensko-Wurttembersko
V novom, centrálnom stavebnom území v Dettingen an der Iller vznikne od jari 2026 11 moderných radových a radových stredových domov.
Jednou z výrazných kvalitatívnych čŕt tejto novostavby je udržateľná stavebná technológia:
Všetky domy sú postavené podľa štandardu KfW-40 a budú certifikované razítkom QNG-Plus. To zaručuje energeticky efektívne bývanie, nízke prevádzkové náklady a dlhodobé udržiavanie hodnoty nehnuteľnosti. Navyše bude každý dom vybavený fotovoltaickou inštaláciou – ďalší prínos pre environmentálne uvedomelé, orientované na budúcnosť bývanie.
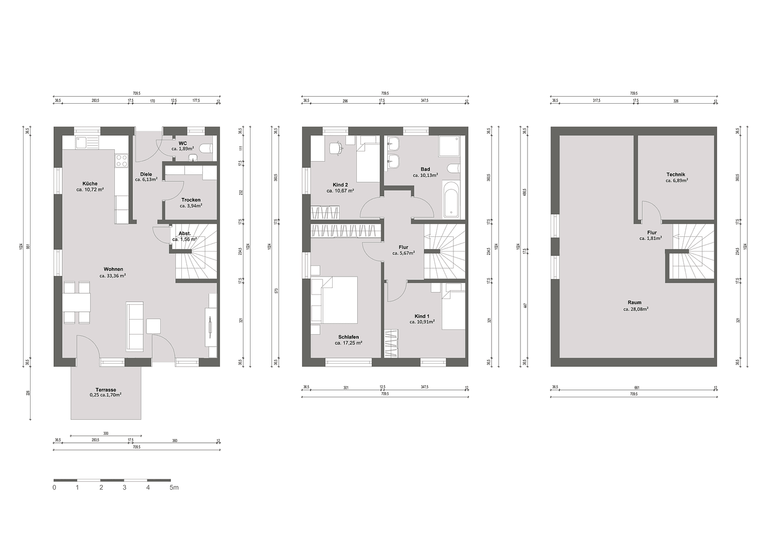
Bytové domy sa stavajú bez pivnice, avšak vďaka premyslenému usporiadaniu s 4,5 až 6,5 obytnými miestnosťami (podľa zvolenej špeciálnej výbavy) a samostatným úložným priestorom ponúkajú dostatok miesta pre individuálne životné predstavy. Či už ako priestranný rodinný domov alebo moderné riešenie pre bývanie a prácu pod jednou strechou – tieto domy prinášajú flexibilitu pre každú životnú etapu.
Otvorený obývací a jedálenský priestor tvorí srdce domu a láka k oddychu. K dispozícii máte súkromné záhrady a terasy – ideálne na príjemné chvíle vonku.
Pokojná poloha priamo v srdci obce, kombinovaná s krátkymi vzdialenosťami ku všetkým dôležitým zariadeniam, robí tento projekt mimoriadne atraktívnym riešením bývania – ako pre rodiny s deťmi, tak aj pre páry či pracovných ľudí.
Ak sme vzbudili váš záujem, neváhajte nás kontaktovať. Tešíme sa na vašu správu.
V srdci Dettingen an der Iller, idylickej obce v okrese Biberach (Baden-Württemberg), vzniká atraktívne novostavbové územie, ktoré bude od leta 2025 uvoľnené na výstavbu. Centrálna poloha územia spája výhody vidieckeho pokoja s vynikajúcim napojením na regionálnu infraštruktúru.
Stavebné územie sa nachádza priamo v centre obce a je obklopené ustáleným obytným prostredím a upravenými záhradami. Obchody na každodenné potreby, pekáreň, materská škola a miestna základná škola sú dostupné pešo za pár minút. Aj sociálne zariadenia, ihriská a možnosti voľnočasových aktivít sú pohodlne dostupné, čo lokalitu robí obzvlášť atraktívnou pre rodiny.
Výhodná dopravná poloha s pripojením na spolkovú cestu a diaľnicu umožňuje rýchly prístup do miest Memmingen, Ulm a Biberach an der Riß. Verejné dopravy, ako sú autobusové spoje, zaisťujú dobré napojenie na regionálnu dopravnú sieť.
Krajinná scenéria pozdĺž rieky Iller ponúka príležitosť na dlhé prechádzky, cyklistické aj turistické túry.
Prírodné prostredie v spojení s živou dedinskou komunitou robí z tohto nového stavebného územia ideálne miesto pre udržateľné a rodinne priateľské bývanie.
Hlavné údaje na prvý pohľad:
• KfW 40 štandard
• QNG-Plus certifikovaný
• Izolované tehly
• Obytná plocha: 114 m² (voliteľne až 137 m²)
• Počet izieb: 4,5 (voliteľne až 6,5)
• Vinylové podlahy a dlaždice
• Premyslená dispozícia s úložným priestorom
• Veľký otvorený obývací/jedálenský priestor
• Rozšíriteľný podkrovný priestor (voliteľne prístupný schodiskom)
• Vaňa a sprchovací kút
• Garáž (voliteľne)
Technické detaily:
• Trojsklo plastových okien
• Vzduchové tepelné čerpadlo
• Podlahové kúrenie
• Elektrické rolety
• Fotovoltaická inštalácia
• Batériové úložisko (voliteľne)
Možnosti voliteľnej výbavy (príklady špeciálnych požiadaviek):
• Zrekonštruovaný podkrovný priestor
• Batériové úložisko pre fotovoltaickú inštaláciu
• Samostatná garáž
Výsadba trávnika nie je zahrnutá.
Plánovaný začiatok výstavby je na jar 2026; plánované dokončenie v II. štvrťroku 2027
• Energetický preukaz ešte nie je k dispozícii, pretože ide o novostavbu
• Tešíme sa na vašu správu
Neváhajte nás kontaktovať na tel. čísle 08395 910769 0
Prevádzkový pokoj 2025 / 2026
Prosím, vezmite na vedomie, že budeme v prevádzkovom pokoji od 22. decembra 2025 do 6. januára 2026 vrátane.
Od 7. januára 2026 vám budeme opäť k dispozícii ako obvykle.
Impresum
Max Wild GmbH
Leutkircher ulica 22
88450 Berkheim
Telefón: +49 8395 920-0
Telefax: +49 8395 920-650
info@maxwild.com
www.maxwild.com
Zodpovední jednatelia:
Max Wild, Roland Wild, Elmar Wild, Jochen Wild, Christian Wild
Okresný súd: Okresný súd v Ulme
Registračné číslo: HRB 640308
Identifikačné číslo pre DPH podľa § 27 a zákona o DPH: DE 144891755
Odpustenie zodpovednosti: Napriek dôkladnej obsahovej kontrole nezodpovedáme za obsah externých odkazov. Za obsah prepojených stránok zodpovedajú výlučne ich prevádzkovatelia.
https://www.maxwild.com/impressum/
Parametre nehnuteľnosti
| Vek | Nad 50 rokov |
|---|---|
| Dispozícia | 4+kk |
| Úžitková plocha | 114 m² |
| Cena za jednotku | 3 991 € / m2 |
| Stav | Novostavba |
|---|---|
| Číslo inzerátu | 974239 |
| Plocha pozemku | 194 m² |
Čo táto nehnuteľnosť ponúka?
| Parkovanie | |
| Terasa |
| MHD 1 minúta pešo |
V okolí nehnuteľnosti nájdete
Stále hľadáte to pravé?
Nastavte si strážneho psa. Ponuky vybrané na mieru dostanete súhrnne 1× denne e-mailom. S Premium profilom máte po ruke rovno 5 strážcov a keď sa niečo objaví, informujú vás obratom.









