
Predaj domu • 263 m² bez realitky, Bádensko-Wurttembersko
Popis objektu
Predstav si, že prídeš domov – a za ulicou sa náhle otvára malý, chránený svet prírodného kameňa, dreva a zelene: dom s históriou, priestrannosťou a tým zriedkavým pocitom „nakoniec doma“. Presne to ponúka tento zrekonštruovaný samostatne stojaci obytný dom (rok výstavby cca 1800) – súkromne od súkromného, bez provízie makléra, s priamou komunikáciou s majiteľmi.
Fakty na prvý pohľad:
Obytná plocha: cca 263 m²
Pozemok: cca 989 m², orientácia na juhozápad
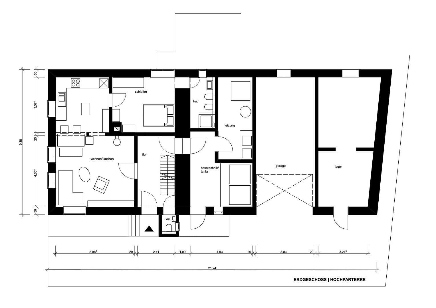
Izby: 8, spálne: 3, kúpeľne: 3
Typ domu: samostatne stojaci rodinný dom s prístreškovým bytom
Poschodia: 3
Bez ochrany pamiatok
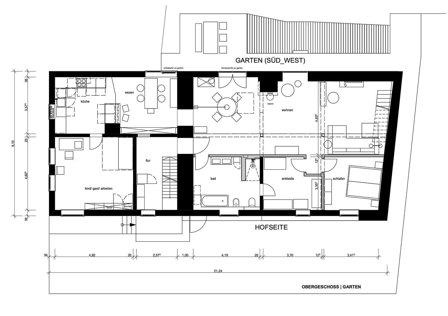
Vyzdvihnutia: veľké obytné atelié/obývacia izba cca 12 × 5 m s výškou stropu cca 4,5 m, prírodné kamenné múry a viditeľná konštrukcia, rozsiahla záhrada s ovocnými stromami, terasa, garáž + 2 parkovacie miesta
Fotovoltaika: 9,88 kWp, garantovaná odmena za odber do roku 2036 (0,123 € za kWh dodanú do siete)
Kúrenie: nízkoteplotná olejová centrálna kúrenie (rok výstavby 2004) + 2 moderné drevené kachle ako doplnkový zdroj tepla
A potom ten okamih vo veľkom, svetlom zalitom obytnom priestore: vysoké stropy, výhľad do zelene, pokoj – domov, ktorý nielenže vidíš, ale aj cítiš.
Popis lokality
Kto túži po každodennom živote, ktorý je zároveň pokojný a praktický, zamiluje si túto lokalitu: V starom jadre obce Wössingen (obec Walzbachtal) bývaš zasadený v rodinne prívetivom prostredí – a napriek tomu máš všetko na dosah ruky, čo robí život príjemným. A ako špeciálnosť: mimoriadne veľká záhrada s lúkou ovocných stromov priamo v srdci obce pripomína súkromný kúsok pôdy.
Infraštruktúra a dostupnosť:
S-Bahn „Wössingen Ost“ cca 10 minút pešo – priame spojenie smerom k Karlsruhe (okrem iného S4 / RE45)
Diaľnice A5, A6, A8 dostupné za pár minút
V obci/piešo: základná škola, materské školy, lekári, možnosti nakupovania
V bezprostrednom okolí okrem iného: 2 pekárne, 2 reštaurácie, kaviareň, lekár, radnica, taktiež zeleň/parkové plochy, miesta pre prijímanie zásielok pošty, fitness centrum, knižnica, fyzioterapeut
Príroda priamo za dverami: polia, lúky, lesy – ako aj golfové ihrisko v golfovom klube Johannesthal v blízkosti
Tu získaš to, čo sa dnes stalo zriedkavým: život v dedinskom jadre s pravým pokojom, dobrou dostupnosťou a pocitom, že voľný čas nemusíš plánovať – začína priamo pred dverami.
Poznámky k vybaveniu
Tento dom rozpráva príbeh – ale žije v súčasnosti: kamenné múry, viditeľná konštrukcia a zároveň vybavenie, ktoré robí každodenný život pohodlným. Obzvlášť pôsobivé je veľké obytné atelié/obývacia izba (cca 12 × 5 m, výška cca 4,5 m) – priestor pre svetlo, kreativitu, oslavy a ten zvláštny pocit „wow“, ktorý sa ťažko napodobňuje.
Vybavenie a dispozícia:
Hlavný byt: cca 187 m², 6 izieb
Prístreškový byt: cca 55 m², 2 izby (ideálny pre viacgeneračné bývanie, domácu kanceláriu, starostlivosť alebo hostí)
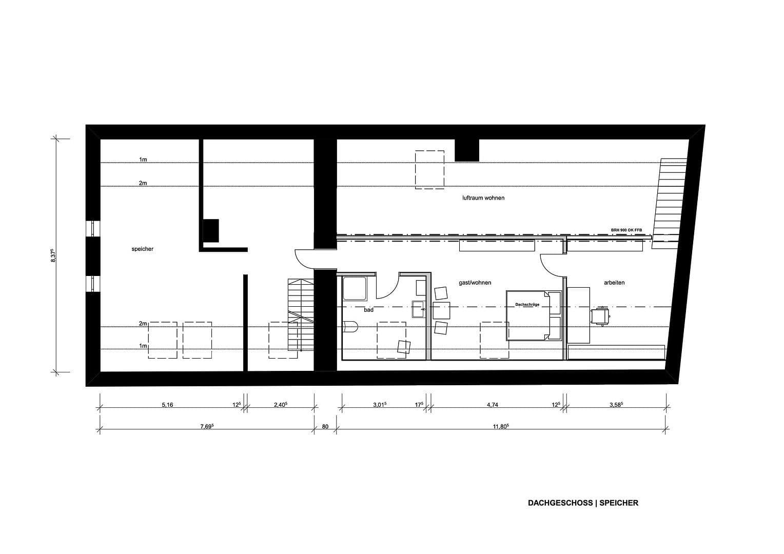
Okrem toho: suterénne priestory a podkrovie (s potenciálom na prestavbu podkrovia)
Poschodie pod strechou môže byť využité ako priestor pre hostí/prácu s vlastnou kúpeľňou
Dubový parket v obytných a spálňových miestnostiach
3 zmodernizované kúpeľne (rekonštrukcie v rokoch 2012 a 2018)
Kúrenie: Vitola-200 nízkoteplotná olejová centrálna kúrenie (rok výstavby 2004); pravidelne udržiavané a podľa aktuálnych poznatkov plne funkčné
2 moderné drevené kachle pre útulné doplnkové teplo
Izolácia: horná podlaha/Dach už izolovaná minerálnou bavlnou
PV inštalácia: 9,88 kWp, odmena za odber do roku 2036
Terasa s 2 pavilónmi (flexibilný tieň/ochrana proti dažďu)
Internet aktuálne: Vodafone Kabel 250 Mbit/s; Telekom DSL 6 Mbit/s (podľa vás). Optické vlákno: rozšírenie cez „Deutsche Glasfaser“ plánované po roku 2026 (plány/časový horizont sa môžu zmeniť).
Energetická poznámka:
Energetická trieda, Ročná konečná energetická spotreba (kWh/m²a) Typické príklady
...
D 100 – 130 Veľmi dobre zrekonštruované staršie domy
E 130 – 160 Staršie domy, zvýšená spotreba
F 160 – 200 Staršie domy so staršími systémami
G 200 – 250 Staršie domy s vysokou spotrebou
Vyhotovený energetický preukaz: 224,64 kWh/(m²·a) = Trieda G
Skutočná spotreba: Ø 111–113 kWh/(m²·a) (priemer za posledné 3 roky; závisí od správania užívateľa, okrem iného využívanie drevených kachlí). Rozhodujúce sú údaje v energetickom preukaze.
Na záver zostáva najmä pocit: priestor na život, priestor na dýchanie – a domov s charakterom, ktorý sa nenájde každý deň.
Právna poznámka
Súkromný predaj bez maklérovej provízie. Všetky údaje v tejto inzercii vychádzajú z informácií/dokumentov majiteľov a poskytnuté bez záruky. Omyl a predaj medzičasom vyhradený. Energetický preukaz je k dispozícii na prehliadku.
Parametre nehnuteľnosti
| Vek | Nad 50 rokov |
|---|---|
| Číslo inzerátu | 976203 |
| Úžitková plocha | 263 m² |
| Celkové poschodia | 3 |
| Stav | Po rekonštrukcii |
|---|---|
| PENB | G - Mimoriadne nehospodárne |
| Plocha pozemku | 989 m² |
| Cena za jednotku | 2 662 € / m2 |
Čo táto nehnuteľnosť ponúka?
| Garáž | |
| MHD 2 minúty pešo |
| Parkovanie | |
| Terasa |
V okolí nehnuteľnosti nájdete
Stále hľadáte to pravé?
Nastavte si strážneho psa. Ponuky vybrané na mieru dostanete súhrnne 1× denne e-mailom. S Premium profilom máte po ruke rovno 5 strážcov a keď sa niečo objaví, informujú vás obratom.







































