
Predaj domu 5+kk • 238 m² bez realitkyIm Lerchenfeld 10, , Severné Porýnie - Westfálsko
Im Lerchenfeld 10, , Severné Porýnie - WestfálskoMHD 2 minúty pešo • ParkovaniePolovičný dvojdom v TOP polohe v Herdecke.
Mesto, školy a materské školy sú ľahko dostupné. Dom je čerstvo zrekonštruovaný a zaostávanie v modernizácii nie je problémom. Môže byť okamžite obsadený.
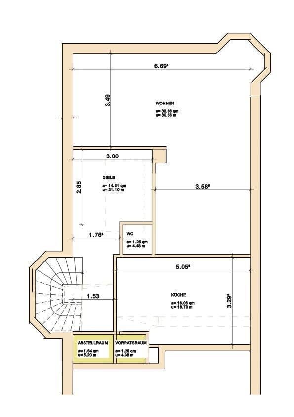
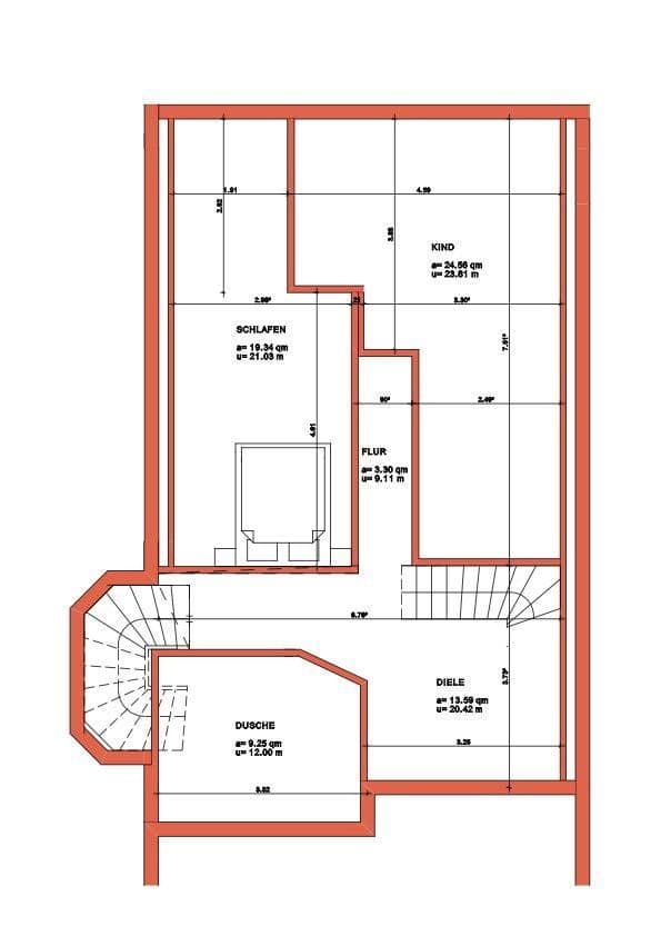
4 spálne
Veľká obývacia izba s prípojkou pre krb
Predsieň s šatníkom
Kuchyňa so zásobárom
3 kúpeľne a 1 hostínske WC (rekonštruované v rokoch 2016 a 2020)
3 vonkajšie parkovacie miesta
- Modernizácia 2009 (prízemie, 1. poschodie, 2. poschodie) / Modernizácia suterénu: 2020
- Obnova strechy: 2009
- Okná z roku 2009 a neskôr
- Elektrická inštalácia: 2009 (prízemie, 1. poschodie, 2. poschodie) / 2020 suterén
- Kúrenie: plynové kúrenie z roku 2009 so solárnou termikou (3 kolektory)
- Radiátory boli obnovené
- Podlaha pivnice izolovaná
Pokojná a rodinne prívetivá bočná ulica so skvele fungujúcim susedstvom. Do lesa je to len dve minúty. Materské školy, základná škola a školské centrum sú pešo ľahko dostupné (cca 10 minút). Centrum Herdecke je vzdialené cca 15 minút pešo.
Parametre nehnuteľnosti
| Vek | Nad 50 rokov |
|---|---|
| Stav | Po rekonštrukcii |
| Číslo inzerátu | 976159 |
| Úžitková plocha | 238 m² |
| Celkové poschodia | 2 |
| Dostupné od | 2. 1. 2026 |
|---|---|
| Dispozícia | 5+kk |
| PENB | F - veľmi nehospodárne |
| Plocha pozemku | 323 m² |
| Cena za jednotku | 2 437 € / m2 |
Čo táto nehnuteľnosť ponúka?
| Pivnica | |
| MHD 2 minúty pešo |
| Parkovanie | |
| Terasa |
V okolí nehnuteľnosti nájdete
Stále hľadáte to pravé?
Nastavte si strážneho psa. Ponuky vybrané na mieru dostanete súhrnne 1× denne e-mailom. S Premium profilom máte po ruke rovno 5 strážcov a keď sa niečo objaví, informujú vás obratom.






















