
Predaj bytu 3+1 • 104 m² bez realitkyDieckmannstr 41 Münster Gievenbeck Nordrhein-Westfalen 48161
•Efektívny: Iba 6,8 kWh/m²/rok konečná energetická spotreba
•Ušetríte 22 800 eur na provízii: Predaj priamo od majiteľa
•22 % lacnejšie ako byt so záhradou s rozlohou o 7 m² menší v okolí
•Čerstvo zrekonštruovaný: parkety brúsené a zafinišované, natreté
•Prehliadka? Zavolajte alebo pošlite WhatsApp: 01757644808
•K okamžitému nasťahovaniu: dostupný ihneď
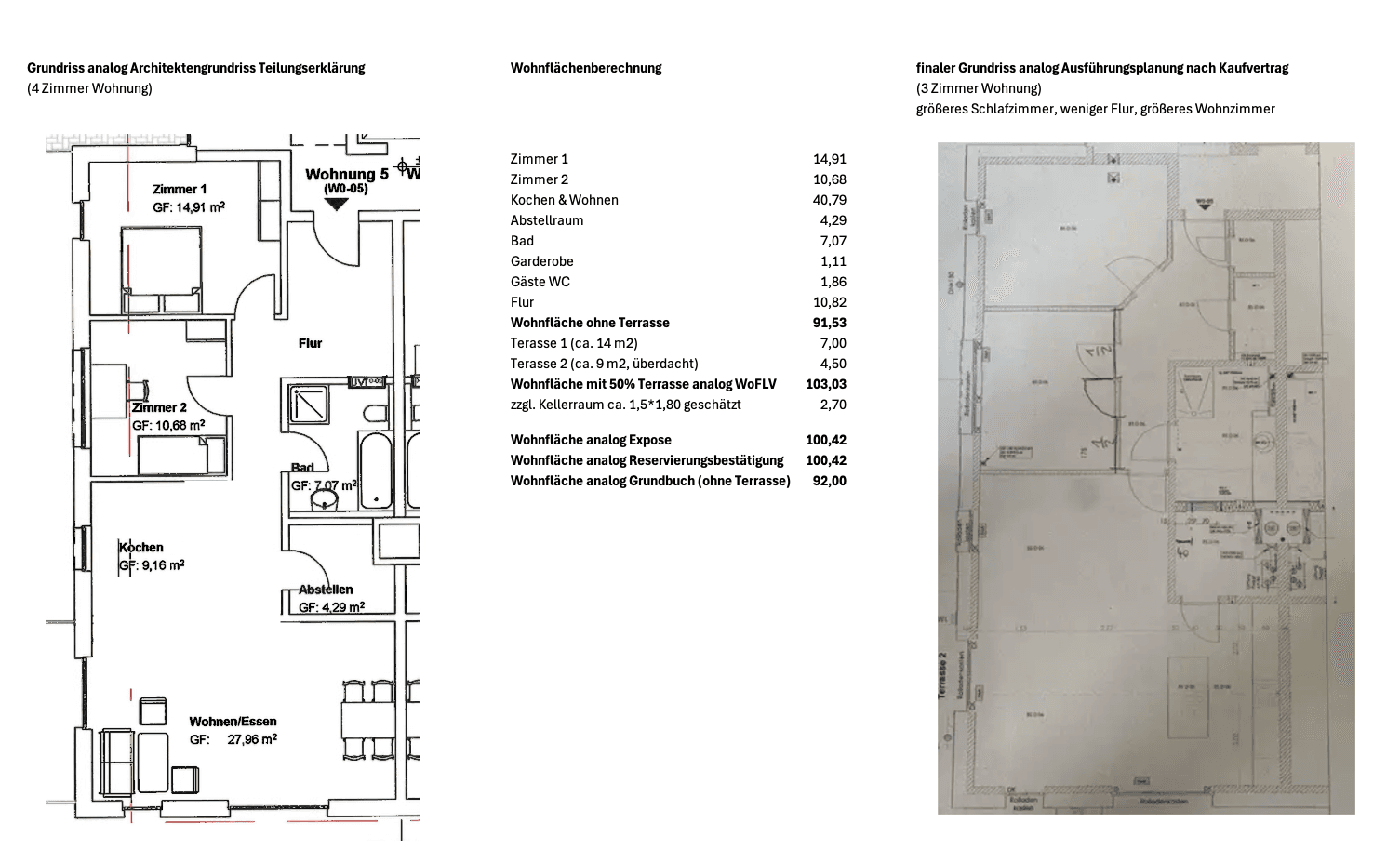
Záhradný byt s priesvitnou obývacou izbou, dizajnovou luxusnou kuchyňou s varným ostrovom od Siematic, snovou kúpeľňou s dažďovou sprchou od Grohe & vaňou, hosťovskym WC s umývadlom od Alape, podlahovými oknami, dubovými parketami, dvoma terasami a veľkou vlastnou záhradou na južnú/východnú stranu. Vďaka špeciálnemu užívaciemu právu patrí právo na užívanie záhrady s viac ako 100 m² výlučne majiteľovi alebo nájomcovi bytu so záhradou.
Byt sa nachádza v jednom z najväčších pasívnych domov v Európe, ktorý zabezpečuje všetku svoju potrebu tepla pre kúrenie a teplú vodu so solárnou termikou; kúpna cena bytu bola preto v tom čase približne o 30 % vyššia ako u porovnateľne veľkých bytov, vzhľadom na vysoký úsporný potenciál v oblasti energetických a prevádzkových nákladov. Je byt dosť teplý vďaka solárnej termike a tepelnej čerpadlu? Priemerná teplota v miestnostiach je cez 20 stupňov, dokonca aj v zime. Obytné prostredie je veľmi príjemné, lebo teplota medzi jednotlivými miestnosťami sa výrazne neliší.
Vďaka podlahovým oknám má obývacia izba svetlú a slnečnú atmosféru. Vo všetkých obytných priestoroch, chodbe a spálňach prispievajú k útulnému modernému pocitu z bývania moderne spracované dubové parkety, podlahové kúrenie a biele omietnuté steny. Sanita v kúpeľni a hosťovskom WC ponúka moderný dizajn, značkové produkty (Alape, Keramag, Grohe, Hansa), vyrobené na mieru zrkadlá a komfort v podobe kúpeľňovej vane a bezbariérovej dažďovej sprchy. Obe ďalšie miestnosti je možné výborne využiť ako spálňu a detskú, hosťovskú alebo home office/pracovňu. Okrem samostatnej pivničnej miestnosti je k dispozícii priestranné vonkajšie parkovacie miesto a kryté stojisko na bicykel.
Byt sa nachádza v pulzujúcom študentskom meste Münster, v mestskej časti Gievenbeck, v zelenej novej obytné štvrti s cyklotrasami a malým lesíkom na jogging v bezprostrednej blízkosti.
Automobilom sú diaľnica A1 a univerzitná klinika dosiahnuteľné za približne 5 minút, mesto a Aasee za približne 10 minút. Na bicykli dosiahnete mesto a Aasee za približne 15 minút. Zastávka „Nünningweg“ je vzdialená len asi 150 metrov, pričom dve autobusové linky (11 a 22) jazdia počas pracovných dní každých 20 minút smerom do centra.
Dva supermarkety (Rewe, Aldi) a jeden biosupermarket sú v pár minútach chôdze v bezprostrednej blízkosti, dve lekárne, Sparkasse, dve pekárne a kiosok s poštovým/DHL servisom sú vzdialené 500 metrov.
Záhrada a dve terasy
– priestranná záhrada s viac ako 100 m² užívateľskej plochy na výlučné použitie so zeleným trávnikom a bukovým živým plotom
– terasa 14 m² na východnej strane
– terasa 7 m² na južnej strane, čiastočne krytá, napr. na grilovanie
Dizajnová luxusná kuchyňa od Siematic s prirážkou 18 000 eur
– priestranný varný ostrov s výhľadom na záhradu/terasu a obývaciu/jedálenskú/TV miestnosť
– dizajnová indukčná doska & chladnička, sporák, umývačka riadu (Siemens)
– vystupujúca dizajnová odsávačka par (Novy, pôvodná cena 3000 eur)
Snová kúpeľňa a hosťovské WC
– bezbariérová dažďová sprcha (Keramag, Grohe), vaňa pre 2 osoby
– veľký dizajnový umývadlový pult (Alape) a dizajnové armatury (Hansa)
– automatická ventilácia v kúpeľni a hosťovskom WC
Podlahové a obkladové materiály
– vysoko kvalitné zafinišované 8 mm dubové parkety v obývacej izbe, spálni a chodbe
– vysoko kvalitné dlaždice v kuchyni, kúpeľni, hosťovskom WC, úložnom priestore a šatníku
– moderné, biele omietnuté steny
Elektroinštalácia
– všetky rolety ovládateľné elektricky
– zatváranie všetkých roliet jediným stlačením tlačidla pri odchode z bytu
– TV, satelitný a sieťový pripoj v obývacej izbe a oboch spálňach
Domácnosť (technická miestnosť)
– prípojky pre práčku, sušičku a druhú mrazničku/chladničku
– ventilačný systém na rekuperáciu tepla a čerstvý prívod vzduchu (Pluggit, novo inštalovaný za 3400 eur v roku 2023)
– priamé prepojenie s kuchyňou
Chodba
– prechádzateľný šatník s regálom na topánky
– široké vstupné dvere s dverovým zameriavačom
– s pripojením na sieť/elektrinu je možné následne inštalovať bezdrôtový alarm
Vlastné parkovacie miesto a pivnica
– priestranné vonkajšie parkovacie miesto s prirážkou 30 000 eur – uzamykateľná pivnica s policami
– stojan na bicykel v exteriéri
Celková kúpna cena pozostáva z inzerovanej ceny bytu, k nej nákladov na vonkajšie parkovacie miesto vo výške 30 000 eur a nákladov vo výške 18 000 eur za dizajnovú kuchyňu od Siematic s odsávačom par značky Novy. Maklérske poplatky vo výške takmer 22 800 eur sa vám ušetria, pretože predaj prebieha priamo od majiteľa k majiteľovi so zapojením notára.
Parametre nehnuteľnosti
| Vek | Nad 50 rokov |
|---|---|
| Stav | Po rekonštrukcii |
| Číslo inzerátu | 975771 |
| Úžitková plocha | 104 m² |
| Dostupné od | 27. 12. 2025 |
|---|---|
| Dispozícia | 3+1 |
| PENB | A - Mimoriadne úsporné |
| Cena za jednotku | 5 452 € / m2 |
Čo táto nehnuteľnosť ponúka?
| Bezbariérový prístup | |
| Výťah | |
| MHD 2 minúty pešo |
| Pivnica | |
| Parkovanie | |
| Terasa |
V okolí nehnuteľnosti nájdete
Stále hľadáte to pravé?
Nastavte si strážneho psa. Ponuky vybrané na mieru dostanete súhrnne 1× denne e-mailom. S Premium profilom máte po ruke rovno 5 strážcov a keď sa niečo objaví, informujú vás obratom.



















