
Prenájom bytu 2+1 • 60 m² bez realitkyMarie-Deubler-Str. 4 Neuried Bayern 82061
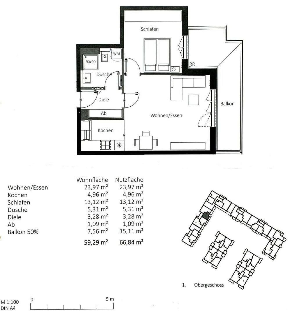
Tento kvalitne zariadený 2-izbový byt sa nachádza v novostavbe, ktorá bola dokončená v júli 2022. Svetlé priestory s vyšším vybavením, podlahové kúrenie, priestranný balkón a integrovaná kuchynská linka vás privítajú na mieste.
Nehnuteľnosť sa nachádza v rušnej časti Neuried. Niekoľko autobusových liniek je pešo dostupných. V bezprostrednom okolí nájdete rôzne reštaurácie, lekárov, supermarkety a dve pekárne. Okrem toho sú tu aj zelené plochy a parky, fitness centrá, módny obchod, čistiaca služba aj knižnica.
Vybavenie
+ Veľké okná zabezpečujú svetlé priestory
+ Všetky miestnosti majú podlahové kúrenie
+ Parkety z masívneho dreva v obývacej izbe a spálni
+ Integrovaná kvalitná kuchynská linka
(značkové spotrebiče NEFF, indukčná doska, umývačka riadu)
+ Kúpeľňa so sprchou s prístupom bez prahu a ohrievačom uterákov
+ Veľký, zastrešený balkón s rozlohou cca 15 m²
+ Elektricky ovládateľné žalúzie na všetkých oknách a dverách
+ Bezbariérový osobový výťah od suterénu (podzemná garáž) až po posledné poschodie
+ Úložný priestor v suteréne je vyrobený z kovových/systémových priečok a je uzamykateľný kľúčom od bytu
+ Každá suterénna miestnosť má vlastnú zásuvku
+ Jedno parkovacie miesto v podzemnej garáži
Byt bude voľný od februára 2026.
Parametre nehnuteľnosti
| Vek | Nad 50 rokov |
|---|---|
| Dispozícia | 2+1 |
| Číslo inzerátu | 975616 |
| Úžitková plocha | 60 m² |
| Stav | Veľmi dobrý |
|---|---|
| Poschodie | 1. poschodie z 4 |
| PENB | B - Veľmi úsporné |
| Cena za jednotku | 23 € / m2 |
Čo táto nehnuteľnosť ponúka?
| Balkón | |
| Garáž | |
| MHD 4 minúty pešo |
| Pivnica | |
| Výťah |
V okolí nehnuteľnosti nájdete
Stále hľadáte to pravé?
Nastavte si strážneho psa. Ponuky vybrané na mieru dostanete súhrnne 1× denne e-mailom. S Premium profilom máte po ruke rovno 5 strážcov a keď sa niečo objaví, informujú vás obratom.






























