
Prenájom bytu 2+1 • 47 m² bez realitkyNa Folimance, Praha - Vinohrady
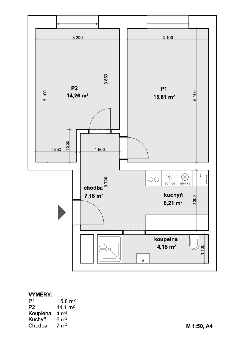
Na Folimance, Praha - VinohradyČiastočne vybavenéVyžaduje sa overenie bezdlžnostiNabízíme k pronájmu příjemný a světlý byt o velikosti 2+1 a podlahové ploše 47 m² v atraktivní lokalitě Prahy 2, Na Folimance.
Byt se nachází v klidné, málo frekventované ulici s výbornou dostupností. Dům se nachází jen pár kroků od tramvajových zastávek, odkud je možné dojet na metro I. P. Pavlova přibližně za 6 minut a na Karlovo náměstí za zhruba 8 minut. Okolí tvoří zeleň včetně oblíbeného parku Folimanka, ideálního pro volný čas.
Interiér bytu působí vzdušně díky velkým oknům orientovaným na jihovýchod, které propouštějí dostatek denního světla. Kuchyň je plně vybavená moderní linkou zahrnující myčku, troubu, lednici, varnou desku i digestoř. Byt je jinak nezařízený, nicméně dle potřeby je možné vybrané vybavení doplnit. Okna jsou osazena bezpečnostními mřížemi, které zvyšují pocit soukromí i bezpečí.
Dům je cihlový, udržovaný a poskytuje příjemné a klidné bydlení bez rušivých vlivů.
Pronájem probíhá přímo od majitele, tedy bez provize, a kauce činí dvojnásobek měsíčního nájmu. Měsíční poplatky za elektřinu, plyn a SVJ vycházejí přibližně na 6 000 Kč.
Pokud hledáte tiché a pohodlné bydlení v centru města s výbornou dopravní dostupností, tento byt představuje velmi zajímavou volbu.
We offer for rent a pleasant and bright 2+1 apartment with a floor area of 47 m² in the attractive area of Prague 2, Na Folimance.
The apartment is located on a quiet, low-traffic street with excellent accessibility. The building is just a few steps from tram stops, from which you can reach the I. P. Pavlova metro station in approximately 6 minutes and Karlovo Square in about 8 minutes. The surrounding area is green, featuring the popular Folimanka Park, ideal for leisure time.
The interior of the apartment feels airy thanks to large southeast-facing windows that allow plenty of natural light. The kitchen is fully equipped with a modern suite including a dishwasher, oven, refrigerator, stove, and extractor. The apartment is otherwise unfurnished, although selected furnishings can be added if desired. The windows are fitted with security grilles, which enhance privacy and safety.
The building is made of brick, well-maintained, and offers pleasant and peaceful living without disruptive influences.
The rental is arranged directly with the owner, so there is no commission, and the security deposit is twice the monthly rent. Monthly fees for electricity, gas, and the homeowners’ association come to approximately 6,000 CZK.
If you are looking for quiet and comfortable accommodation in the city center with excellent transport connections, this apartment is a very attractive option.
Parametre nehnuteľnosti
| Dostupné od | 1. 2. 2026 |
|---|---|
| Konštrukcia budovy | Tehla |
| Vybavené | Čiastočne |
| Číslo inzerátu | 971402 |
| Úžitková plocha | 47 m² |
| Stav | Veľmi dobrý |
|---|---|
| Dispozícia | 2+1 |
| Poschodie | 1. poschodie z 8 |
| Umiestnenie | Centrum mesta |
| Cena za jednotku | 532 CZK / m2 |
V okolí nehnuteľnosti nájdete


Prenájom bytuKardausova, Praha - Dolní Měcholupy- 2+kk
- 62 m²
24 000 CZK + 7 000 CZK26 000 CZK
Ušetríte 2 000 CZK


Stále hľadáte to pravé?
Nastavte si strážneho psa. Ponuky vybrané na mieru dostanete súhrnne 1× denne e-mailom. S Premium profilom máte po ruke rovno 5 strážcov a keď sa niečo objaví, informujú vás obratom.


















